370 200 Р 4 680 $ или 4 030

Информация об помещении

1
Этаж

Состояние и оснащение

Количество этажей
25
Развернуть
Агент
+7 (938) 656-74-88
Начать чат с агентом

Помещение свободного назначения в Московская область, Мытищи ...

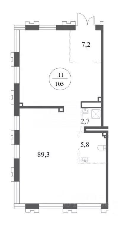
1105717. Предлагаем угловое помещение свободного назначения в ЖК Ярославский квартал , площадью 123.4 кв. м, расположенное на первом этаже 25-этажного жилого дома. Преимущества объекта:-ЖК состоит из 8 корпусов переменной этажности (от 24 до 25 этажей), рассчитанных на 2 577 квартир и 6 000 жителей;-15 минут на автомобиле от станций метро Медведково и Бабушкинская ;-удобная транспортная доступность: 350 м до Ярославского шоссе, 1.3 км до Олимпийского проспекта, 4.3 км до Волковского шоссе, 4.8 км до МКАД;-плотный жилой массив;-развитая инфраструктура района;-высокий автомобильный и пешеходный трафик;-отлично просматривается, находится в легком доступе для потенциальных клиентов;-гибкая планировка, позволяющая адаптировать пространство под различные нужды;-мокрая точка;-витринное остекление;-возможность размещения вывески;-наземная парковка напротив помещения;-рядом остановка общественного транспорта.Технические параметры объекта:-отдельный вход с улицы.-электрическая мощность: 25 кВт.-высота потолков: 4.33 м.Ввод в эксплуатацию: 3 квартал 2025 года.Свяжитесь с нами для получения дополнительной информации

Читать полностью
    Позвонить Написать
    370 200 Р4 680 $ или 4 030
    Агент
    +7 (938) 656-74-88
    Начать чат с агентом
    Похожие предложения
    Помещение свободного назначения в Московская область, Мытищи ... - Фото 1
    Помещение свободного назначения в Московская область, Мытищи ... - Фото 2
    1105717-s . Предлагаем угловое помещение свободного назначения формата street-retail в ЖК Ярославский квартал , площадью 123.4 кв. м, расположенное на первом этаже 25-этажного жилого дома. Преимущества объекта:-ЖК состоит из 8 корпусов переменной этажности...
    • 1/25 эт.
    370 200 Р
    Агент
    +7 (938) Показать номер
    Посмотреть контакты
    Помещение свободного назначения в Московская область, Раменский ... - Фото 1
    Помещение свободного назначения в Московская область, Раменский ... - Фото 2
    Прямая аренда от собственника Индустриального парка А107 МалышевоГотовое складское помещение 600 кв.м. х 550р/м2 + НДС- высота потолков 8м- бетонные полы- свободная планировка- электричество от 30 кВт (по счетчику)- ворота под фуру- прилегающий паркинг-...
    • 1/1 эт.
    360 000 Р
    Агент
    +7 (916) Показать номер
    Посмотреть контакты
    Помещение свободного назначения в Московская область, Химки проезд ... - Фото 1
    Помещение свободного назначения в Московская область, Химки проезд ... - Фото 2
    Бизнес-центр Астория 2 класса B+Площадь: 220 м2Арендная ставка: 20 333,. за м2 в год включая НДССтоимость площади в месяц: 372 777,. включая НДССистема налогообложения: НДСГотовность: готово к въездуЭтаж: 1Статус: свободенОтдельный входХарактеристики...
    • 1/12 эт.
    372 778 Р
    Агент
    +7 (911) Показать номер
    Посмотреть контакты
    Помещение свободного назначения в Московская область, Одинцовский ... - Фото 1
    Помещение свободного назначения в Московская область, Одинцовский ... - Фото 2
    Вашему внимание ПСН 105 м Все условия обсуждаются индивидуально с каждым арендатором Характеристики объекта: Этажность Первый этаж Общая площадь - 105 м. Высота потолка - 5,7 м. Отдельный входКоммуникации: Электрическая мощность 21 Кв/ч (возможно...
    • 1/9 эт.
    367 500 Р
    Агент
    +7 (986) Показать номер
    Посмотреть контакты
    Помещение свободного назначения в Московская область, Домодедово ... - Фото 1
    Помещение свободного назначения в Московская область, Домодедово ... - Фото 2
    id:2700. Сдается коммерческое помещение в новом бизнес центре класса В+ в городе Домодедово, Новейшие системы вентиляции, кондиционирования и инжиниринга, лифт , бесплатная наземная парковка, Помещений такого класса в Домодедово еще не было. Отличная...
    • 2/3 эт.
    367 250 Р
    Агент
    +7 (915) Показать номер
    Посмотреть контакты

    Не нашли подходящего объявления?

    Оставьте заявку, и наши риэлторы подберут псн в районе Мытищ

    (0)