540 000 Р 6 940 $ или 5 940

Информация о помещении и здании

4
Этаж
6
Этажность
Развернуть
Агент
+7 (989) 407-39-26
Начать чат с агентом

Офис в Московская область, Мытищи ул. Колпакова, 46А (400 м)

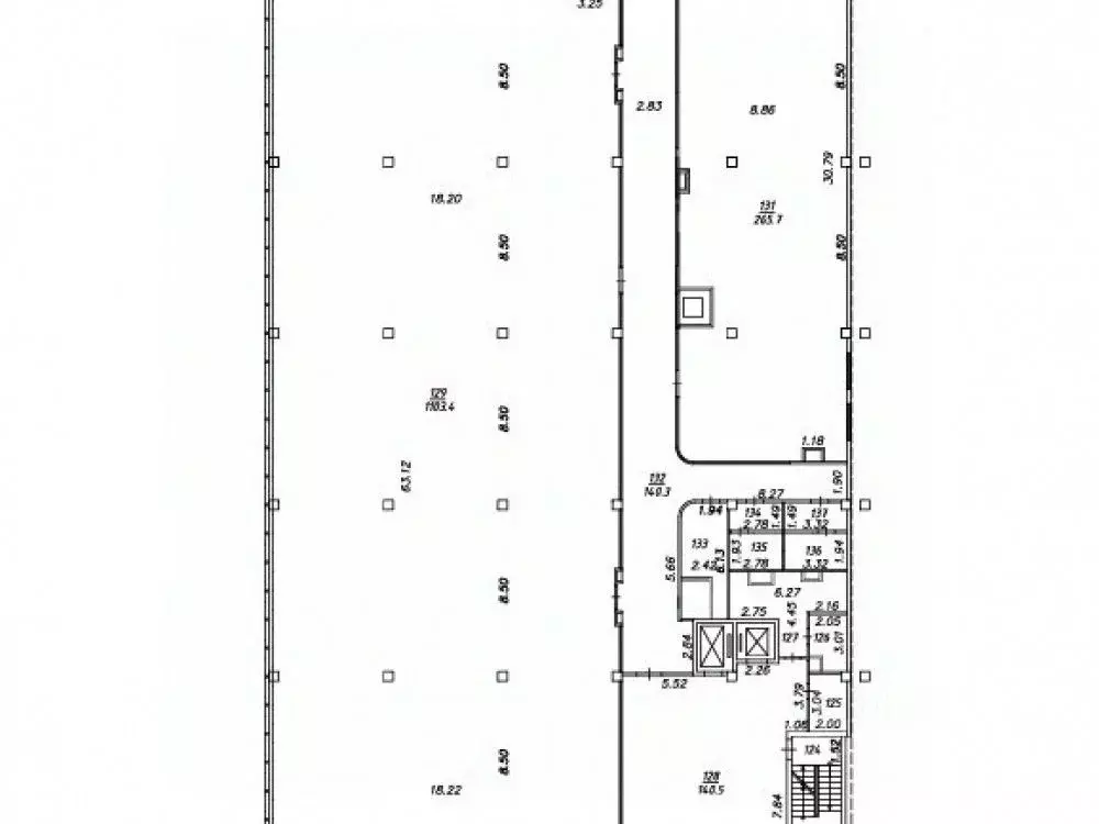
Предложение в аренду 63631.Парковка: Парковка для персонала и гостей.Предлагается в аренду офисное помещение на 4 этаже в Бизнес-центре, расположенном в городе Мытищи, удобный выезд на МКАД и Ярославское шоссе. Офисное 6-ти этажное здание (офис класса А).. Предоставление юридического адреса. Налоговая: 29. Приточно-вытяжная вентиляция, кондиционирование центральное, лифты. Круглосуточная охрана, Контроль доступа, Система пожаротушений, Видеонаблюдение. Парковка наземная. . . Помещения с открытой планировкой под чистовую отделку. Отделка помещения возможна силами собственника по схеме Арендатора. Возможность индивидуальной планировки помещений (предоставим дизайнера-архитектора).. Тип налогообложения: С НДС. . Качественная отделка помещений общего пользования, входной группы, фойе и фасада. Панорамное остекление, высокие потолки.. Бизнес-центр окружен многоэтажной жилой застройкой, культурно-досуговые центры, административные здания - высокая плотность населения микрорайона.. . Транспортная доступность (10 мин от ж/д станции Мытищи, 10 минут от МКАД).Без комиссии.

Читать полностью
    Позвонить Написать
    540 000 Р6 940 $ или 5 940
    Агент
    +7 (989) 407-39-26
    Начать чат с агентом
    Похожие предложения
    Офис в Московская область, Мытищи Центральная ул., с20Б (391 м) - Фото 1
    Офис в Московская область, Мытищи Центральная ул., с20Б (391 м) - Фото 2
    4-й этаж, всего 12 этажей

    Аренда офиса от собственника 391.2 кв.м.Подписание договора аренды напрямую с владельцем помещения. Работаем без комиссии, процентов и надбавок.В арендную ставку включено: - НДС,- коммунальные услуги, не включая электроэнергию,- эксплуат.расходы,- уборка...
    • 4/12 эт.
    537 900 Р
    Агент
    +7 (932) Показать номер
    Посмотреть контакты
    Офис в Московская область, Люберцы Октябрьский просп., 1 (215 м) - Фото 1
    Офис в Московская область, Люберцы Октябрьский просп., 1 (215 м) - Фото 2
    8-й этаж, всего 10 этажей

    Сдается в аренду офисное помещение на 8 этаже в БЦ Лермонтовский, А класса, который находится по адресу: г. Люберцы, Октябрьский пр-кт, д. 1. Без комиссии для Арендатора ЛОКАЦИЯ: Шаговая доступность от станций метро Лермонтовский проспект, Косино, Жулебино....
    • 8/10 эт.
    536 250 Р
    Агент
    +7 (989) Показать номер
    Посмотреть контакты
    Офис в Московская область, Химки городской округ, д. Дубровки ул. ... - Фото 1
    Офис в Московская область, Химки городской округ, д. Дубровки ул. ... - Фото 2
    цокольный этаж, всего 9 этажей

    Сдается в прямую аренду офисный блок 625 кв.м. В помещении требуется капитальный ремонт.Договор аренды заключаете с собственником помещения. Без надбавки к итоговой стоимости аренды.В арендную ставку включено: - НДС,- коммунальные услуги, не включая электроэнергию,-...
    • -1/9 эт.
    533 750 Р
    Агент
    +7 (932) Показать номер
    Посмотреть контакты
    Офис в Московская область, Химки городской округ, д. Дубровки ул. ... - Фото 1
    Офис в Московская область, Химки городской округ, д. Дубровки ул. ... - Фото 2
    7-й этаж, всего 9 этажей

    Сдается под офис блок 635 кв.м.Подписание договора аренды напрямую с владельцем помещения. Работаем без комиссии, процентов и надбавок.В арендную ставку включено: - НДС,- коммунальные услуги, не включая электроэнергию,- эксплуат.расходы.В арендную ставку...
    • 7/9 эт.
    542 290 Р
    Агент
    +7 (932) Показать номер
    Посмотреть контакты
    Офис в Московская область, Химки Ленинградская ул., вл39с6 (350 м) - Фото 1
    Офис в Московская область, Химки Ленинградская ул., вл39с6 (350 м) - Фото 2
    9-й этаж, всего 15 этажей

    Сдается в аренду офисное помещение на 9 этаже в бизнес-парке Химки Бизнес Парк (здание 2), А класса, который находится по адресу: г. Химки, ул. Ленинградская, вл. 39, стр. 6.Ближайшие станции метро Ховрино, Планерная, Беломорская. Удобный выезд на Ленинградский...
    • 9/15 эт.
    533 750 Р
    Агент
    +7 (989) Показать номер
    Посмотреть контакты

    Не нашли подходящего объявления?

    Оставьте заявку, и наши риэлторы подберут офис в районе Мытищ

    (0)