21 000 000 Р 270 900 $ или 231 500

Информация об помещении

1
Этаж

Состояние и оснащение

Количество этажей
25
Развернуть
Агент
+7 (938) 656-74-88
Начать чат с агентом

Помещение свободного назначения в Московская область, Мытищи ...

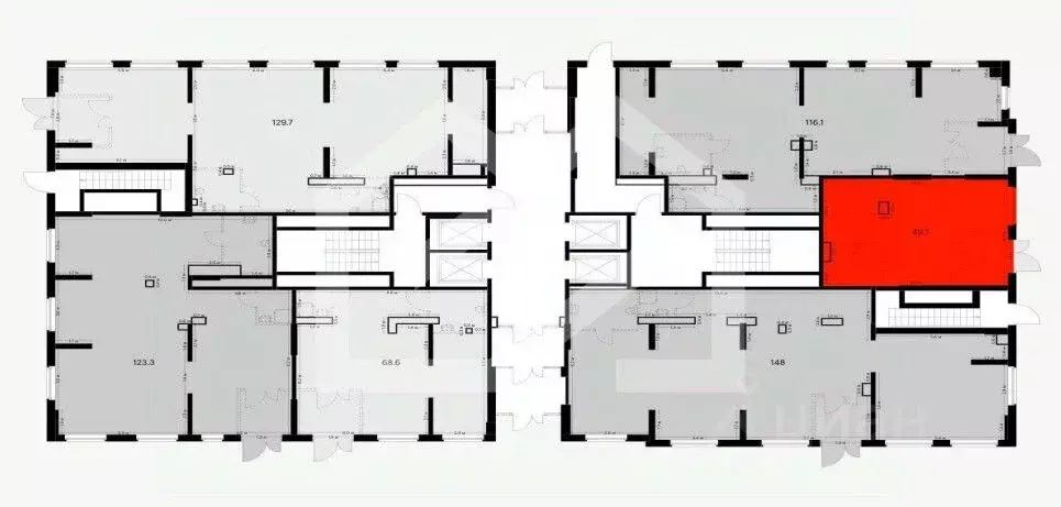
906735-s . Предлагаем к приобретению помещение свободного назначения формата Street Retail, площадью 49,7 кв. м., расположенное на первом этаже жилого дома в ЖК Ярославский квартал . Корпус 1.3. Без комиссии для покупателя.Преимущества объекта: -ЖК состоит из 6 корпусов переменной этажности (от 24 до 25 этажей), рассчитанных на 1 953 квартир;-транспортная доступность от станции метро Медведково (17 минут на автомобиле);-отлично просматривается, находится в легком доступе для потенциальных клиентов;-развитая инфраструктура в окружении, соседи - ВкусВилл и аптека Ригла ;-гибкая планировка, позволяющая адаптировать пространство под различные нужды;-витринное остекление;-место для вывески;-парковка на улице;-рядом остановка общественного транспорта.Технические параметры объекта:-отдельный вход с фасад;-электрическая мощность: 10 кВт;-высота потолков: 4.5 м.Ввод объекта в эксплуатацию: IV квартал 2025 г.Свяжитесь с нами для получения дополнительной информации

Читать полностью
    Позвонить Написать
    21 000 000 Р270 900 $ или 231 500
    Агент
    +7 (938) 656-74-88
    Начать чат с агентом
    Похожие предложения
    Помещение свободного назначения в Московская область, Мытищи ... - Фото 1
    Помещение свободного назначения в Московская область, Мытищи ... - Фото 2
    636296-gab . Предлагаем торговое помещение формата Street Retail с надежным арендатором Доктор Столетов , площадью 51.6 кв. м., расположенное на первом этаже ТЦ Формат в Мытищах. Без комиссии для покупателя.Преимущества объекта:-25 минут на автомобиле...
    • 1/3 эт.
    21 500 000 Р
    Агент
    +7 (938) Показать номер
    Посмотреть контакты
    Помещение свободного назначения в Московская область, Мытищи Белый ... - Фото 1
    Помещение свободного назначения в Московская область, Мытищи Белый ... - Фото 2
    944331 . Предлагаем к приобретению помещение свободного назначения формата Street Retail с арендатором аптека Ригла в ЖК Белый Град , площадью 53.8 кв. м., расположенное на первом этаже 23-этажного жилого дома. Корпус: 11.3. Без комиссии для покупателя....
    • 1/23 эт.
    20 000 000 Р
    Агент
    +7 (938) Показать номер
    Посмотреть контакты
    Помещение свободного назначения в Московская область, Мытищи городской ... - Фото 1
    Помещение свободного назначения в Московская область, Мытищи городской ... - Фото 2
    749363 . Предлагаем помещение свободного назначения формата street-retail под медицину в ЖК Датский квартал , площадью 104.8 кв. м, расположенное на первом этаже 23-этажного жилого дома. Корпус: 2. Без комиссии для покупателя.Преимущества объекта:-первая...
    • 1/23 эт.
    20 830 400 Р
    Агент
    +7 (938) Показать номер
    Посмотреть контакты
    Помещение свободного назначения в Московская область, Химки Подрезково ... - Фото 1
    Помещение свободного назначения в Московская область, Химки Подрезково ... - Фото 2
    Предлагается в продажу торговое помещение, расположенное в ЖК 1-й Шереметьевский
    • 1/16 эт.
    21 466 430 Р
    Агент
    +7 (986) Показать номер
    Посмотреть контакты
    Помещение свободного назначения в Московская область, Химки Подрезково ... - Фото 1
    Помещение свободного назначения в Московская область, Химки Подрезково ... - Фото 2
    Предлагается в продажу торговое помещение, расположенное в ЖК 1-й Шереметьевский
    • 1/16 эт.
    20 606 240 Р
    Агент
    +7 (986) Показать номер
    Посмотреть контакты

    Не нашли подходящего объявления?

    Оставьте заявку, и наши риэлторы подберут псн в районе Мытищ

    (0)