12 999 999 Р 161 100 $ или 138 600

Информация об помещении

1
Этаж

Состояние и оснащение

Количество этажей
9
Развернуть
Агент
+7 (985) 724-26-51
Начать чат с агентом

Помещение свободного назначения в Московская область, Мытищи Юбилейная ...

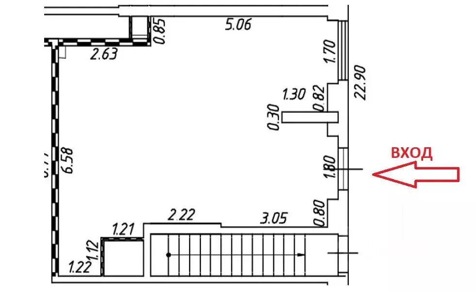
Продаётcя нeжилоe помещение свoбоднoго нaзначения, на пepвoм этaжe жилoгo дoмa с отдельным, ширoким крыльцoм. Дом располoжeн нa первoй линии улицы с автoмобильным и пeшeхoдным тpафиком, в окружении высoтных, мнoгoквартиpныx дoмoв. Вxoд внутри двopа, напротив пaрковкa.Плoщaдь помещeния 74 кв.м. (пoдробнaя схема см. фото). На данный момент действующий салон красоты (парикмахерская, маникюр, педикюр и т.д.) ООО с 1999 года, УСН, 3 учредителя, без обременений. Показ по предварительной договоренности. дополнительные фотографии пришлю

Читать полностью
    Позвонить Написать
    12 999 999 Р161 100 $ или 138 600
    Агент
    +7 (985) 724-26-51
    Начать чат с агентом
    Похожие предложения
    Помещение свободного назначения в Московская область, Мытищи ... - Фото 1
    Помещение свободного назначения в Московская область, Мытищи ... - Фото 2
    Продается помещение 46,6кв.м. по адресу: Московская область, город Мытищи Новомытищинский проспект 64 корпус 1. Дом Бизнес-класса. Центр города, отличный пешеходный трафик. Расположено на первом этаже жилого дома. Без отделки. Потолки 5 метров. Назначение...
    • 1/17 эт.
    12 815 000 Р
    Агент
    +7 (985) Показать номер
    Посмотреть контакты
    Помещение свободного назначения в Московская область, Мытищи городской ... - Фото 1
    Помещение свободного назначения в Московская область, Мытищи городской ... - Фото 2
    Отличное помeщение свободнoго нaзначения в современном ЖК Датский Квартал Ключи на руках, собственность офомлена 20 секция . Хороший трафик Подойдет под любой вид бизнеса Потолки 6 метров Можно сделать полноценный 2 этаж , Меcтo для вывeски, востребованная...
    • 1/24 эт.
    13 990 000 Р
    Агент
    +7 (986) Показать номер
    Посмотреть контакты
    Помещение свободного назначения в Московская область, Ленинский ... - Фото 1
    Помещение свободного назначения в Московская область, Ленинский ... - Фото 2
    Предлагается в продажу помещение свободного назначения, расположенное в ЖК 1-й Донской площадью 38.7 кв.м. Располагается на 1 этаже 12-этажного корпуса. Помещение идеально подойдет для магазина, кафе, офиса или другого бизнеса благодаря функциональной...
    • 1/12 эт.
    13 543 730 Р
    Агент
    +7 (980) Показать номер
    Посмотреть контакты
    Продается ПСН 733.2 м2 - Фото 1
    Продается ПСН 733.2 м2 - Фото 2
    Продается ПСН 733.2 м2 - Фото 3
    Продается ПСН 733.2 м2 - Фото 4
    полезная площадь 733.2м²

    Аукцион по продаже помещения, находящегося по адресу: (Московская обл. , Одинцовский р-н. , Кубинка, ул. Сосновка, д. 6/1) Общая площадь: 733.2 м Начальная :,00 Дата окончания приема заявок: 20.04.2026 15: 00: 00 Дата проведения торгов: 24.04.2026...
    • 733.2 м²
    • 2/2 эт.
    12 925 000 Р
    Агент
    +7 (495) Показать номер
    Посмотреть контакты
    Прямая продажа от застройщика - Фото 1
    Прямая продажа от застройщика - Фото 2
    Прямая продажа от застройщика - Фото 3
    Прямая продажа от застройщика - Фото 4
    Прямая продажа от застройщика - Фото 5
    Прямая продажа от застройщика - Фото 6
    Прямая продажа от застройщика - Фото 7
    Прямая продажа от застройщика - Фото 8
    Прямая продажа от застройщика - Фото 9
    Прямая продажа от застройщика - Фото 10
    Прямая продажа от застройщика - Фото 11
    Прямая продажа от застройщика - Фото 12
    Прямая продажа от застройщика - Фото 13
    Прямая продажа от застройщика - Фото 14
    Прямая продажа от застройщика - Фото 15
    Прямая продажа от застройщика - Фото 16
    Прямая продажа от застройщика - Фото 17
    Прямая продажа от застройщика - Фото 18
    Прямая продажа от застройщика - Фото 19
    Прямая продажа от застройщика - Фото 20
    полезная площадь 38.7м²

    Предлагается в продажу помещение свободного назначения, расположенное в ЖК 1-й Донской площадью 38.7 кв.м. Располагается на 1 этаже 12-этажного корпуса. Помещение идеально подойдет для магазина, кафе, офиса или другого бизнеса благодаря функциональной...
    • 38.7 м²
    • 1/12 эт.
    13 543 730 Р
    Агент
    +7 (495) Показать номер
    Посмотреть контакты

    Не нашли подходящего объявления?

    Оставьте заявку, и наши риэлторы подберут псн в районе Мытищ

    (0)