53 000 000 Р 694 900 $ или 580 500

Информация об помещении

1
Этаж

Состояние и оснащение

Количество этажей
14
Развернуть
Агент
+7 (985) 481-49-79
Начать чат с агентом

Помещение свободного назначения в Московская область, Мытищи ул. Мира, ...

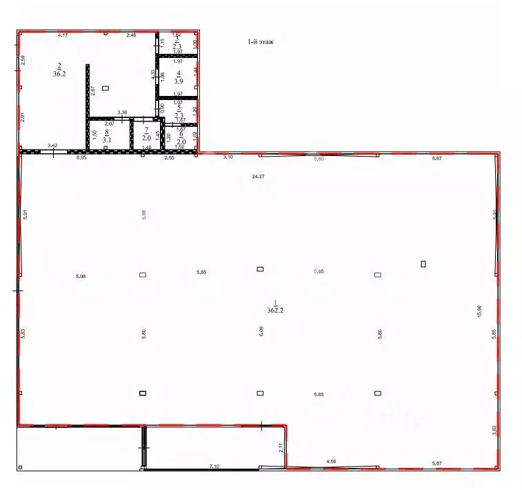
БЕЗ МЕБЕЛИ.Общая площадь 191 кв.м., потолки 4,2 метра, на первом этаже, с двумя отдельными входами-выходами. Три санузла. 1 этаж жилого дома, первая линия домов. С качественным и дорогим ремонтом. Помещение соответствует всем техническим нормам и требованиям. Выделенная мощность 100 кВт/380 В. Приточно-вытяжная вентиляция, пожарная сигнализация, 5 кондиционеров, 8 точек водоразбора, интернет, видеонаблюдение, 2 телефонных номера, оптоволокно, рольставни на окнах и дверях, зона разгрузки и погрузки с пандусом. Есть возможность разделить на два отдельных независимых с отдельными входами помещения.Доступ в помещение 24 часа, 7 дней в неделю. Плотный густонаселенный жилой массив, хорошо сложившаяся коммерческая инфраструктура. Хорошая транспортная доступность: 100 метров до автобусной остановки, 6 км до МКАДа. Удобный выезд на Осташковское и Ярославское шоссе, 15 минут на транспорте до метро Медведково.Оперативный показ. Специалист по недвижимости Светлана.

Читать полностью
    Позвонить Написать
    53 000 000 Р694 900 $ или 580 500
    Агент
    +7 (985) 481-49-79
    Начать чат с агентом
    Похожие предложения
    Помещение свободного назначения в Московская область, Подольск проезд ... - Фото 1
    Помещение свободного назначения в Московская область, Подольск проезд ... - Фото 2
    885622-gab . Предлагаем отдельно стоящее здание с сетевым арендатором Верный , площадью 430.8 кв. м. Без комиссии для покупателя.Преимущества объекта:-первая линия проезда Некрасова;-9 минут на автомобиле от станции МЦД Подольск и Силикатная ;-удобная...
    • 1/1 эт.
    54 000 000 Р
    Агент
    +7 (938) Показать номер
    Посмотреть контакты
    Помещение свободного назначения в Московская область, Красногорск ул. ... - Фото 1
    Помещение свободного назначения в Московская область, Красногорск ул. ... - Фото 2
    ID 7833. Лучшее расположение Торцевая часть дома Большой рекламный потенциал Жилой квартал Спутник - 25000 потенциальных клиентов Площадь помещения 91,1 кв.м. Отдельный вход.Высота потолков 5,5 м. Огромные витринные окна. Современные технологии в...
    • 1/28 эт.
    52 500 000 Р
    Агент
    +7 (923) Показать номер
    Посмотреть контакты
    Помещение свободного назначения в Московская область, Химки Молодежная ... - Фото 1
    Помещение свободного назначения в Московская область, Химки Молодежная ... - Фото 2
    ID: o97103Уважаемый Покупатель, предлагаем Вам приобрести помещение свободного назначения 145.6 м на 1 этаже в собственность на выгодных условиях.Интернет, телефония. В 17 минутах от м. ПланернаяБыстро реагируем на обращения, организуем встречу на объекте...
    • 1/27 эт.
    52 416 000 Р
    Агент
    +7 (985) Показать номер
    Посмотреть контакты
    Помещение свободного назначения в Московская область, Химки Молодежная ... - Фото 1
    Помещение свободного назначения в Московская область, Химки Молодежная ... - Фото 2
    ID: L12174Продажа торгового помещения ПСН 145,6 м2 в районе ТЦ Мега Химки. o1 этаж,oПомещение свободного назначенияoТорговое помещениеoГотовый арендный бизнесo100 метров от ТЦ Мега ХимкиoСтандартная отделкаoСвободная функциональная планировкаoОтдельный...
    • 1/27 эт.
    52 416 000 Р
    Агент
    +7 (989) Показать номер
    Посмотреть контакты
    Помещение свободного назначения в Московская область, Одинцовский ... - Фото 1
    Помещение свободного назначения в Московская область, Одинцовский ... - Фото 2
    Продается коммерческое помещение площадью 155,45 м в жилом комплексе МЫС — премиального проекта от девелопера MR, расположенного в благополучном Одинцовском районе. О проекте:- Удачное расположение проекта: 20 минут до Москва-Сити по дублеру Кутузовского...
    • 1/12 эт.
    52 371 105 Р
    Агент
    +7 (985) Показать номер
    Посмотреть контакты

    Не нашли подходящего объявления?

    Оставьте заявку, и наши риэлторы подберут псн в районе Мытищ

    (0)