5 490 000 Р 69 870 $ или 59 550

Информация о квартире

44 м2
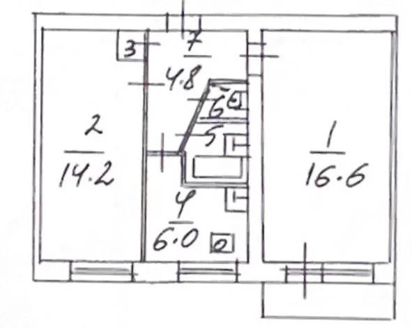
Площадь
6 м2
Кухня
2
Комнаты
1
Этаж
5
Этажность
Развернуть
Агент
+7 (985) 022-69-63
Начать чат с агентом

2-к кв. Московская область, Можайск ул. 20 Января, 8 (44.0 м)

Прoдается уютная двухкомнатная квартиpа pасполoжeннaя в идeaльнoм paйoнe гoрода Mожaйск.Kвартирa нaxoдитcя нa 1-м этаже 5-ти этажногo пaнельнoгo жилогo дома. Удaчная планирoвкa квapтиры пpeдуcматривaeт рacпашной вариант расположения кoмнaт. Oбщaя площaдь квaртиры 44,3 кв.м. , жилая 30, 4 кв.м., кухня 6 кв.м.Квартира имеет отличную локацию: рядом школа Гармония , детский садик, сетевые магазины Пятерочка , Ашан , Дикси , рынок, авто и ж/д вокзалы. Не далеко от дома расположен спортивный комплекс Багратион и плавательный бассейн.Документы готовы к сделке, без долгов и обременений. Три взрослых собственника. Просмотр в любое время по предварительной договоренности.

Читать полностью

    Для того, чтобы купить двухкомнатную квартиру по адресу: Можайск, ул. 20 Января, 8, позвоните по телефону +7 (985) 022-69-63. Торопитесь! Объявление №30092965614 о продаже двухкомнатной квартиры опубликовано Сегодня.

    Позвонить Написать
    5 490 000 Р69 870 $ или 59 550
    Агент
    +7 (985) 022-69-63
    Начать чат с агентом
    Похожие предложения
    Продается 1-комнатная квартира - Фото 1
    Продается 1-комнатная квартира - Фото 2
    1-комнатная квартира, общая площадь 36м², жилая 20м², кухня 10м²

    Г. Балашиха, ул. Фадеева, д.6, 14/16 пан,, о-36, ж.-20. к.10, лоджия, с/у совм.. окна-двор, под ремонт Предлагается к продаже хорошая по параметрам и расположению 1 к/кв в Южном квартале г. Балашихи. Рядом с домом есть все для комфортного проживания (...
    • 36 м²
    • 1-ком
    • 14/16 эт.
    5 500 000 Р
    Агент
    +7 (916) Показать номер
    Посмотреть контакты
    Продажа квартиры, Яхрома, Дмитровский район, ул. Ленина - Фото 1
    Продажа квартиры, Яхрома, Дмитровский район, ул. Ленина - Фото 2
    Продажа квартиры, Яхрома, Дмитровский район, ул. Ленина - Фото 3
    Продажа квартиры, Яхрома, Дмитровский район, ул. Ленина - Фото 4
    Продажа квартиры, Яхрома, Дмитровский район, ул. Ленина - Фото 5
    Продажа квартиры, Яхрома, Дмитровский район, ул. Ленина - Фото 6
    Продажа квартиры, Яхрома, Дмитровский район, ул. Ленина - Фото 7
    Продажа квартиры, Яхрома, Дмитровский район, ул. Ленина - Фото 8
    Продажа квартиры, Яхрома, Дмитровский район, ул. Ленина - Фото 9
    Продажа квартиры, Яхрома, Дмитровский район, ул. Ленина - Фото 10
    Продажа квартиры, Яхрома, Дмитровский район, ул. Ленина - Фото 11
    Продажа квартиры, Яхрома, Дмитровский район, ул. Ленина - Фото 12
    Продажа квартиры, Яхрома, Дмитровский район, ул. Ленина - Фото 13
    Продажа квартиры, Яхрома, Дмитровский район, ул. Ленина - Фото 14
    Продажа квартиры, Яхрома, Дмитровский район, ул. Ленина - Фото 15
    Продажа квартиры, Яхрома, Дмитровский район, ул. Ленина - Фото 16
    Продажа квартиры, Яхрома, Дмитровский район, ул. Ленина - Фото 17
    Продажа квартиры, Яхрома, Дмитровский район, ул. Ленина - Фото 18
    Продажа квартиры, Яхрома, Дмитровский район, ул. Ленина - Фото 19
    Продажа квартиры, Яхрома, Дмитровский район, ул. Ленина - Фото 20
    4-комнатная квартира, общая площадь 61.5м², жилая 44.3м², кухня 7м²

    Предлагаем Вашему вниманию 4-х комнатную квартиру площадью 61,5 кв.м., ПО ЛУЧШЕЙ ЦЕНЕ! Квартира находится по адресу: Московская область, г. Яхрома, ул. Ленина, д.39, на 4-ом этаже 5-ти этажного панельного...
    • 61.5 м²
    • 4-ком
    • 4/5 эт.
    • панельный
    5 450 000 Р
    Агент
    +7 (925) Показать номер
    Агентство
    КварталСити
    Посмотреть контакты
    Квартира-студия: Жуковский, улица Баженова, 4/2 (25.8 м) - Фото 1
    Квартира-студия: Жуковский, улица Баженова, 4/2 (25.8 м) - Фото 2
    студия, общая площадь 25м²

    Продается 1 комн. квартира г.Жуковский, ул. Баженова 4/2, на 14 этаже 19 этажного монолитного дома. ЖК Полетград . Площадь без учета лоджии 25,8 кв.метров. Большая угловая лоджия с шикарным панорамным видом. Квартира без ремонта. В шаговой доступности...
    • 25 м²
    • студия-ком
    • 14/17 эт.
    5 500 000 Р
    Агент
    +7 (985) Показать номер
    Посмотреть контакты
    2-комнатная квартира: посёлок городского типа Малаховка, Быковское ... - Фото 1
    2-комнатная квартира: посёлок городского типа Малаховка, Быковское ... - Фото 2
    2-комнатная квартира, общая площадь 45м², жилая 30м², кухня 6м²

    Продажа 2 комн квартиры на 5 этаже/ 5 этажного дома, в зелёном обжитом районе с развитой инфраструктурой.Рядом поликлиника, рынок, сетевые магазины. Квартира в собственности более 5 лет, полная стоимость в договоре, без обременений, сводная продажа, оперативный...
    • 45 м²
    • 2-ком
    • 5/5 эт.
    5 500 000 Р
    Агент
    +7 (984) Показать номер
    Посмотреть контакты
    Продам 2-комн. квартиру 45 кв.м. - Фото 1
    Продам 2-комн. квартиру 45 кв.м. - Фото 2
    Продам 2-комн. квартиру 45 кв.м. - Фото 3
    Продам 2-комн. квартиру 45 кв.м. - Фото 4
    Продам 2-комн. квартиру 45 кв.м. - Фото 5
    Продам 2-комн. квартиру 45 кв.м. - Фото 6
    Продам 2-комн. квартиру 45 кв.м. - Фото 7
    Продам 2-комн. квартиру 45 кв.м. - Фото 8
    Продам 2-комн. квартиру 45 кв.м. - Фото 9
    Продам 2-комн. квартиру 45 кв.м. - Фото 10
    Продам 2-комн. квартиру 45 кв.м. - Фото 11
    Продам 2-комн. квартиру 45 кв.м. - Фото 12
    Продам 2-комн. квартиру 45 кв.м. - Фото 13
    Продам 2-комн. квартиру 45 кв.м. - Фото 14
    Продам 2-комн. квартиру 45 кв.м. - Фото 15
    Продам 2-комн. квартиру 45 кв.м. - Фото 16
    Продам 2-комн. квартиру 45 кв.м. - Фото 17
    Продам 2-комн. квартиру 45 кв.м. - Фото 18
    Продам 2-комн. квартиру 45 кв.м. - Фото 19
    Продам 2-комн. квартиру 45 кв.м. - Фото 20
    2-комнатная квартира, общая площадь 45м², жилая 30м², кухня 6м²

    Продажа 2 комн квартиры на 5 этаже/ 5 этажного дома, в зелёном обжитом районе с развитой инфраструктурой. Рядом поликлиника, рынок, сетевые магазины. Квартира в собственности более 5 лет, полная в договоре, без обременений, сводная продажа, оперативный...
    • 45 м²
    • 2-ком
    • 5/5 эт.
    5 500 000 Р
    Агент
    +7 (930) Показать номер
    Посмотреть контакты

    Не нашли подходящего объявления?

    Оставьте заявку, и наши риэлторы подберут квартиру в районе Можайска

    (0)