250 000 Р /в месяц 3 280 $ или 2 740

Информация об помещении

15.9 м2
Площадь
1
Этаж

Состояние и оснащение

Количество этажей
3
Развернуть
Агент
Елена
+7 (903) 170-66-70
Начать чат с агентом

Аренда торгового помещения, м. Менделеевская, ул. Новослободская

Аренда торгового помещения. 120 метров от станции метро Менделеевская, 1-я линия улицы Новослободская.
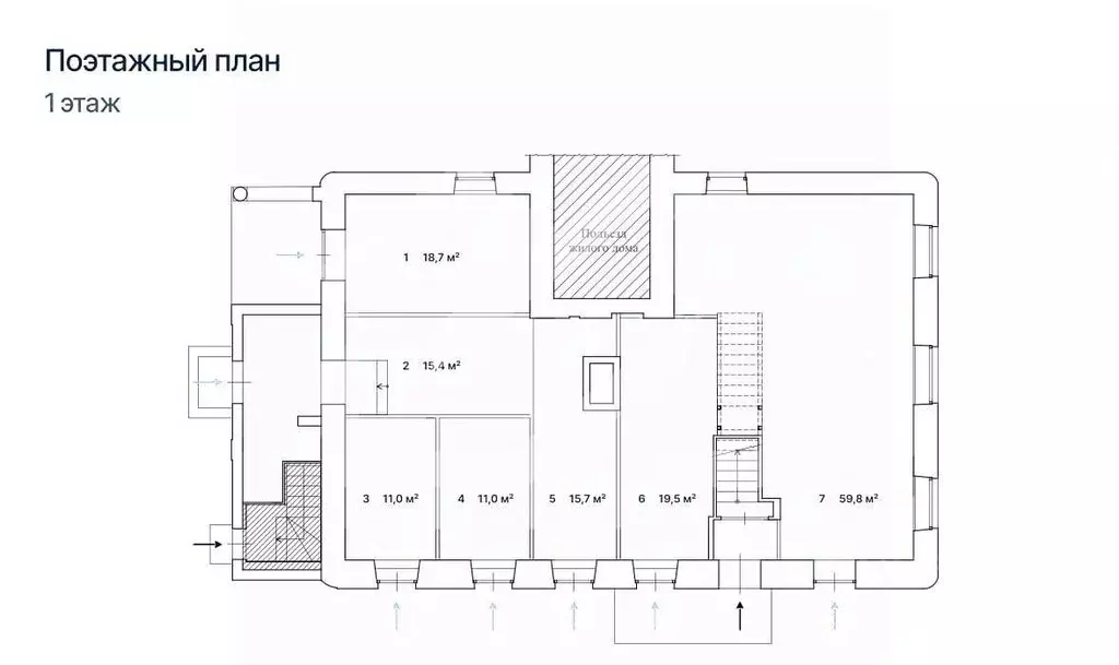
Площадь - 15,9 кв.м, полностью на 1-м этаже (Блок № 12 на плане). Отдельный вход с фасада. Планировка открытая, высота потолков - 3,4 м, все городские коммуникации. Подойдет под размещение магазина, шоу-рума, услуг, кафе, салона красоты и т.п.
Расположено в районе с плотной высоко этажной жилой застройкой и высокой деловой активностью, развитой торговой и административной структурой, на улице с интенсивным пешеходным и автомобильным трафиком. . Объект № 548425Номер объекта: 5/548425/310

Читать полностью

    Для того, чтобы снять торговое помещение площадью 15 кв. метров по адресу: ЦАО, Тверской, м. Менделеевская, ул. Новослободская, 19 с1, позвоните по телефону +7 (903) 170-66-70. Торопитесь! Объявление №800817327 об аренде торгового помещения площадью 15 кв. метров опубликовано Сегодня.

    Позвонить Написать
    250 000 Р /в месяц3 280 $ или 2 740
    Агент
    Елена
    +7 (903) 170-66-70
    Начать чат с агентом
    Похожие предложения
    Аренда торгового помещения, м. Пушкинская, Богословский пер. - Фото 1
    Аренда торгового помещения, м. Пушкинская, Богословский пер. - Фото 2
    общая площадь 66.1м², реализуемая площадь 66.1м²

    Аренда торгового помещения в историческом центре Москвы. 470 метров от станций метро Пушкинская и Тверская. Площадь 66,1 м2. 1-й этаж 4-х этажного жилого дома. Отдельный вход с фасада, второй вход со двора, витрина. Планировка зальная, высота потолка...
    • 66.1 м²
    • 1/4 эт.
    1 000 000 Р /в месяц
    Агент
    +7 (903) Показать номер
    Посмотреть контакты
    Аренда торгового помещения, м. Новокузнецкая, ул. Пятницкая - Фото 1
    Аренда торгового помещения, м. Новокузнецкая, ул. Пятницкая - Фото 2
    Аренда торгового помещения, м. Новокузнецкая, ул. Пятницкая - Фото 3
    Аренда торгового помещения, м. Новокузнецкая, ул. Пятницкая - Фото 4
    общая площадь 78.2м², реализуемая площадь 78.2м²

    Помещение находится в 180 м от метро Новокузнецкая. 1-я фасадная линия Пятницкой улицы. Помещение общей площадью 78,2 кв.м. расположено на двух уровнях: на 1-м этаже (39,8 кв.м) и в подвале (38,4 кв.м) административного здания 1890 года постройки. Сложившееся...
    • 78.2 м²
    • 1/3 эт.
    1 250 000 Р /в месяц
    Агент
    +7 (903) Показать номер
    Посмотреть контакты
    Торговое помещение 44 м2 в аренду - Фото 1
    Торговое помещение 44 м2 в аренду - Фото 2
    Торговое помещение 44 м2 в аренду - Фото 3
    Торговое помещение 44 м2 в аренду - Фото 4
    Торговое помещение 44 м2 в аренду - Фото 5
    Торговое помещение 44 м2 в аренду - Фото 6
    Торговое помещение 44 м2 в аренду - Фото 7
    Торговое помещение 44 м2 в аренду - Фото 8
    Торговое помещение 44 м2 в аренду - Фото 9
    Торговое помещение 44 м2 в аренду - Фото 10
    реализуемая площадь 44м²

    Сдается стрит-ритейл площадью 44 кв.м, в субаренду, на любой срок с предоплатой за 1 месяц, с возможностью арендных каникул. Включено в ставку: эксплуатационные расходы. Минимальный срок аренды 11 мес, юридический адрес не предоставляется. Помещение располагается...
    • 44 м²
    • 1/2 эт.
    700 000 Р /в месяц
    Агент
    +7 (932) Показать номер
    Посмотреть контакты
    Торговая площадь в Москва ул. Дмитрия Ульянова, 10/1К1 (21 м) - Фото 1
    Торговая площадь в Москва ул. Дмитрия Ульянова, 10/1К1 (21 м) - Фото 2
    1112737 . Предлагаем помещение свободного назначения формата Street Retail, площадью 20,5 кв. м., расположенное на первом этаже жилого дома. Преимущества объекта:-первая линия ул. Дмитрия Ульянова;-5 минут пешком от ст. метро Академическая;-густонаселенный...
    • 1/4 эт.
    190 000 Р
    Агент
    +7 (938) Показать номер
    Посмотреть контакты
    Торговая площадь в Москва Бауманская ул., 33/2С3 (11 м) - Фото 1
    Торговая площадь в Москва Бауманская ул., 33/2С3 (11 м) - Фото 2
    1112585 . Предлагаем торговое помещение формата Street Retail, площадью 11 кв. м., расположенное на первом этаже жилого дома. Преимущества объекта: -в 65 метрах станция метро Бауманская;-центр плотного жилого массива, премиальная локация;-сложившееся...
    • 1/4 эт.
    180 000 Р
    Агент
    +7 (938) Показать номер
    Посмотреть контакты

    Не нашли подходящего объявления?

    Оставьте заявку, и наши риэлторы подберут торговое помещение в районе Москвы

    (0)