650 000 Р 7 740 $ или 6 680

Информация об помещении

1
Этаж

Состояние и оснащение

Количество этажей
31
Развернуть
Агент
+7 (938) 656-74-88
Начать чат с агентом

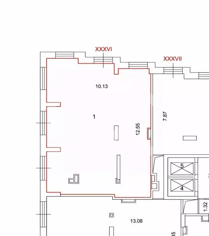
Торговая площадь в Москва Беломорская ул., 23 (127 м)

714827. Предлагаем торговое помещение, площадью 126,87 кв. м., расположенное на первом этаже жилого дома в ЖК бизнес-класса Discovery . Угловой блок.Преимущества объекта:-комплекс состоит из 5 корпусов переменной этажности (от 22 до 31 этажей);-6 минут пешком от станции метро Беломорская; -центр жилого массива;-интенсивный пешеходный и автомобильный трафик;-объект отлично просматривается, находится в лёгком доступе для потенциальных клиентов;-просторное и функциональное - это помещение подходит для различных видов бизнеса: от магазина до офиса;-витринное остекление;-место для вывески; -вытяжка для общепита;-зона разгрузки/погрузки;-рядом остановки общественного транспорта.Технические параметры объекта:-3 отдельные входные группы;-электрическая мощность: 90 кВт;-высота потолков: 4 м.Свяжитесь с нами для получения дополнительной информации

Читать полностью
    Позвонить Написать
    650 000 Р7 740 $ или 6 680
    Агент
    +7 (938) 656-74-88
    Начать чат с агентом
    Похожие предложения
    Торговая площадь в Москва бул. Яна Райниса, 2К1 (75 м) - Фото 1
    Торговая площадь в Москва бул. Яна Райниса, 2К1 (75 м) - Фото 2
    1147303. Предлагаем торговое помещение, площадью 75,1 кв. м., расположенное на первом этаже 9-этажного жилого дома. Преимущества объекта:-первая линия домов бульвара Яна Райниса;-2 минуты пешком от станции метро Сходненская; -густонаселённый жилой массив;-сложившееся...
    • 1/9 эт.
    650 000 Р
    Агент
    +7 (938) Показать номер
    Посмотреть контакты
    Торговая площадь в Москва Дербеневская ул., 20А (61 м) - Фото 1
    Торговая площадь в Москва Дербеневская ул., 20А (61 м) - Фото 2
    1003791. Предлагаем помещение свободного назначения, площадью 61 кв. м, расположенное на первом этаже жилого дома в ЖК элит-класса Era. Корпус 3.Преимущества объекта:-ЖК состоит из 6 корпусов переменной этажности (от 27 до 52 этажей), рассчитанных на...
    • 1/52 эт.
    640 500 Р
    Агент
    +7 (938) Показать номер
    Посмотреть контакты
    Торговая площадь в Москва Ленинский просп., 79 (289 м) - Фото 1
    Торговая площадь в Москва Ленинский просп., 79 (289 м) - Фото 2
    1076345. Предлагаем помещение свободного назначения, площадью 289.3 кв. м, расположенное на первом этаже 9-этажного жилого дома. Преимущества объекта:-первая линия Ленинского проспекта;-50 м от станции метро Вавиловская ;-удобная транспортная доступность:...
    • 1/9 эт.
    650 000 Р
    Агент
    +7 (938) Показать номер
    Посмотреть контакты
    Торговая площадь в Москва Березовая аллея, 19к3 (240 м) - Фото 1
    Торговая площадь в Москва Березовая аллея, 19к3 (240 м) - Фото 2
    966362. Предлагаем помещение свободного назначения, площадью 240 кв. м., расположенное на первом этаже жилого дома в ЖК Легендарный квартал . Корпус 3.Преимущества объекта:-первая линия;-ЖК состоит из 6 корпусов по 18 этажей, рассчитанных на 3 144 квартир;-пешая...
    • 1/18 эт.
    650 000 Р
    Агент
    +7 (938) Показать номер
    Посмотреть контакты
    Торговая площадь в Москва ул. Борисовские Пруды, 3К2 (107 м) - Фото 1
    Торговая площадь в Москва ул. Борисовские Пруды, 3К2 (107 м) - Фото 2
    1095468. Предлагаем к приобретению помещение свободного назначения в ЖК Wave , площадью 107.3 кв. м., расположенное на первом этаже 52-этажной башни Azure . Первая очередь. Преимущества объекта:-ЖК состоит из 11 корпусов переменной этажности (от 9 до...
    • 1/52 эт.
    643 800 Р
    Агент
    +7 (938) Показать номер
    Посмотреть контакты

    Не нашли подходящего объявления?

    Оставьте заявку, и наши риэлторы подберут торговое помещение в районе Москвы

    (0)