600 000 Р 7 330 $ или 6 440

Информация об помещении

1
Этаж

Состояние и оснащение

Количество этажей
6
Развернуть
Агент
+7 (938) 656-74-88
Начать чат с агентом

Торговая площадь в Москва ул. Красная Пресня, 36С1 (101 м)

1134452. Предлагаем помещение свободного назначения, площадью 100,8 кв. м., расположенное на первом этаже и в подвале жилого дома на Красной Пресне. Преимущества объекта:-1 минута пешком до станции метро Улица 1905 года ; -очень высокий пешеходный трафик в течение всего дня;-окружение: жилые дома, бизнес-центры, отели, рестораны, магазины;-сформированная торговая и сервисная инфраструктура;-обновлена отделка;-все центральные коммуникации;-витринное остекление;-место для вывески; -наземная парковка;-рядом остановка общественного транспорта.Технические параметры объекта:-отдельный вход;-площадь по этажам:1 этаж — 60,46 кв. м.,подвал — 40,2 кв. м.;-электрическая мощность: 15 кВт;-высота потолков: 3 м.Подойдёт под кофейню, магазин, шоурум, салон, услуги, общепит (по согласованию).Свяжитесь с нами для получения дополнительной информации

Читать полностью
    Позвонить Написать
    600 000 Р7 330 $ или 6 440
    Агент
    +7 (938) 656-74-88
    Начать чат с агентом
    Похожие предложения
    Торговая площадь (186 м) - Фото 1
    Торговая площадь (186 м) - Фото 2
    Аренда ритейла 186 кв. м в жилом доме «Нахимов (класс A).Этаж: 1.Отделка - с отделкойТип планировки - open-space.Назначение: Торговая площадьПолная ставка аренды - за кв. м/год. НДС включен, эксплуатация включенаМесячный арендный платеж –/месяц.Жилой...
    • 1/25 эт.
    598 176 Р
    Агент
    +7 (984) Показать номер
    Посмотреть контакты
    Торговая площадь в Москва Дербеневская ул., вл1 (50 м) - Фото 1
    Торговая площадь в Москва Дербеневская ул., вл1 (50 м) - Фото 2
    1115130. Предлагаем помещение свободного назначения в Клубном доме OPUS , площадью 49.5 кв. м, расположенное на первом этаже 13-этажного бизнес-центра.Преимущества объекта:-на пересечении ул. Дербеневская и пер. 1-й Дербеневский;-первая линия;-17 минут...
    • 1/13 эт.
    610 000 Р
    Агент
    +7 (938) Показать номер
    Посмотреть контакты
    1010919. Предлагаем помещение свободного назначения под ресторан, площадью 209,6 кв. м., расположенное на третьем этаже бизнес-центра Ла-5 . Преимущества объекта:-деловой комплекс Ла-5 11-этажное офисное здание класса А в стиле хай-тек с зеркальными...
    • 3/11 эт.
    600 000 Р
    Агент
    +7 (938) Показать номер
    Посмотреть контакты
    Торговая площадь в Москва Волгоградский просп., 32/5к4 (112 м) - Фото 1
    Торговая площадь в Москва Волгоградский просп., 32/5к4 (112 м) - Фото 2
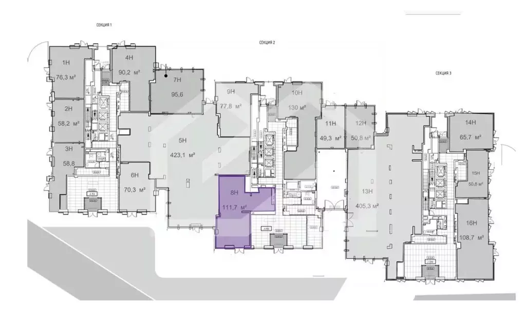
    976898. Предлагаем помещение свободного назначения, площадью 111,7 кв. м, расположенное на первом этаже жилого дома в ЖК Метрополия . Секция 2.Преимущества объекта:-ЖК состоит из 22 корпусов переменной этажности (от 29 до 30 этажей), рассчитанных на...
    • 1/30 эт.
    600 000 Р
    Агент
    +7 (938) Показать номер
    Посмотреть контакты
    Торговая площадь в Москва ул. Борисовские Пруды, 3К2 (86 м) - Фото 1
    Торговая площадь в Москва ул. Борисовские Пруды, 3К2 (86 м) - Фото 2
    1095466. Предлагаем к приобретению помещение свободного назначения в ЖК Wave , площадью 86.3 кв. м., расположенное на первом этаже 3-этажной башни INDIGO . Первая очередь. Помещение 14.Преимущества объекта:-ЖК состоит из 11 корпусов переменной этажности...
    • 1/3 эт.
    604 100 Р
    Агент
    +7 (938) Показать номер
    Посмотреть контакты

    Не нашли подходящего объявления?

    Оставьте заявку, и наши риэлторы подберут торговое помещение в районе Москвы

    (0)