465 432 Р 5 910 $ или 5 060

Информация об помещении

1
Этаж

Состояние и оснащение

Количество этажей
20
Развернуть
Агент
+7 (916) 730-05-83
Начать чат с агентом

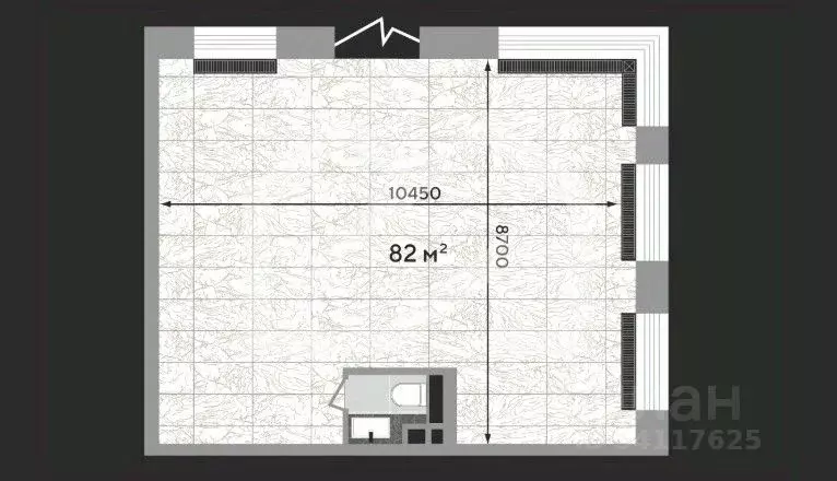
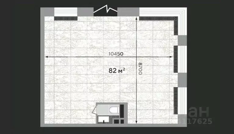
Торговая площадь в Москва ул. Зорге, 9Ак7 (82 м)

Лот К3П9. Аренда коммерческого помещения в квартале Зорге 9 , корпус 3 Soho, 1 этаж.Предлагается просторное угловое помещение свободного назначения площадью 82 м без отделки. Высота потолков 4,5 м, подведённая мощность 12,5 кВт и выведенные мокрые точки позволяют реализовать любой формат бизнеса.Ключевые характеристики:Отдельная входная группа и угловая витрина в пол на две стороны улицы;Правильная прямоугольная форма без колонн и выступов для гибкого зонирования;Возможность размещения крупной вывески на фасаде и логотипов на рекламных стеллах;Система инженерных подключений.В квартале Зорге 9 уже успешно работает развитая коммерческая среда, что обеспечивает стабильный поток посетителей. Якорными арендаторами проекта являются ВкусВилл , ресторан, кафе, чайная и будущий большой фитнес-клуб. Кроме того, наличие парка-променада с возможностью прогулок создаёт проходящий поток людей. Вы также можете разместить свою рекламу в лифтах, мобильном приложении и на ТВ в лобби квартала для повышения видимости вашего бизнеса.Инфраструктура и транспорт:7 мин пешком до метро Полежаевская , Хорошёвская , Зорге , Хорошёво ;Прямой выезд на Хорошёвское шоссе и Ленинградский проспект, 10 мин до Москва-Сити;Напротив входа фитнес-клуб, рядом ТРЦ Хорошо (120+ магазинов и ресторанов), Арена ЦСКА, парки Берёзовая роща и Ходынское поле ;Собственные парковочные места: 2 наземные и 2-уровневая подземная парковка, гостевая зона с почасовой оплатой, долгосрочная аренда машиномест.Премиальная аудитория:Премиальный квартал Зорге 9 — это более 5 000 жителей и сотни гостей ежедневно. Соседство с ЖК премиум- и бизнес-класса гарантирует высокий платёжеспособный трафик и постоянный интерес к вашим услугам или товарам.О проекте Зорге 9 :Три корпуса премиум-класса с панорамным остеклением, элегантной архитектурой и арт-объектами на территории;Лауреат European Property Awards, архитектурная подсветка и продуманные общественные пространства;Система Face ID, и 500 камер видеонаблюдения;Двухуровневый подземный паркинг, зарядные станции для электромобилей.Звоните, чтобы организовать просмотр и обсудить выгодные условия сделки

Читать полностью
    Позвонить Написать
    465 432 Р5 910 $ или 5 060
    Агент
    +7 (916) 730-05-83
    Начать чат с агентом
    Похожие предложения
    Торговая площадь в Москва ул. Зорге, 9Ак7 (82 м) - Фото 1
    Торговая площадь в Москва ул. Зорге, 9Ак7 (82 м) - Фото 2
    1080931. Предлагаем помещение свободного назначения в ЖК Зорге 9 , площадью 82 кв. м, расположенное на первом этаже 24-этажного жилого дома.Преимущества объекта:-ЖК состоит из 3-х корпусов переменной этажности (от 24 до 27 этажей), рассчитанных на 582...
    • 1/24 эт.
    465 432 Р
    Агент
    +7 (938) Показать номер
    Посмотреть контакты
    Торговая площадь в Москва ул. Зорге, 9Ак7 (82 м) - Фото 1
    Торговая площадь в Москва ул. Зорге, 9Ак7 (82 м) - Фото 2
    1080931. Предлагаем помещение свободного назначения в ЖК Зорге 9 , площадью 82 кв. м, расположенное на первом этаже 24-этажного жилого дома.Преимущества объекта:-ЖК состоит из 3-х корпусов переменной этажности (от 24 до 27 этажей), рассчитанных на 582...
    • 1/24 эт.
    465 432 Р
    Агент
    +7 (938) Показать номер
    Посмотреть контакты
    Торговая площадь в Москва ул. Зорге, 9Ак7 (82 м) - Фото 1
    Торговая площадь в Москва ул. Зорге, 9Ак7 (82 м) - Фото 2
    1080931-f . Предлагаем помещение свободного назначения формата street-retail в ЖК Зорге 9 , площадью 82 кв. м, расположенное на первом этаже 24-этажного жилого дома.Преимущества объекта:-ЖК состоит из 3-х корпусов переменной этажности (от 24 до 27 этажей),...
    • 1/24 эт.
    465 432 Р
    Агент
    +7 (938) Показать номер
    Посмотреть контакты
    Торговая площадь в Москва Зорге 9 жилой комплекс, 9Ас4 (76 м) - Фото 1
    Торговая площадь в Москва Зорге 9 жилой комплекс, 9Ас4 (76 м) - Фото 2
    1110140. Предлагаем помещение свободного назначения, площадью 76.2 кв. м, расположенное на первом этаже 3-этажного административного здания в составе ЖК Зорге 9 .Преимущества объекта:-первая линия ул. Зорге;-ЖК состоит из 3-х корпусов переменной этажности...
    • 1/3 эт.
    463 563 Р
    Агент
    +7 (938) Показать номер
    Посмотреть контакты
    Торговая площадь в Москва Зорге 9 жилой комплекс, 9Ас4 (76 м) - Фото 1
    Торговая площадь в Москва Зорге 9 жилой комплекс, 9Ас4 (76 м) - Фото 2
    1110140. Предлагаем помещение свободного назначения, площадью 76.2 кв. м, расположенное на первом этаже 3-этажного административного здания в составе ЖК Зорге 9 .Преимущества объекта:-первая линия ул. Зорге;-ЖК состоит из 3-х корпусов переменной этажности...
    • 1/3 эт.
    463 563 Р
    Агент
    +7 (938) Показать номер
    Посмотреть контакты

    Не нашли подходящего объявления?

    Оставьте заявку, и наши риэлторы подберут торговое помещение в районе Москвы

    (0)