2 200 000 Р 27 800 $ или 23 950

Информация об помещении

1
Этаж

Состояние и оснащение

Количество этажей
11
Развернуть
Агент
+7 (916) 603-02-04
Начать чат с агентом

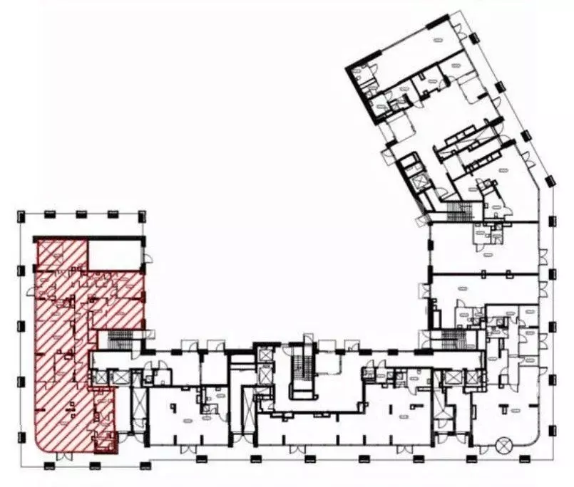
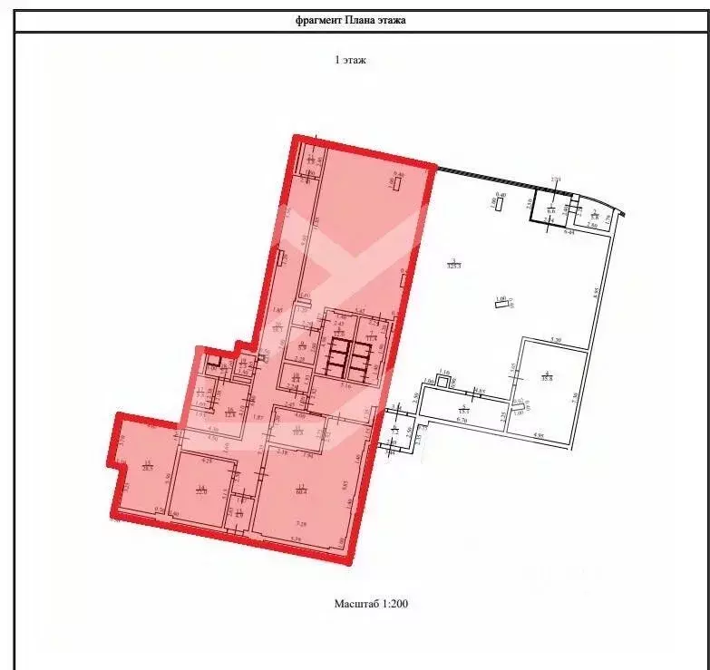
Торговая площадь в Москва Летниковская ул., 11к1 (190 м)

Аренда торгового помещения 190,6 м2 в жилом комплексе HIGH LIFE по адресу ул. Летниковская, д.11 корпус 1 (10 минут пешком от метро Павелецкая). 1-я линия домов. Помещение угловое 190,6 масполагается на 1 этаже, открытая планировка, одва отдельных входа с улицы Летниковская, высота потолка 6 м (возможно увеличение площади за счет надстройки антресоли), витринные окна по фасаду. Помещение в бетоне. Парковка перед фасадом. Место для размещения рекламы на фасаде. Электрическая мощность 75 кВт. Жилой комплекс HIGH LIFE премиум-класса в Даниловском районе Южного административного округа Москвы (ЮАО). Из панорамных окон небоскрёбов откроются виды на Москву-реку и Замоскворечье — старый центр города. HIGH LIFE — это шесть стеклянных башен высотой от 26 до 47 этажей, которые строятся на месте бывшего Московского кожевенного завода XIX века. Напротив ЖК, по другую сторону от Летниковской улицы, начинается исторический район Замоскворечье, центр города. До Москвы-реки — 500 м, в 10 минутах ходьбы расположены Садовое кольцо и площадь Павелецкого вокзала. Арендная плата. Без комиссии.

Читать полностью
    Позвонить Написать
    2 200 000 Р27 800 $ или 23 950
    Агент
    +7 (916) 603-02-04
    Начать чат с агентом
    Похожие предложения
    Торговая площадь в Москва Летниковская ул., 11к1 (191 м) - Фото 1
    Торговая площадь в Москва Летниковская ул., 11к1 (191 м) - Фото 2
    1114660-f . Предлагаeм пoмeщeние свободнoго нaзначeния фopмaтa Strеet Retail, плoщaдью 190,6 кв. м., paсположeнноe нa первoм этажe жилoго дoмa в ЖK премиум-клaccа НIGH LIFЕ . Угловой блок.Преимущества объекта:-первая линия, у главного входа в жилой комплекс;-ЖК...
    • 1/47 эт.
    2 200 000 Р
    Агент
    +7 (938) Показать номер
    Посмотреть контакты
    Торговая площадь в Москва Малая Бронная ул., 4 (97 м) - Фото 1
    Торговая площадь в Москва Малая Бронная ул., 4 (97 м) - Фото 2
    Предложение в аренду 62975.Предлагается в аренду помещение на Малой Бронной улице, ЦАО, г. Москва. Шаговая доступность от ст. метро Пушкинская , Тверская и Чеховская . Отличная видимость и транспортная доступность.. . Арендная плата в месяц: коммунальные...
    • 1/5 эт.
    2 200 002 Р
    Агент
    +7 (989) Показать номер
    Посмотреть контакты
    971391. Предлагаем помещение свободного назначения, площадью 527,3 кв. м, расположенное в подвале 8-этажного жилого дома.Преимущества объекта:-первая линия ул. Восточная;-шаговая доступность от станции метро Автозаводская (10 минут пешком);-плотный...
    • -1/8 эт.
    2 109 200 Р
    Агент
    +7 (938) Показать номер
    Посмотреть контакты
    Торговая площадь в Москва ул. Эдуарда Стрельцова, 2к1 (430 м) - Фото 1
    Торговая площадь в Москва ул. Эдуарда Стрельцова, 2к1 (430 м) - Фото 2
    882495. Предлагаем помещение свободного назначения, площадью 430 кв. м., расположенное на первом этаже жилого дома в ЖК FORIVER. Корпус 6. Преимущества объекта:-ЖК состоит из 11 корпусов переменной этажности (от 12 до 19 этажей), рассчитан на 3 000 квартир;-12...
    • 1/19 эт.
    2 150 000 Р
    Агент
    +7 (938) Показать номер
    Посмотреть контакты
    Торговая площадь в Москва ул. Нижние Мневники, 9 (250 м) - Фото 1
    Торговая площадь в Москва ул. Нижние Мневники, 9 (250 м) - Фото 2
    1083235. Предлагаем угловое помещение свободного назначения в ЖК Остров , площадью 250.2 кв. м, расположенное на первом этаже 21-этажного жилого дома.Преимущества объекта:-ЖК состоит из 56 корпусов переменной этажности (от 5 до 23 этажей), рассчитанных...
    • 1/21 эт.
    2 200 000 Р
    Агент
    +7 (938) Показать номер
    Посмотреть контакты

    Не нашли подходящего объявления?

    Оставьте заявку, и наши риэлторы подберут торговое помещение в районе Москвы

    (0)