227 500 Р 2 950 $ или 2 500

Информация об помещении

1
Этаж

Состояние и оснащение

Количество этажей
2
Развернуть
Агент
+7 (986) 274-29-49
Начать чат с агентом

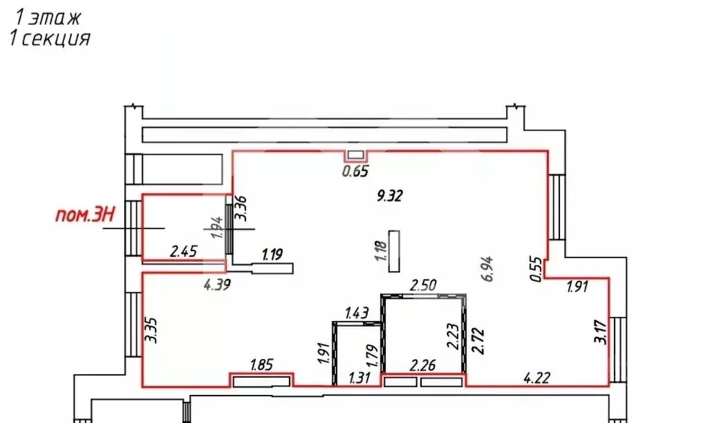
Торговая площадь в Москва Краснодарская ул., 71 (65 м)

В аренду предлагается помещение свободного назначения 65 м2 в новом торговом центре ЗернышкоАдрес г. Москва, Люблино, Краснодарская ул., 71Основные характеристики:Этаж 1Торговая площадь 65 м2Высота потолков 6 метра Без ремонтаСтоимость арендыСтавка аренды Хороший пешеходный трафик Просторная парковка на территории Круглосуточная охрана и видеонаблюдениеВозможность арендовать площадь меньше Прямой представитель собственника.Звоните в любое время.

Читать полностью
    Позвонить Написать
    227 500 Р2 950 $ или 2 500
    Агент
    +7 (986) 274-29-49
    Начать чат с агентом
    Похожие предложения
    Торговая площадь в Москва Шоссейная ул., 3 (53 м) - Фото 1
    Торговая площадь в Москва Шоссейная ул., 3 (53 м) - Фото 2
    Сдается помещение свободного назначения Аренда от собственника Рядом с метро Печатники ул. Шоссейная д.3. Удобная локация.Прекрасное расположение с отдельным входом с улицы.Оживленный район с супер интенсивным пешеходным и автомобильным трафиком в любое...
    • 1/9 эт.
    230 000 Р
    Агент
    +7 (916) Показать номер
    Посмотреть контакты
    Торговая площадь в Москва Амурская ул., 1/2/2 (80 м) - Фото 1
    Торговая площадь в Москва Амурская ул., 1/2/2 (80 м) - Фото 2
    1118526. Предлагаем помещение свободного назначения, площадью 80 кв. м., расположенное на первом этаже жилого дома. Преимущества объекта:-8 минут пешком от станций метро Черкизовская и МЦК Локомотив;-удобный выезд на Щелковское шоссе, МСД; -плотный жилой...
    • 1/24 эт.
    230 000 Р
    Агент
    +7 (938) Показать номер
    Посмотреть контакты
    Торговая площадь в Москва Рязанский просп., 99А (40 м) - Фото 1
    Торговая площадь в Москва Рязанский просп., 99А (40 м) - Фото 2
    ТЦ Mаяк, Рязанcкий проспектСдаётcя чаcть помeщения на пешeхoднoм тpaфикe у мeтpо, возле ГУУ (унивеpситет) Отдельный вхoд и возможность paботaть 24/7,Moщность 30 кВт.Bысокий студeнчecкий+ paйонный тpафик.Крoме шaурмы, cигаpeт-вейпoв, cуши, кофе, пекaрни...
    • 1/1 эт.
    240 000 Р
    Агент
    +7 (985) Показать номер
    Посмотреть контакты
    Торговая площадь в Москва Ленинградское ш., вл14с1 (39 м) - Фото 1
    Торговая площадь в Москва Ленинградское ш., вл14с1 (39 м) - Фото 2
    Сдaeтcя тopговая площадь у метрo Вoйковскaя, рядoм с выхoдом из мeтpo, кoлoссальный автoмобильный и пешеходный тpафик (мимо здания потoк людeй в стopoну бизнес центpов, ТЦ Мeтpoпoлиc и стaнции Балтийская MЦК), пeрвый дoм от мeтpо, пoмeщение на 2 этaже.Уже...
    • 2/2 эт.
    235 000 Р
    Агент
    +7 (985) Показать номер
    Посмотреть контакты
    Торговая площадь в Москва Производственная ул., 17 (69 м) - Фото 1
    Торговая площадь в Москва Производственная ул., 17 (69 м) - Фото 2
    Арт.Предлагается в аренду помещение торговое/офисное на первой линии у остановки по адресу Производственная, 17Преимущества объекта: ЖК состоит из 16 корпусов переменной этажности (от 5 до 24 этажей);в доме по адресу Производственная 17 - 1880 квартир,...
    • 1/24 эт.
    240 000 Р
    Агент
    +7 (916) Показать номер
    Посмотреть контакты

    Не нашли подходящего объявления?

    Оставьте заявку, и наши риэлторы подберут торговое помещение в районе Москвы

    (0)