450 000 Р 5 860 $ или 4 980

Информация об помещении

1
Этаж

Состояние и оснащение

Количество этажей
2
Развернуть
Агент
+7 (938) 656-74-88
Начать чат с агентом

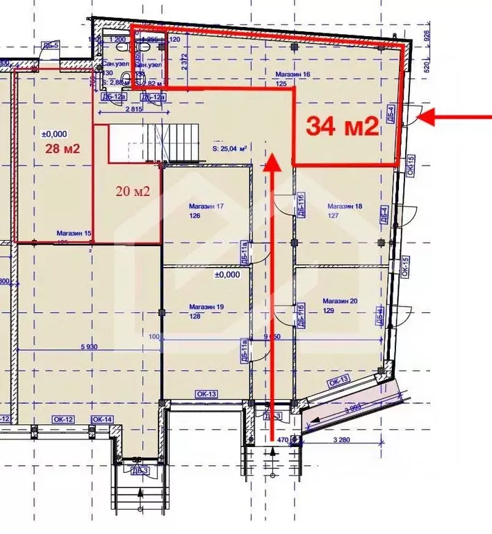
Торговая площадь в Москва Волгоградский просп., 46/15С3А (34 м)

1127316-f . Предлагаем помещение свободного назначения, площадью 34 кв. м, расположенное на первом этаже торгового павильона.Преимущества объекта:-первая линия Волгоградского проспекта;-в 10 м от станции метро Текстильщики ;-удобная транспортная доступность: 3.5 км до ЮВХ, 4.3 км до ТТК, 5.6 км до Рязанского проспекта;-плотный жилой массив;-развитая инфраструктура района;-высокий автомобильный и пешеходный трафик;-отлично просматривается, находится в легком доступе для потенциальных клиентов;-гибкая планировка, позволяющая адаптировать пространство под различные нужды;-вытяжка под общепит;-все центральные коммуникации;-мокрые точки;-санузлы;-пожарная сигнализация;-возможность круглосуточной работы;-подойдет под ресторан, кафе, чайхону, кальянную, сетевой общепит;-витринное остекление;-возможность размещения вывески;-зона погрузки/разгрузки;-наземная парковка;-организован вывоз мусора и уборка территории;-рядом остановка общественного транспорта.Технические параметры объекта:-3 отдельные входные группы (с улицы, с центрального коридора и со двора, где зона разгрузки);-электрическая мощность: 100 кВт (возможность увеличения);-высота потолков: 4 м.Система налогообложения: УСН + 5 НДССвяжитесь с нами для получения дополнительной информации

Читать полностью
    Позвонить Написать
    450 000 Р5 860 $ или 4 980
    Агент
    +7 (938) 656-74-88
    Начать чат с агентом
    Похожие предложения
    Торговая площадь в Москва Тушинская ул., 24С15 (59 м) - Фото 1
    Торговая площадь в Москва Тушинская ул., 24С15 (59 м) - Фото 2
    Арт.Сдается торговая площадь, 58,6 м, в торговом центре на ул. Тушинская, 24с15 Площадь: 58,6 мЭтаж: 1 из 1Помещение: СвободноМетро в пешей доступности: Тушинская 2 мин. пешком.Стрешнево 7 мин. пешком.Спартак (16 мин.), Помещение находится на первом...
    • 1/1 эт.
    450 000 Р
    Агент
    +7 (985) Показать номер
    Посмотреть контакты
    Торговая площадь в Москва Очаковское ш., 9А (97 м) - Фото 1
    Торговая площадь в Москва Очаковское ш., 9А (97 м) - Фото 2
    Аренда торгового помещения, в ЖК Vangarden (3 197 квартир, сдан в эксплуатацию в начале 2025 г.), метро Аминьевская (5 мин пешком). Рядом расположены ЖК Матвеевский Парк (9 190 квартир), Квартал по реновации - (1 247 квартир), ЖК Новое Очаково (11 926...
    • 1/1 эт.
    460 000 Р
    Агент
    +7 (939) Показать номер
    Посмотреть контакты
    Торговая площадь в Москва ул. Панфилова, 2С2 (180 м) - Фото 1
    Торговая площадь в Москва ул. Панфилова, 2С2 (180 м) - Фото 2
    Сдаётся просторное помещение площадью 180 кв.м. на 1 этаже с готовой dark kitchen в Москве, на улице Панфилова. Помещение сейчас находится в чистовой отделке, без выполненного ремонта, что дает вам возможность воплотить свои идеи в дизайне и организации...
    • -1/5 эт.
    450 000 Р
    Агент
    +7 (916) Показать номер
    Посмотреть контакты
    Торговая площадь в Москва, Москва, Зеленоград к1462 (314 м) - Фото 1
    Торговая площадь в Москва, Москва, Зеленоград к1462 (314 м) - Фото 2
    АУКЦИОН. Объект реализуется через электронный аукцион споТип актива: нежилое помещение, располоденное на 1-ом этаже жилого дома. Характеристики: - Общая площадь: 314.1 м - Год постройки: 1994 - Этажность: 1/14 - Высота потолков: 3 м - Отделка помещений:...
    • 1/14 эт.
    444 975 Р
    Агент
    +7 (923) Показать номер
    Посмотреть контакты
    Торговая площадь в Москва ул. Летчика Бабушкина, 10/1 (190 м) - Фото 1
    Торговая площадь в Москва ул. Летчика Бабушкина, 10/1 (190 м) - Фото 2
    Предлагается помещение 190 кв.м на первой линии домов в густонаселенном районе, СВАО, район Бабушкинский. Помещение имеет по два отдельных входа с улицы и со двора. Высокие потолки 4м. Вывески на фасаде. Есть парковка для разгрузки товара. Все центральные...
    • 1/5 эт.
    450 000 Р
    Агент
    +7 (980) Показать номер
    Посмотреть контакты

    Не нашли подходящего объявления?

    Оставьте заявку, и наши риэлторы подберут торговое помещение в районе Москвы

    (0)