850 000 Р 11 070 $ или 9 410

Информация об помещении

1
Этаж

Состояние и оснащение

Количество этажей
2
Развернуть
Агент
+7 (938) 656-74-88
Начать чат с агентом

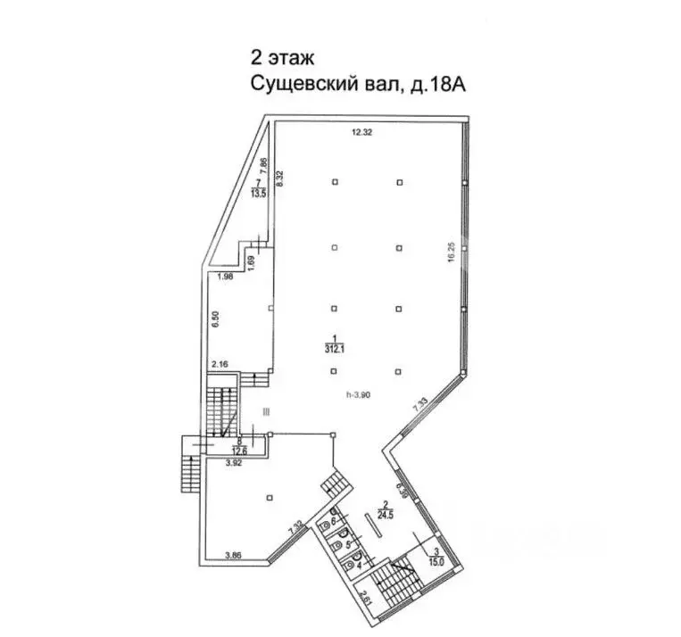
Торговая площадь в Москва ул. Сущевский Вал, 18А (160 м)

1101515-f . Предлагаем помещение свободного назначения, площадью 160 кв. м, расположенное на первом этаже 2-этажного здания.Преимущества объекта:-первая линия ул. Сущёвский Вал;-шаговая доступность от станции метро Марьина Роща (10 минут пешком);-удобная транспортная доступность: 1.6 км до ТТК, 2.5 км до проспекта Мира, 3 км до Садового кольца, 3.4 км до Ленинградского проспекта, 3.7 км до Дмитровского шоссе;-плотный жилой массив;-развитая инфраструктура района;-соседство с 23-этажным бизнес-центром класса А — престижная деловая среда;-высокий автомобильный и пешеходный трафик;-отлично просматривается, находится в легком доступе для потенциальных клиентов;-гибкая планировка, позволяющая адаптировать пространство под различные нужды;-все центральные коммуникации;-вытяжка под общепит;-витринное остекление;-возможность размещения вывески;-зона погрузки/разгрузки;-наземная парковка;-рядом остановка общественного транспорта.Технические параметры объекта:-отдельный вход с улицы.-электрическая мощность: 40 кВт.-высота потолков: 3.2 м.Свяжитесь с нами для получения дополнительной информации

Читать полностью
    Позвонить Написать
    850 000 Р11 070 $ или 9 410
    Агент
    +7 (938) 656-74-88
    Начать чат с агентом
    Похожие предложения
    Торговая площадь в Москва ул. Сущевский Вал, 18А (160 м) - Фото 1
    Торговая площадь в Москва ул. Сущевский Вал, 18А (160 м) - Фото 2
    1101515-f . Предлагаем помещение свободного назначения, площадью 160 кв. м, расположенное на первом этаже 2-этажного здания.Преимущества объекта:-первая линия ул. Сущёвский Вал;-шаговая доступность от станции метро Марьина Роща (10 минут пешком);-удобная...
    • 1/2 эт.
    850 000 Р
    Агент
    +7 (938) Показать номер
    Посмотреть контакты
    Торговая площадь в Москва ул. Сущевский Вал, 18А (393 м) - Фото 1
    Торговая площадь в Москва ул. Сущевский Вал, 18А (393 м) - Фото 2
    1103213-f . Предлагаем помещение свободного назначения, площадью 393 кв. м, расположенное на втором этаже 2-этажного здания.Преимущества объекта:-первая линия ул. Сущёвский Вал;-шаговая доступность от станции метро Марьина Роща (10 минут пешком);-удобная...
    • 2/2 эт.
    850 000 Р
    Агент
    +7 (938) Показать номер
    Посмотреть контакты
    Торговая площадь в Москва ул. Мельникова, 2 (211 м) - Фото 1
    Торговая площадь в Москва ул. Мельникова, 2 (211 м) - Фото 2
    Прекрасная возможность арендовать уникальное помещение под магазин на первом этаже площадью 211.00 кв.м. с высотой потолков 4.5 метра. В данный момент в помещении выполнен стандартный ремонт, который можно оставить или дополнительно обновить под ваши...
    • 1/15 эт.
    843 000 Р
    Агент
    +7 (916) Показать номер
    Посмотреть контакты
    Торговая площадь в Москва Дербеневская ул., вл1 (76 м) - Фото 1
    Торговая площадь в Москва Дербеневская ул., вл1 (76 м) - Фото 2
    1115131-f . Предлагаем помещение свободного назначения в Клубном доме OPUS , площадью 76.4 кв. м, расположенное на первом этаже 13-этажного бизнес-центра. Преимущества объекта:-на пересечении ул. Дербеневская и пер. 1-й Дербеневский;-первая линия;-17...
    • 1/13 эт.
    850 000 Р
    Агент
    +7 (938) Показать номер
    Посмотреть контакты
    Торговая площадь в Москва наб. Пресненская, 10А (102 м) - Фото 1
    Торговая площадь в Москва наб. Пресненская, 10А (102 м) - Фото 2
    Предложение в аренду 62665.Парковка: подземная.Предлагаем в аренду помещение под общепит в Сити. Башня на Набережной.. Помещение расположено на цокольном этаже. Общая площадь 102м2. Вытяжка под общепит.. В ставку включена эксплуатация, к/у оплачиваются...
    • -1/59 эт.
    840 004 Р
    Агент
    +7 (989) Показать номер
    Посмотреть контакты

    Не нашли подходящего объявления?

    Оставьте заявку, и наши риэлторы подберут торговое помещение в районе Москвы

    (0)