250 000 Р 3 260 $ или 2 750

Информация об помещении

1
Этаж

Состояние и оснащение

Количество этажей
23
Развернуть
Агент
+7 (985) 515-74-74
Начать чат с агентом

Торговая площадь в Москва Хорошевское ш., 25Ак2 (67 м)

Лот 159740.г. Москва, Хорошевское шоссе, 25Ак2, площадь 67 кв.м., метро Хорошевская - в 5 минутах пешком. Первая линия домов, интенсивный пешеходный и автомобильный трафик. Рядом остановка общественного транспорта. Плотный жилой массив вокруг, богатое торговое окружение, высокая покупательская способность жителей района. Помещение соседствует с пекарней Буханка - мощным генератором трафика в этой локации. Общий вход с пекаренй Буханка.Технические характеристики: площадь - 67 кв.м., этаж 1 из 23. Многоквартирный жилой дом. высота потолка - 3,5 метра. эл. мощность - 11 кВт. Возможность размещения вывески на фасаде. Есть парковка прямо напротив помещения. Витринные окна, возможноть организации технологической вытяжки под общепит. Планировка открытая. Все коммуникации центральные. Помещение с ремонтом.Коммерческие условия:Ставка в месяц -Ставка за кв.м/месяц -Форма налогооблажения - УСНЭксплуатационные и коммуналные платежи оплачиваются дополнительноСрок аренды - долгосрокСтраховой депозит - 1 месяц.

Читать полностью
    Позвонить Написать
    250 000 Р3 260 $ или 2 750
    Агент
    +7 (985) 515-74-74
    Начать чат с агентом
    Похожие предложения
    Торговая площадь в Москва Сиреневый бул., 4/7 (81 м) - Фото 1
    Торговая площадь в Москва Сиреневый бул., 4/7 (81 м) - Фото 2
    1120371-f . Предлагаем угловое помещение свободного назначения формата street-retail, площадью 80.6 кв. м, расположенное на первом этаже 20-этажного жилого дома.Преимущества объекта:-7 минут на автомобиле от станции метро Партизанская и Измайловская...
    • 1/20 эт.
    240 000 Р
    Агент
    +7 (938) Показать номер
    Посмотреть контакты
    Аренда торгового помещения, м. Бауманская, ул. Бауманская - Фото 1
    Аренда торгового помещения, м. Бауманская, ул. Бауманская - Фото 2
    Аренда торгового помещения, м. Бауманская, ул. Бауманская - Фото 3
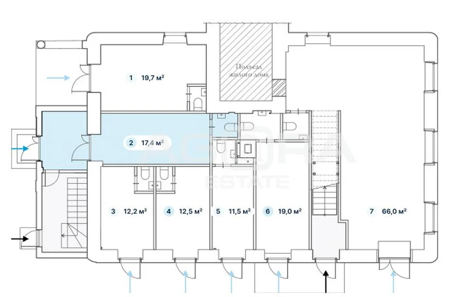
    общая площадь 17.4м², реализуемая площадь 17.4м²

    Аренда торгового помещения На выходе из метро, станция Бауманская Площадь - 17,4 м2. Полностью на 1-м этаже (на плане - блок 2). Отдельный вход с улицы. Планировка - открытая (сетка колонн). Состояние - под чистовую отделку. Все городские коммуникации....
    • 17.4 м²
    • 1/3 эт.
    350 000 Р /в месяц
    Агент
    +7 (903) Показать номер
    Посмотреть контакты
    Аренда торгового помещения, м. Маяковская, Большая Садовая ул - Фото 1
    Аренда торгового помещения, м. Маяковская, Большая Садовая ул - Фото 2
    Аренда торгового помещения, м. Маяковская, Большая Садовая ул - Фото 3
    Аренда торгового помещения, м. Маяковская, Большая Садовая ул - Фото 4
    Аренда торгового помещения, м. Маяковская, Большая Садовая ул - Фото 5
    общая площадь 27.9м², реализуемая площадь 27.9м²

    Аренда помещения в шаговой доступности от метро Маяковская - 3 минуты пешком. Отличная видимость и транспортная доступность. Продажа Street Retail помещения торгового или свободного назначения общей площадью 27,9 кв.м, расположенного на 1-м этаже нежилого...
    • 27.9 м²
    • 1/1 эт.
    560 000 Р /в месяц
    Агент
    +7 (903) Показать номер
    Посмотреть контакты
    Торговая площадь в Москва пер. 1-й Котляковский, 4к1 (96 м) - Фото 1
    Торговая площадь в Москва пер. 1-й Котляковский, 4к1 (96 м) - Фото 2
    Аренда торгового помещения 96 м2 на 1-ом Котляковском переулке, д.4 корпус 1 (13 минут пешком от метро Варшавская). 1-я линия домов. Помещение 96 масполагается на 1 этаже, открытая планировка, отдельный вход с фасада, высота потолка 4,5 м, витринные окна...
    • 1/24 эт.
    240 000 Р
    Агент
    +7 (916) Показать номер
    Посмотреть контакты
    Торговая площадь в Москва ул. Братьев Бромлей, 5к1 (77 м) - Фото 1
    Торговая площадь в Москва ул. Братьев Бромлей, 5к1 (77 м) - Фото 2
    Арт.Аренда торгового помещения, 77 мул. Братьев Бромлей, д. 5, корп. 1Локация:Расположение в центре жилого массива, на ключевой улице ЖК;Удобная транспортная доступность: 20 минут от метро Филатов Луг ;Рядом остановка общественного транспорта;Перспективная...
    • 1/9 эт.
    250 000 Р
    Агент
    +7 (916) Показать номер
    Посмотреть контакты

    Не нашли подходящего объявления?

    Оставьте заявку, и наши риэлторы подберут торговое помещение в районе Москвы

    (0)