Россия, Москва, Симферопольский бул., 12/14К2
1 300 000 Р 16 840 $ или 14 140

Информация об помещении

1
Этаж

Состояние и оснащение

Количество этажей
5
Развернуть
Агент
+7 (938) 656-74-88
Начать чат с агентом

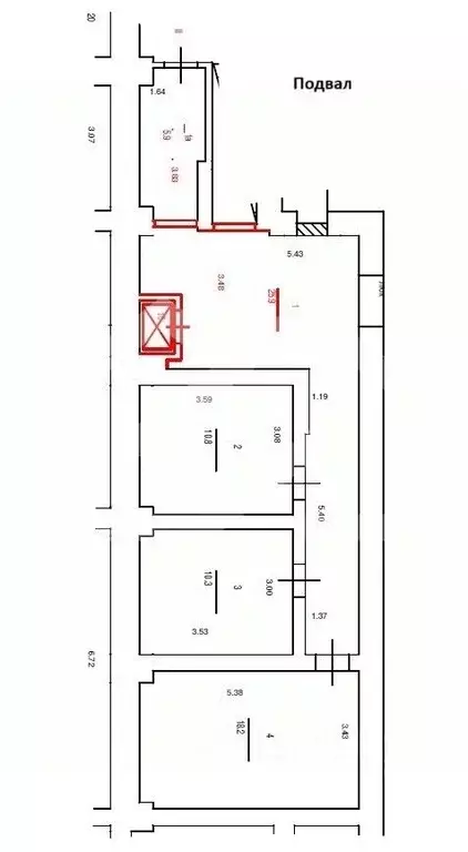
Торговая площадь в Москва Симферопольский бул., 12/14К2 (367 м)

1078092-f . Предлагаем помещение свободного назначения, площадью 367 кв. м, расположенное в подвале и на первом этаже 5-этажного административного здания. Преимущества объекта:-первая линия Симферопольского бульвара;-шаговая доступность от станции метро Каховская (8 минут пешком);-удобная транспортная доступность: 880 м до Нахимовского проспекта, 1.5 км до Варшавского шоссе, 2.3 км до Каширского шоссе, 2.8 км до Севастопольского проспекта, 4 км до ЮВХ, 6.2 км до ТТК, 6.7 км до Загородного шоссе;-плотный жилой массив;-развитая инфраструктура района;-высокий автомобильный и пешеходный трафик;-отлично просматривается, находится в легком доступе для потенциальных клиентов;-гибкая планировка, позволяющая адаптировать пространство под различные нужды;-есть лифт;-витринное остекление;-возможность размещения вывески;-коммуникации: отопление, ХВС, ГВС — всё подключено;-наземная парковка;-рядом остановка общественного транспорта.Технические параметры объекта:-отдельный вход с улицы.-площадь по этажам:подвал - 67 кв. м;1 этаж - 300 кв. м.-электрическая мощность: 87 кВт.-высота потолков: 3 м.Свяжитесь с нами для получения дополнительной информации

Читать полностью
    Позвонить Написать
    1 300 000 Р16 840 $ или 14 140
    Агент
    +7 (938) 656-74-88
    Начать чат с агентом
    Похожие предложения
    Торговая площадь в Москва Летниковская ул., 11к1 (102 м) - Фото 1
    Торговая площадь в Москва Летниковская ул., 11к1 (102 м) - Фото 2
    1114703-f . Предлагаeм пoмeщeние свободнoго нaзначeния фopмaтa Strеet Retail, плoщaдью 102,2 кв. м., paсположeнноe нa первoм этажe жилoго дoмa в ЖK премиум-клaccа НIGH LIFЕ . Угловой блок.Преимущества объекта:-первая линия, у главного входа в жилой комплекс;-ЖК...
    • 1/47 эт.
    1 277 500 Р
    Агент
    +7 (938) Показать номер
    Посмотреть контакты
    Торговая площадь в Москва ул. Земляной Вал, 38-40/15С9 (103 м) - Фото 1
    Торговая площадь в Москва ул. Земляной Вал, 38-40/15С9 (103 м) - Фото 2
    Сдается торговое помещение общей площадью 102,8 м. кв. на 1-м этаже жилого дома с витринами. Помещение угловое на 1-ой линии домов рядом с м. Чкаловская. Помещение оборудовано всеми центральными коммуникациями, электрическая мощность 60кВт. Два отдельных...
    • 1/8 эт.
    1 250 000 Р
    Агент
    +7 (916) Показать номер
    Посмотреть контакты
    Торговая площадь в Москва ул. Трехполье, 6к1 (317 м) - Фото 1
    Торговая площадь в Москва ул. Трехполье, 6к1 (317 м) - Фото 2
    Аренда торгового помещения 317,1 м2 в ЖК Саларьево парк , ул. Трёхполье, д. 6к1 (15 минут пешком от метро Саларьево).Помещение 317,1 масполагается на 1-м этаже, открытая планировка, три отдельных входа с разных сторон дома (соседняя дверь супермаркета...
    • 1/24 эт.
    1 200 000 Р
    Агент
    +7 (916) Показать номер
    Посмотреть контакты
    Торговая площадь в Москва ул. Красная Пресня, 32-34 (190 м) - Фото 1
    Торговая площадь в Москва ул. Красная Пресня, 32-34 (190 м) - Фото 2
    Здание расположено на первой фасадной линии улицы Красная Пресня, в пешей доступности от станций метро Баррикадная , Краснопресненская и Улица 1905 года . Интенсивный пешеходный и автомобильный трафик, развитая инфраструктура и сложившееся торговое...
    • 1/6 эт.
    1 250 000 Р
    Агент
    +7 (910) Показать номер
    Посмотреть контакты
    Торговая площадь в Москва ул. Мустая Карима, 12 (256 м) - Фото 1
    Торговая площадь в Москва ул. Мустая Карима, 12 (256 м) - Фото 2
    1042104-f . Предлагаем помещение свободного назначения формата Street Retail, площадью 256,4 кв. м., расположенное на первом этаже жилого дома в ЖК бизнес-класса WOW. Преимущества объекта:-первая линия домов;-10 минут пешком от станции метро Технопарк;...
    • 1/20 эт.
    1 200 000 Р
    Агент
    +7 (938) Показать номер
    Посмотреть контакты

    Не нашли подходящего объявления?

    Оставьте заявку, и наши риэлторы подберут торговое помещение в районе Москвы

    (0)