425 000 Р 5 500 $ или 4 620

Информация об помещении

1
Этаж

Состояние и оснащение

Количество этажей
14
Развернуть
Агент
+7 (938) 656-74-88
Начать чат с агентом

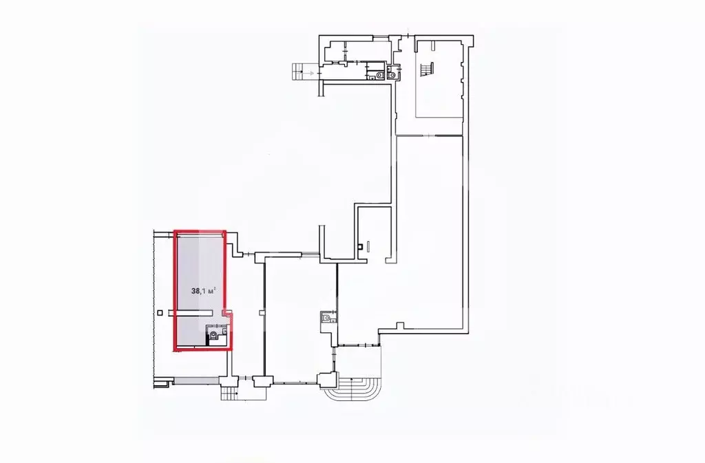
Торговая площадь в Москва Калужская пл., 1К1 (38 м)

979066-f . Предлагаем помещение свободного назначения формата street-retail, площадью 38.1 кв. м, расположенное на первом этаже 14-этажного жилого дома.Преимущества объекта:-первая линия;-шаговая доступность от станции метро Октябрьская (2 минуты пешком);-удобная транспортная доступность: 350 м до Садового кольца, 670 м до Ленинского проспекта, 2.2 км до Подольского шоссе, 3.8 км до ТТК;-плотный жилой массив;-развитая инфраструктура района;-высокий автомобильный и пешеходный трафик;-отлично просматривается, находится в легком доступе для потенциальных клиентов;-гибкая планировка, позволяющая адаптировать пространство под различные нужды;-все городские инженерные коммуникации;-санузел;-отдельный прибор учета электричества-витринное остекление;-возможность размещения вывески;-наземная парковка;-рядом остановка общественного транспорта.Технические параметры объекта:-отдельный вход со двора.-высота потолков: 4.4 м.Свяжитесь с нами для получения дополнительной информации

Читать полностью
    Позвонить Написать
    425 000 Р5 500 $ или 4 620
    Агент
    +7 (938) 656-74-88
    Начать чат с агентом
    Похожие предложения
    Торговая площадь в Москва Калужская пл., 1К1 (38 м) - Фото 1
    Торговая площадь в Москва Калужская пл., 1К1 (38 м) - Фото 2
    979065-f . Предлагаем помещение свободного назначения формата street-retail, площадью 38.1 кв. м, расположенное на первом этаже 14-этажного жилого дома.Преимущества объекта:-первая линия;-шаговая доступность от станции метро Октябрьская (2 минуты пешком);-удобная...
    • 1/14 эт.
    425 000 Р
    Агент
    +7 (938) Показать номер
    Посмотреть контакты
    Торговая площадь в Москва Звенигородское ш., 3АС1 (73 м) - Фото 1
    Торговая площадь в Москва Звенигородское ш., 3АС1 (73 м) - Фото 2
    Предлагается в аренду помещение торгового назначения 72.8 м2 (1 этаж) по адресу: Звенигородское ш. д.3А стр.1Аренда Street Retail помещений торгового или свободного назначения (ПСН)на 1 этаже и в подвале жилого здания. Планировка — открытая (свободная),...
    • 1/8 эт.
    440 000 Р
    Агент
    +7 (910) Показать номер
    Посмотреть контакты
    Торговая площадь в Москва ул. Народного Ополчения, 44к1 (80 м) - Фото 1
    Торговая площадь в Москва ул. Народного Ополчения, 44к1 (80 м) - Фото 2
    Сдается в аренду ПСН 100 метров от метро Октябрьское поле 80.1 м2.- 1 линия, высокий трафик, до метро 5 минут.- Мощность 25 кВт.- Высота потолков 3 метра.- Отдельный вход.- Витринное остекление, возможность размещения вывески.- Напротив пешеходный переход,...
    • 1/9 эт.
    435 000 Р
    Агент
    +7 (916) Показать номер
    Посмотреть контакты
    Торговая площадь в Москва просп. Генерала Дорохова, 49вл1 (84 м) - Фото 1
    Торговая площадь в Москва просп. Генерала Дорохова, 49вл1 (84 м) - Фото 2
    1077823-f . Предлагаем помещение свободного назначения формата street-retail в ЖК Will Towers , площадью 84.3 кв. м, расположенное на первом этаже 52-этажного жилого дома. Корпус: 2.Преимущества объекта:-район Раменки в ЗАО;-первая линия проспекта Генерала...
    • 1/52 эт.
    420 000 Р
    Агент
    +7 (938) Показать номер
    Посмотреть контакты
    Торговая площадь в Москва Варшавское ш., 284к1 (220 м) - Фото 1
    Торговая площадь в Москва Варшавское ш., 284к1 (220 м) - Фото 2
    935040-f . Предлагаем помещение свободного назначения формата street-retail в ЖК Никольские Луга , корпус 4, секция 6, площадью 219.5 кв. м, расположенное на первом этаже 17-этажного жилого дома.Преимущества объекта:-ЖК состоит из 10 корпусов переменной...
    • 1/17 эт.
    439 000 Р
    Агент
    +7 (938) Показать номер
    Посмотреть контакты

    Не нашли подходящего объявления?

    Оставьте заявку, и наши риэлторы подберут торговое помещение в районе Москвы

    (0)