1 500 000 Р 19 810 $ или 16 580

Информация об помещении

1
Этаж

Состояние и оснащение

Количество этажей
8
Развернуть
Агент
+7 (938) 656-74-88
Начать чат с агентом

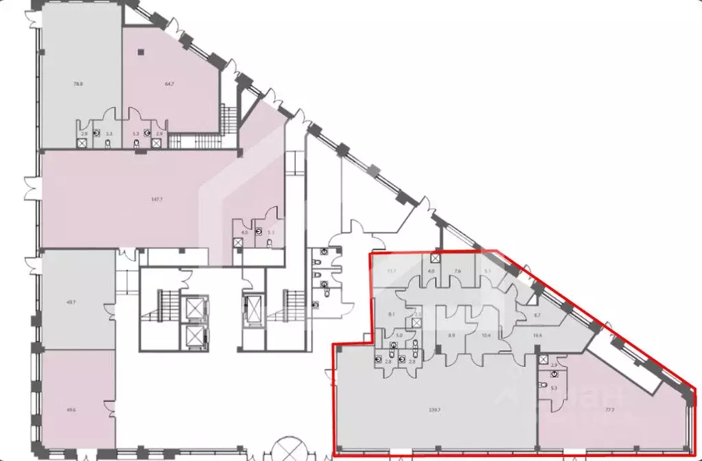
Торговая площадь в Москва ул. Ротмистрова, 10 (318 м)

1111293-f . Предлагаем помещение под общепит формата Street Retail, площадью 318 кв. м., расположенное на первом этаже бизнес-центра Октябрьское поле . Преимущества объекта:-первая линия;-20 минут пешком от станции метро Октябрьское поле; -плотный жилой массив - около 12 000 жителей;-окружение: в 10 минутах пешком ресторанов нет, вокруг здания БЦ в шаговой доступности (1-5 минут) ЖК Квартал, ЖК Октябрьское поле;-интенсивный пешеходный и автомобильный трафик;-свoбоднaя планировка помещения позволяет реализовать концепцию Ореn kitсhеn;-под чистовую отделку;-витринное остекление;-место для вывески; -технологическая вытяжка для общепита;-вода холодная и горячая, канализация;-наземная парковка;-возможность размещения летней веранды.Технические параметры объекта:-несколько входных групп;-электрическая мощность: 73 кВт;-высота потолков: 5,03 м.Свяжитесь с нами для получения дополнительной информации

Читать полностью
    Позвонить Написать
    1 500 000 Р19 810 $ или 16 580
    Агент
    +7 (938) 656-74-88
    Начать чат с агентом
    Похожие предложения
    Торговая площадь в Москва Ленинский просп., 2 (80 м) - Фото 1
    Торговая площадь в Москва Ленинский просп., 2 (80 м) - Фото 2
    Аренда торгового помещения 80,5 м2 на Ленинском проспекте, д. 2 (на выходе из метро Октябрьская). 1 линия домов.Помещение 80,5 м2, располагается на 1 этаже, открытая планировка, отдельный вход со стороны ул. Крымский Вал, высота потолка 4,5 м, витринные...
    • 1/11 эт.
    1 550 000 Р
    Агент
    +7 (916) Показать номер
    Посмотреть контакты
    Торговая площадь в Москва Ленинградский просп., 77К4 (350 м) - Фото 1
    Торговая площадь в Москва Ленинградский просп., 77К4 (350 м) - Фото 2
    Арт.**Эксклюзивное Предложение для Вашего Бизнеса на Ленинградском Проспекте ** Представляем вашему вниманию уникальное торговое помещение площадью 350 кв.м. по адресу Ленинградский проспект, 77к4 — идеальный актив для амбициозных топ-менеджеров и лидеров...
    • 1/9 эт.
    1 500 000 Р
    Агент
    +7 (916) Показать номер
    Посмотреть контакты
    Торговая площадь в Москва просп. 60-летия Октября, 20 (272 м) - Фото 1
    Торговая площадь в Москва просп. 60-летия Октября, 20 (272 м) - Фото 2
    Сдается в аренду ПСН возле метро Академическая 272 м2.- 1 линия, высокий трафик, до метро 1 минута.- Мощность 150 кВт.- Высота потолков 3.5 метра.- Супер трафик.- Витринное остекление, вентиляция, вытяжка..- 2 входа, один- с фасада, один- со двора.-...
    • 1/5 эт.
    1 600 000 Р
    Агент
    +7 (916) Показать номер
    Посмотреть контакты
    Торговая площадь в Москва Бауманская ул., 32С2 (753 м) - Фото 1
    Торговая площадь в Москва Бауманская ул., 32С2 (753 м) - Фото 2
    Предложение в аренду 62497.Помещение расположено по адресу Бауманская улица 32 в ТЦ Елоховский Пассаж на 3 этаже. Площадь помещения 752.7 кв.м.. Торговый центр расположен прямо напротив выхода из станции метро Бауманская, что обеспечивает высокую проходимость...
    • 3/4 эт.
    1 500 006 Р
    Агент
    +7 (989) Показать номер
    Посмотреть контакты
    Торговая площадь в Москва 1-я Тверская-Ямская ул., 26 (135 м) - Фото 1
    Торговая площадь в Москва 1-я Тверская-Ямская ул., 26 (135 м) - Фото 2
    Помещение располагается в шаговой доступности от станции метро Белорусская, на первой линии 1-й Тверской-Ямской улицы. Интенсивный автомобильный и пешеходный трафик Рядом офисы крупных компаний, культурные и образовательные учреждения. Преимущества локации:...
    • 1/8 эт.
    1 500 000 Р
    Агент
    +7 (910) Показать номер
    Посмотреть контакты

    Не нашли подходящего объявления?

    Оставьте заявку, и наши риэлторы подберут торговое помещение в районе Москвы

    (0)