600 000 Р 7 890 $ или 6 650

Информация об помещении

1
Этаж

Состояние и оснащение

Количество этажей
1
Развернуть
Агент
+7 (916) 089-70-41
Начать чат с агентом

Торговая площадь в Москва Краснодарская ул., 57К3 (100 м)

Арт.. Удобная локация с высокой проходимостьюВсего 5 минут пешком от метро Люблино — ваши будущие клиенты будут попадать к вам напрямую из метро. Объект расположен в активно развивающемся районе с плотной жилой застройкой и растущей покупательской способностью.Идеальные технические возможности:Просторная площадь 100,4 м — достаточно места для магазина, кафе, салона или офиса услуг.Высокие потолки 3,8 м — свобода для дизайнерских решений, возможность установки дополнительного оборудования или создания второго уровня.Готовая электрическая мощность 15 кВт — достаточно для работы современного торгового или производственного оборудования, кухонной техники, освещения и климатических систем.Для кого это помещение:• Супермаркет у дома или продуктовый магазин• Кафе, кондитерская или столовая• Салон красоты, барбершоп или фитнес-студия• Аптека или медицинский центр• Офис для оказания услуг (страхование, туризм, недвижимость)Конкурентное предложение:Аренда всего 600 000 в месяц за готовое к работе помещение в локации с гарантированным трафиком от метро.Не упустите возможность занять одно из лучших торговых мест в районе Люблино — там, где есть стабильный спрос и растущая аудитория. Участник AREA - Ассоциации Агентств Элитной Недвижимости.

Читать полностью
    Позвонить Написать
    600 000 Р7 890 $ или 6 650
    Агент
    +7 (916) 089-70-41
    Начать чат с агентом
    Похожие предложения
    Торговая площадь в Москва Озерная ул., 44 (200 м) - Фото 1
    Торговая площадь в Москва Озерная ул., 44 (200 м) - Фото 2
    Лот 158887.В аренду предлагается торговое помещение в ЗАО, ул. Озерная, д.44 (ЖК Мичуринский парк). Помещение расположено на 1 этаже жилого дома. Отличная визуализация, высокий рекламный потенциал и интенсивный пешеходный трафик делают помещение идеальным...
    • 1/15 эт.
    600 000 Р
    Агент
    +7 (985) Показать номер
    Посмотреть контакты
    Торговая площадь в Москва Страна Озерная жилой комплекс (109 м) - Фото 1
    Торговая площадь в Москва Страна Озерная жилой комплекс (109 м) - Фото 2
    Лот 156611.Аренда торгового помещения по адресу: Москва, Озёрная 42. Жилой комплекс бизнес-класса на 1240 квартир на Западе Москвы. 1,6 км до МКАД, на машине путь до центра Москвы 33 минуты. 2 минуты пешком до метро Озерная Ввод в эксплуатацию - 2 кв....
    • 1/30 эт.
    601 150 Р
    Агент
    +7 (985) Показать номер
    Посмотреть контакты
    Торговая площадь в Москва Уссурийская ул., 9 (220 м) - Фото 1
    Торговая площадь в Москва Уссурийская ул., 9 (220 м) - Фото 2
    Предложение в аренду 62008.Парковка: есть.B apeнду пpeдлагается торговая площадь во встроенно-пристроенном здании к . жилому дому, площадью 219.6м по aдpecу: Москва, Уссурийская, 9.. . Kлючевые прeимущecтва:. Первая линия. витринные окна. Парковка 20м/м....
    • 1/16 эт.
    600 003 Р
    Агент
    +7 (989) Показать номер
    Посмотреть контакты
    Торговая площадь в Москва Волгоградский просп., 32/5к4 (112 м) - Фото 1
    Торговая площадь в Москва Волгоградский просп., 32/5к4 (112 м) - Фото 2
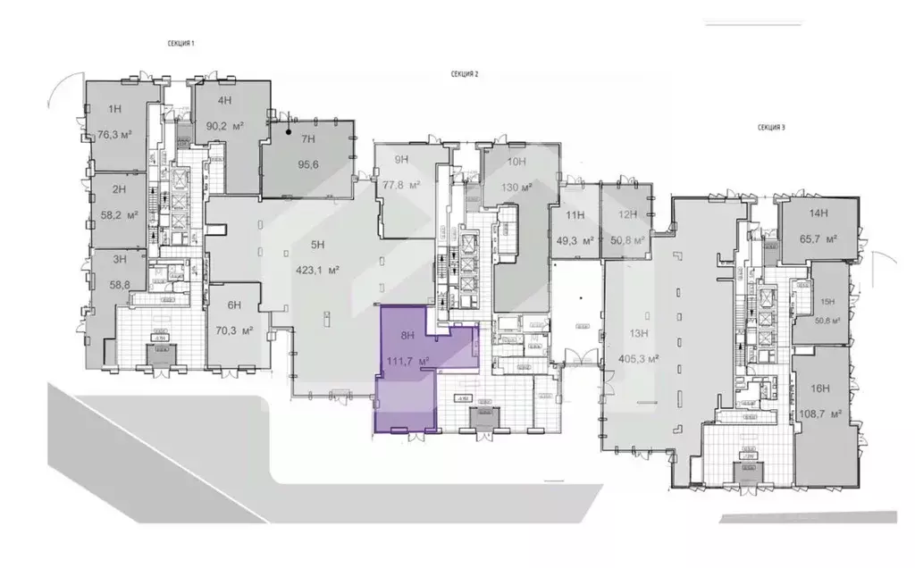
    976898-f . Предлагаем помещение свободного назначения формата Street Retail, площадью 111,7 кв. м, расположенное на первом этаже жилого дома в ЖК Метрополия . Секция 2.Преимущества объекта:-ЖК состоит из 22 корпусов переменной этажности (от 29 до 30...
    • 1/30 эт.
    600 000 Р
    Агент
    +7 (938) Показать номер
    Посмотреть контакты
    Торговая площадь в Москва пос. Внуково, Центральная ул., 8Б (210 м) - Фото 1
    Торговая площадь в Москва пос. Внуково, Центральная ул., 8Б (210 м) - Фото 2
    1010919-f . Предлагаем помещение свободного назначения под ресторан, площадью 209,6 кв. м., расположенное на третьем этаже бизнес-центра Ла-5 . Преимущества объекта:-деловой комплекс Ла-5 11-этажное офисное здание класса А в стиле хай-тек с зеркальными...
    • 3/11 эт.
    600 000 Р
    Агент
    +7 (938) Показать номер
    Посмотреть контакты

    Не нашли подходящего объявления?

    Оставьте заявку, и наши риэлторы подберут торговое помещение в районе Москвы

    (0)