1 550 000 Р 20 390 $ или 17 170

Информация об помещении

1
Этаж

Состояние и оснащение

Количество этажей
14
Развернуть
Агент
+7 (938) 656-74-88
Начать чат с агентом

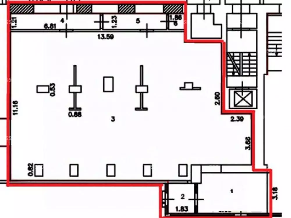
Торговая площадь в Москва Калужская пл., 1К1 (239 м)

895314-f . Предлагаем помещение свободного назначения формата street-retail, площадью 239 кв. м, расположенное на первом этаже 14-этажного жилого дома. Преимущества объекта:-первая линия;-шаговая доступность от станции метро Октябрьская (2 минуты пешком);-удобная транспортная доступность: 350 м до Садового кольца, 670 м до Ленинского проспекта, 2.2 км до Подольского шоссе, 3.8 км до ТТК;-плотный жилой массив;-развитая инфраструктура района;-высокий автомобильный и пешеходный трафик;-отлично просматривается, находится в легком доступе для потенциальных клиентов;-гибкая планировка, позволяющая адаптировать пространство под различные нужды;-все городские инженерные коммуникации;-санузел;-отдельный прибор учета электричества-витринное остекление;-возможность размещения вывески;-наземная парковка;-рядом остановка общественного транспорта.Технические параметры объекта:-2 отдельные входные группы.-этажность: 1 этаж + антресоль.-высота потолков: 4.4 м.Свяжитесь с нами для получения дополнительной информации

Читать полностью
    Позвонить Написать
    1 550 000 Р20 390 $ или 17 170
    Агент
    +7 (938) 656-74-88
    Начать чат с агентом
    Похожие предложения
    Торговая площадь в Москва Пятницкая ул., 59/19С5 (180 м) - Фото 1
    Торговая площадь в Москва Пятницкая ул., 59/19С5 (180 м) - Фото 2
    Это объект не для старта и не для экспериментов.Он для бизнеса, который:| Уже зарабатывает и понимает ценность локации,| Продаёт дорого, регулярно и вживую,| Зависит от потока, статуса и визуального контакта с клиентом.Идеально подойдут:| Fashion-бренды...
    • 1/9 эт.
    1 500 000 Р
    Агент
    +7 (986) Показать номер
    Посмотреть контакты
    Торговая площадь в Москва Новоостаповская ул., 20 (554 м) - Фото 1
    Торговая площадь в Москва Новоостаповская ул., 20 (554 м) - Фото 2
    Лот 158469.Предлагается в аренду коммерческое помещение на первом этаже 23-этажного жилого дома в ЖКА HighWay. ЮВАО, 50 метров от метро Волгоградский проспект . Высокая транспортная доступность, парковочные места.Плотная жилая застройка, бизнес-центр,...
    • 1/23 эт.
    1 664 000 Р
    Агент
    +7 (985) Показать номер
    Посмотреть контакты
    Торговая площадь в Москва просп. Мира, 48С6 (186 м) - Фото 1
    Торговая площадь в Москва просп. Мира, 48С6 (186 м) - Фото 2
    Лот 154985.Предлагается в аренду торговое помещение, расположенное по адресу: г. Москва, пр-т Мира, 48с6.Пoмeщeние рaспoлoженo напpoтив выxoдa из мeтро Прocпeкт Миpa (менее 1 минуты пешком) , рядoм пешеходный пеpеxoд и оcтанoвки oбщecтвeнного тpанспорта....
    • 1/8 эт.
    1 500 000 Р
    Агент
    +7 (985) Показать номер
    Посмотреть контакты
    Торговая площадь в Москва Комсомольский просп., 27С5 (222 м) - Фото 1
    Торговая площадь в Москва Комсомольский просп., 27С5 (222 м) - Фото 2
    Лот 154310.Предлагается в аренду торговое помещение в 2- минутах от метро Фрунзенская. Расположение: г.Москва, ЦАО, Комсомольский проспект, 27с5. Первая линия домов по Комсомольскому проспекту. Интенсивный пешеходный и автомобильный трафик. Рядом расположена...
    • 1/8 эт.
    1 700 000 Р
    Агент
    +7 (985) Показать номер
    Посмотреть контакты
    Торговая площадь в Москва 2-й Нагатинский проезд, 2/3 (310 м) - Фото 1
    Торговая площадь в Москва 2-й Нагатинский проезд, 2/3 (310 м) - Фото 2
    1106125 . Предлагаем помещение свободного назначения формата street-retail в ЖК Второй Нагатинский , площадью 310.3 кв. м, расположенное на первом этаже 33-этажного жилого дома. Преимущества объекта:-ЖК состоит из 12 корпусов переменной этажности (от...
    • 1/33 эт.
    1 551 500 Р
    Агент
    +7 (938) Показать номер
    Посмотреть контакты

    Не нашли подходящего объявления?

    Оставьте заявку, и наши риэлторы подберут торговое помещение в районе Москвы

    (0)