550 000 Р 6 790 $ или 5 860

Информация об помещении

1
Этаж

Состояние и оснащение

Количество этажей
30
Развернуть
Агент
+7 (911) 147-09-38
Начать чат с агентом

Торговая площадь в Москва Ярцевская ул., 27к1 (37 м)

Жилой дом Ярцевская, 27к1 класса CПлощадь: 37 м2Арендная ставка: 178 378,. за м2 в год включая НДССтоимость площади в месяц: 550 000,. включая НДССистема налогообложения: НДСГотовность: требуется отделкаЭтаж: 1Планировка: открытаяНаличие с/у: 1шт, ВнутриСтатус: свободенВысота потолков, h: 3.60мОтдельный входХарактеристики зданияАдрес: Ярцевская улица, 27к1, МоскваОкруг: Западный административный округКласс: CПлощадь здания: 37 915,8 м2Полезная площадь: 37 915,8 м2Этажность: 30Налоговая: 31Год постройки: 2009Безопасность: ВидеонаблюдениеПарковка: Стихийная, Платная открытая, На прилегающей территорииStreet Retail помещение торгового или свободного назначения (ПСН) площадью 37 м2 на 1 этаже жилого здания. Планировка — свободная (одним залом), перекрытия — ж/б, высота потолков — 3,6-4,1 м. Отлично подойдёт под любой вид деятельности: торговое помещение, магазин, ресторан, кафе, аптека, салон красоты, офис продаж, кофейня и др.

Читать полностью
    Позвонить Написать
    550 000 Р6 790 $ или 5 860
    Агент
    +7 (911) 147-09-38
    Начать чат с агентом
    Похожие предложения
    Торговая площадь в Москва Ярцевская ул., 27к1 (37 м) - Фото 1
    Торговая площадь в Москва Ярцевская ул., 27к1 (37 м) - Фото 2
    Жилой дом Ярцевская, 27к1 класса CПлощадь: 37,2 м2Арендная ставка: 177 419,. за м2 в год включая НДССтоимость площади в месяц: 550 000,. включая НДССистема налогообложения: НДСГотовность: требуется отделкаЭтаж: 1Планировка: открытаяНаличие с/у: 1шт,...
    • 1/30 эт.
    550 000 Р
    Агент
    +7 (911) Показать номер
    Посмотреть контакты
    Торговая площадь (243.98 м) - Фото 1
    Торговая площадь (243.98 м) - Фото 2
    Сдаем помещение 243.98 кв.м на пятом этаже в БЦ класса В 5 минут пешком до метро м. Рижская.Арендная ставка на 243.98 м2. – за м2 в год с НДС и OPEX. Коммунальные платежи – оплачиваются по факту потребления. Срок аренды – от 11 месяцев. Помещение с...
    • 5/5 эт.
    548 955 Р
    Агент
    +7 (965) Показать номер
    Посмотреть контакты
    Торговая площадь в Москва Большая Садовая ул., вл6-8 (27 м) - Фото 1
    Торговая площадь в Москва Большая Садовая ул., вл6-8 (27 м) - Фото 2
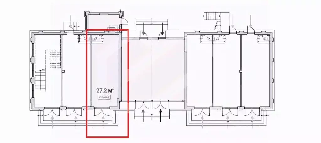
    1084980 . Предлагаем торговое помещение площадью 27,2 кв. м., расположенное на первом этаже административного здания. Преимущества объекта:-первая линия Садового кольца;-пешая доступность от станции метро Маяковская (5 минут пешком);-интенсивный пешеходный...
    • 1/2 эт.
    550 000 Р
    Агент
    +7 (916) Показать номер
    Посмотреть контакты
    Торговая площадь в Москва Славянский бул., 9К1 (156 м) - Фото 1
    Торговая площадь в Москва Славянский бул., 9К1 (156 м) - Фото 2
    Сдается торговое помещение В трёх минутах от метро СЛАВЯНСКИЙ БУЛЬВАР, первая линия, активные пешие и автомобильные трафики. Помещение идеально под торговлю или услуги.ПРЕДЛОЖЕНИЕ ОТ СОБСТВЕННИКА В помещении присутствуют действующие арендаторы: ВКУСВИЛЛ,...
    • 1/15 эт.
    550 000 Р
    Агент
    +7 (916) Показать номер
    Посмотреть контакты
    Торговая площадь в Москва Очаковское ш., 5к3 (213 м) - Фото 1
    Торговая площадь в Москва Очаковское ш., 5к3 (213 м) - Фото 2
    Арт.Сдается помещение в ЖК Матвеевский Парк, общей площадью 213 кв. м. Очень большой жилой массив. Жк заселён. очень многолюден. Собственник обсуждаем порядок уплаты МАП,который составляет, так же и арендные каникулы. Выделенная мощность 35 квт
    • 1/34 эт.
    550 000 Р
    Агент
    +7 (916) Показать номер
    Посмотреть контакты

    Не нашли подходящего объявления?

    Оставьте заявку, и наши риэлторы подберут торговое помещение в районе Москвы

    (0)