Россия, Москва, д. Саларьево, ул. 1-я Новая, 7
633 334 Р 7 810 $ или 6 780

Информация об помещении

1
Этаж

Состояние и оснащение

Количество этажей
1
Развернуть
Агент
+7 (986) 274-27-15
Начать чат с агентом

Склад в Москва д. Саларьево, ул. 1-я Новая, 7 (400 м)

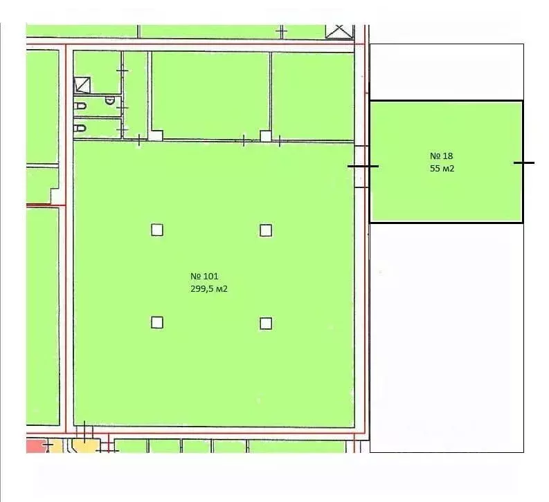
ЛотПредложение от Собственника Сдаётся складское помещение общей площадью 400 м2 в 2 км от МКАД по Киевскому шоссе, отапливаемое, высота потолка 12 м, установлены стеллажи, возможны услуги ответственного хранения, спринклерная система пожаротушения, пол - антипылевое покрытие, 2-е ворот докового типа под е/фуру , наличие погрузо-разгрузочной техники, своя парковка, площадка для маневрирования е/фуры, сан.узлы внутри помещения, вода, канализация, приточно-вытяжная система вентиляции, огороженная и охраняемая территория, круглосуточный режим работы, система видео наблюдения по периметру и внутри помещения, прямая аренда от собственника. В цену включено: НДС 5 . Обеспечительный платеж 1 месяц.Чтобы получить ПОДРОБНУЮ ПРЕЗЕНТАЦИЮ С ПЛАНИРОВКОЙ И ФОТОГРАФИЯМИ, звоните или отправьте свой email и номер телефона в сообщении на портале. Высылаем в течение 15 минут по запросу Конт. лицо: Дмитрий Евгеньевич, доб. 212, ЛОТ 1059363

Читать полностью
    Позвонить Написать
    633 334 Р7 810 $ или 6 780
    Агент
    +7 (986) 274-27-15
    Начать чат с агентом
    Похожие предложения
    Склад в Москва д. Саларьево, вл5 (500 м) - Фото 1
    Склад в Москва д. Саларьево, вл5 (500 м) - Фото 2
    Лот: 418759. БЕЗ КОМИССИИ Прямая аренда от собственника. Отапливаемое складское помещение. Второй этаж. Наличие персонального грузового лифта. Высота потолков склада — 6 м. Антипылевые полы. Выгрузка товара осуществляется на пандус.Современная система...
    • 2/2 эт.
    625 000 Р
    Агент
    +7 (910) Показать номер
    Посмотреть контакты
    Склад в Москва Илимская ул., 3АС2 (410 м) - Фото 1
    Склад в Москва Илимская ул., 3АС2 (410 м) - Фото 2
    Арт.. Вашему вниманию предлагается, в аренду теплый склад на 3-м этаже. Высота — 4,2 м. Полы идеально ровные. Есть удобный пандус для фур и два грузовых лифта (до 3,2 т), в которые свободно заезжает погрузчик.На территории: круглосуточная охрана, огороженная...
    • 3/3 эт.
    635 500 Р
    Агент
    +7 (986) Показать номер
    Посмотреть контакты
    Склад в Москва Остаповский проезд, 5С6 (355 м) - Фото 1
    Склад в Москва Остаповский проезд, 5С6 (355 м) - Фото 2
    Код объекта: 2089683.Сдается склад (B) в бизнес-центре Контакт (Строение 6) Бизнес-центр Контакт (Строение 6) класса B Площадь: 355 м2 Арендная ставка: 21240,. за м2 в год включая НДС Стоимость площади в месяц: 62835. включая НДС Система налогообложения:...
    • 1/9 эт.
    628 350 Р
    Агент
    +7 (915) Показать номер
    Посмотреть контакты
    Склад в Москва ул. 2-я Энтузиастов, 5к7 (465 м) - Фото 1
    Склад в Москва ул. 2-я Энтузиастов, 5к7 (465 м) - Фото 2
    ЛотПредложение от Собственника Сдается в аренду помещение 465 кв.м. в капитальном здании с отоплением под склад или производство. В непосредственной близости станция МЦД Андроновка, недалеко м. Авиамоторная. Охраняемая и огороженная территория складского...
    • 1/1 эт.
    639 375 Р
    Агент
    +7 (986) Показать номер
    Посмотреть контакты
    Склад в Московская область, Мытищи ул. Коминтерна, 13к2 (504 м) - Фото 1
    Склад в Московская область, Мытищи ул. Коминтерна, 13к2 (504 м) - Фото 2
    БЕЗ КОМИССИИ Предлагается складское помещение площадью 504 м2 на 1 этаже.Только склад.Параметры помещения:- отопление: есть- тип пола: бетон- ворота: 2 шт. в ноль, к воротам фура не подъезжает, только пятитонники- высота потолков: 6.0 м- электричество:...
    • 1/1 эт.
    630 000 Р
    Агент
    +7 (915) Показать номер
    Посмотреть контакты

    Не нашли подходящего объявления?

    Оставьте заявку, и наши риэлторы подберут склад в районе Москвы

    (0)