Россия, Москва, д. Десна, Ракитки СНТ, вл2
1 289 925 Р 16 960 $ или 14 530

Информация об помещении

1
Этаж

Состояние и оснащение

Количество этажей
1
Развернуть
Агент
+7 (985) 292-31-57
Начать чат с агентом

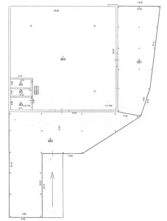
Склад в Москва д. Десна, Ракитки СНТ, вл2 (945 м)

БЕЗ КОМИССИИ ОТ СОБСТВЕННИКА Предлагается отдельно стоящие складское помещение 945м2. с хорошей транспортной доступностью,10км от МКАД по Калужскому шоссе.Закрытая охраняемая территория,круглосуточный доступ 24/7Сдается всё целиком под склад.Параметры:- автономное отопление- система пожарной сигнализации с выводом на пульт КПП.- двое автоматических ворот на нулевой отметке.- высота потолков 10.5м.- шаг колон 6х5м.- тип пола бетон.- мокрая точка,санузел.- мощность 25кВт.Коммунальные платежи оплачиваются отдельно.Ставка - за м2/год, в том числе НДС 5 .С АГЕНТАМИ НЕ РАБОТАЕМ ПРОСЬБА НЕ ЗВОНИТЬ

Читать полностью
    Позвонить Написать
    1 289 925 Р16 960 $ или 14 530
    Агент
    +7 (985) 292-31-57
    Начать чат с агентом
    Похожие предложения
    Склад в Москва д. Сосенки, 16с1 (1200 м) - Фото 1
    Склад в Москва д. Сосенки, 16с1 (1200 м) - Фото 2
    1103853 . Предлагается часть производственно-складского комплекса общей площадью 1 200 кв. м. в пос. Сосенское.Преимущества:20 минут пешком от ст. метро Ольховская .Выезд на Калужское шоссе.Помещение правильной формы.Прилегающая территория порядка 5...
    • 1/1 эт.
    1 350 000 Р
    Агент
    +7 (938) Показать номер
    Посмотреть контакты
    Склад в Москва Калужское шоссе, 43-й км, вл9 (1040 м) - Фото 1
    Склад в Москва Калужское шоссе, 43-й км, вл9 (1040 м) - Фото 2
    Арт.Предлагается в аренду складское помещение площадью 1040 м2. Расположенное по адресу :Москва Калужское шоссе 43 км. Площадка представляет собой производственно- складской комплекс, отвечающий всем современным требованиям. Высота потолков составляет...
    • 1/1 эт.
    1 380 000 Р
    Агент
    +7 (916) Показать номер
    Посмотреть контакты
    Роман. Лот:Неотапливаемое складское помещение 1155 м2. Деление от 600 м2. Капитальное строение. Первый этаж. Двое ворот 3,5 на 3,5 на нулевом уровне. Высота потолка 12 метров. Есть возможность провести отопление в склад. В складе есть отаплваемые бытовки,...
    • 1/1 эт.
    1 386 000 Р
    Агент
    +7 (985) Показать номер
    Посмотреть контакты
    Склад (1000 м) - Фото 1
    Склад (1000 м) - Фото 2
    Предлагаем к аренде хорошо отапливаемый склад площадью 1000 м.кв. с отличной доступностью, в черте города. 1 этаж, заведено 2.3 МВт электроэнергии, полы антипыль, высокие потолки, ворота для заезда фур. Также можно арендовать открытую площадку 1700 м.кв....
    • 1/2 эт.
    1 350 000 Р
    Агент
    +7 (909) Показать номер
    Посмотреть контакты
    Склад в Москва МКАД, 47-й км, 3с3 (1525 м) - Фото 1
    Склад в Москва МКАД, 47-й км, 3с3 (1525 м) - Фото 2
    ПЛАТИМ ВОЗНАГРАЖДЕНИЕ АГЕНТАМ. Поможем с планом рассадки, ремонтом, мебелью. Офисно-складской комплекс, расположен на внешнем радиусе МКАД 47й км. Удобная транспортная доступность.Налоговая: 51. Лифты: Нет. Вентиляция: Приточно-вытяжная. Кондиционирование:...
    • 1/2 эт.
    1 270 833 Р
    Агент
    +7 (933) Показать номер
    Посмотреть контакты

    Не нашли подходящего объявления?

    Оставьте заявку, и наши риэлторы подберут склад в районе Москвы

    (0)