Россия, Москва, Краснодарский проезд, 2
4 680 000 Р 60 130 $ или 51 690

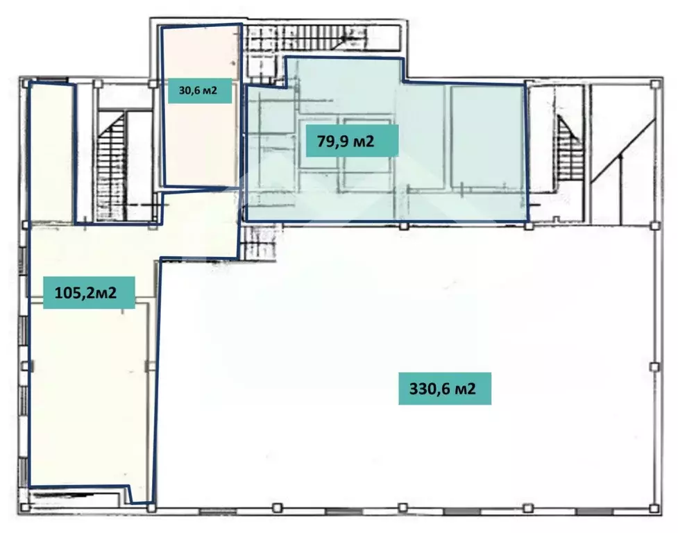
Информация об помещении

4
Этаж

Состояние и оснащение

Количество этажей
6
Развернуть
Агент
+7 (989) 407-39-26
Начать чат с агентом

Склад в Москва Краснодарский проезд, 2 (3600 м)

Предложение в аренду 63084.Аренда складского помещения. Теплое, с водой и канализацией. Можно делить на части. Помещение находится на трёх этажах по 1200 метров на 3х этажах. . Зона погрузки/разгрузки есть. Подъезд для грузовой техники и грузовой лифт.Этажи с 4 по 6..Без комиссии.

Читать полностью
    Позвонить Написать
    4 680 000 Р60 130 $ или 51 690
    Агент
    +7 (989) 407-39-26
    Начать чат с агентом
    Похожие предложения
    Склад в Москва ул. Поляны, 50с1 (4800 м) - Фото 1
    Склад в Москва ул. Поляны, 50с1 (4800 м) - Фото 2
    Уникальный номер помещения.Складской комплекс класса А в МосквеУдобное расположение: 5 км. до МКАД.Добавьте объявление в избранное, чтобы не упустить выгодное предложение Универсальный общетоварный продовольственный склад, площадь позволяет разместить...
    • 3/7 эт.
    4 723 200 Р
    Агент
    +7 (980) Показать номер
    Посмотреть контакты
    Склад в Москва Мытищинский проезд, 6 (2709 м) - Фото 1
    Склад в Москва Мытищинский проезд, 6 (2709 м) - Фото 2
    1101667 . Предлагается складское здание общей площадью 2 708,5 кв. м. в Москве. 4 этажа + цоколь.Преимущества:1,2 км до ул. Проспект мира; 2,2 км до м. Рижская, Калужско-Рижской линии; 2,2 км до м. Рижская, Большой Кольцевой линии; 2,7 км до Третьего...
    • 1/4 эт.
    4 600 000 Р
    Агент
    +7 (938) Показать номер
    Посмотреть контакты
    Склад в Москва Кавказский бул., 57 (2400 м) - Фото 1
    Склад в Москва Кавказский бул., 57 (2400 м) - Фото 2
    Уникальный номер помещения.Современный мультитемпературный складской комплекс класса ВУдобное расположение: 5 км. до МКАД.Добавьте объявление в избранное, чтобы не упустить выгодное предложение Разноуровневые здания этажностью 1-6 этажей с высотой потолков...
    • -1/1 эт.
    4 700 000 Р
    Агент
    +7 (980) Показать номер
    Посмотреть контакты
    Склад в Москва 6-я Радиальная ул., 17 (3117 м) - Фото 1
    Склад в Москва 6-я Радиальная ул., 17 (3117 м) - Фото 2
    Уникальный номер помещения.Производственно-складской комплекс класса В в МосквеУдобное расположение: 5 км. до МКАД.Добавьте объявление в избранное, чтобы не упустить выгодное предложение Высота потолка 6 мОтоплениеВсе необходимые коммуникацииОхрана, видеонаблюдениеКруглосуто...
    • 1/2 эт.
    4 675 500 Р
    Агент
    +7 (980) Показать номер
    Посмотреть контакты
    Склад в Москва ул. 1-я Ямского Поля, 17 (3022 м) - Фото 1
    Склад в Москва ул. 1-я Ямского Поля, 17 (3022 м) - Фото 2
    Лот: 419060. БЕЗ КОМИССИИ Отапливаемое помещение под склад или небольшое производство. Восьмой этаж. Наличие грузового подъемника. Высота потолков — 4м. Электроэнергия — по запросу (есть большой запас). Есть вода и водоотведение. Бесплатные въезды для...
    • 8/8 эт.
    4 784 675 Р
    Агент
    +7 (932) Показать номер
    Посмотреть контакты

    Не нашли подходящего объявления?

    Оставьте заявку, и наши риэлторы подберут склад в районе Москвы

    (0)