4 600 000 Р 59 100 $ или 50 810

Информация об помещении

1
Этаж

Состояние и оснащение

Количество этажей
4
Развернуть
Агент
+7 (938) 656-74-88
Начать чат с агентом

Склад в Москва Мытищинский проезд, 6 (2709 м)

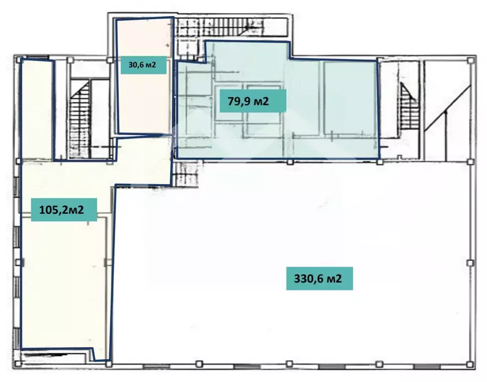
1101667 . Предлагается складское здание общей площадью 2 708,5 кв. м. в Москве. 4 этажа + цоколь.Преимущества:1,2 км до ул. Проспект мира; 2,2 км до м. Рижская, Калужско-Рижской линии; 2,2 км до м. Рижская, Большой Кольцевой линии; 2,7 км до Третьего Транспортного кольца; 6,2 км до Садового кольца; 14 км до МКАД.Хороший подъезд.Внутренняя территория для стоянки автомобилей разной тоннажности.Рядом строится крупнейший транспортно-пересадочный узел Рижский вокзал.Приточно-вытяжная вентиляция.Система дымоудаления.Сплинкерная система пожаротушения.Промышленные полы, смонтированы стеллажи.Автоматические ворота, пандус для разгрузки малотоннажного транспорта.Подземный паркинг.Заключены прямые договоры с Мосэнергосбытом, Мосводоканалом.Собственная современная газовая котельная.Выполнен косметический ремонт в 2024 году.Технические характеристики:Общая площадь: 2 708,5 кв. м.Площадь цокольного этаж: 599,5 кв. м.Площадь 1 этажа: 588,05 кв. м.Площадь 2 этажа: 603,59 кв. м.Площадь 3 этажа: 604,12 кв. м.Площадь крыши: 266,4 кв. м.Высота потолков: 3,5 м.Нагрузка на пол: 500 кг/м2.Электрическая мощность: 150 кВт по второй категории.Грузовой подъёмник на 1,5 тонны, есть возможность установки второго подъемника.2 ворот для разгрузки среднетоннажного транспорта.Земельный участок: в долгосрочной аренде у города Москвы.ВРИ земельного участка: земли населенных пунктов, для эксплуатации производственных и административных зданий промышленности.Варианты использования помещений здания:Формат городских складов, мастерских и индустриальных объектов (Light industrial).Фабрика-кухня (dark kitchen).Интернет-торговля, пункт выдачи интернет-заказов (dark store).Пищевое производство и иное производство полного цикла.Торговля и хранение строительными и пр. материалами.

Читать полностью
    Позвонить Написать
    4 600 000 Р59 100 $ или 50 810
    Агент
    +7 (938) 656-74-88
    Начать чат с агентом
    Похожие предложения
    Склад в Москва Промышленная ул., 11АС47 (5000 м) - Фото 1
    Склад в Москва Промышленная ул., 11АС47 (5000 м) - Фото 2
    Уникальный номер помещения.Склад ответственного хранения класса А.Удобное расположение: 7 км. до МКАД.Добавьте объявление в избранное, чтобы не упустить выгодное предложение Отопление.Все коммуникации.Огороженная территория.Удобный заезд.Все условия...
    • 1/1 эт.
    4 500 000 Р
    Агент
    +7 (980) Показать номер
    Посмотреть контакты
    Склад в Москва Кавказский бул., 57 (2400 м) - Фото 1
    Склад в Москва Кавказский бул., 57 (2400 м) - Фото 2
    Уникальный номер помещения.Современный мультитемпературный складской комплекс класса ВУдобное расположение: 5 км. до МКАД.Добавьте объявление в избранное, чтобы не упустить выгодное предложение Разноуровневые здания этажностью 1-6 этажей с высотой потолков...
    • -1/1 эт.
    4 700 000 Р
    Агент
    +7 (980) Показать номер
    Посмотреть контакты
    Склад в Москва 6-я Радиальная ул., 17 (3117 м) - Фото 1
    Склад в Москва 6-я Радиальная ул., 17 (3117 м) - Фото 2
    Уникальный номер помещения.Производственно-складской комплекс класса В в МосквеУдобное расположение: 5 км. до МКАД.Добавьте объявление в избранное, чтобы не упустить выгодное предложение Высота потолка 6 мОтоплениеВсе необходимые коммуникацииОхрана, видеонаблюдениеКруглосуто...
    • 1/2 эт.
    4 675 500 Р
    Агент
    +7 (980) Показать номер
    Посмотреть контакты
    Склад в Москва Дорожная ул., 21С1 (3000 м) - Фото 1
    Склад в Москва Дорожная ул., 21С1 (3000 м) - Фото 2
    Уникальный номер помещения.Склад ответственного хранения класса ВУдобное расположение: 25 км. до МКАД.Добавьте объявление в избранное, чтобы не упустить выгодное предложение Хранение напольное и стеллажноеПотолок 9 м.Пол бетон-антипыльОтоплениеВсе необходимые...
    • 1/2 эт.
    4 545 000 Р
    Агент
    +7 (980) Показать номер
    Посмотреть контакты
    Склад в Курская область, Курск Курского завода тракторных запчастей ... - Фото 1
    Склад в Курская область, Курск Курского завода тракторных запчастей ... - Фото 2
    Предлагается в аренду отапливаемое производственное помещение, площадью 9000 м. по адресу: Курск, Сеймский округ, Моковская , д 3/2Локация:Промышленная зона в черте города;Удобные подъездные пути, рядом транспортная развязка Сумской мост ;Достаточно...
    • 1/1 эт.
    4 500 000 Р
    Агент
    +7 (919) Показать номер
    Посмотреть контакты

    Не нашли подходящего объявления?

    Оставьте заявку, и наши риэлторы подберут склад в районе Москвы

    (0)