Россия, Москва, 1-й Грайвороновский проезд, 20С26
2 449 983 Р 31 320 $ или 26 600

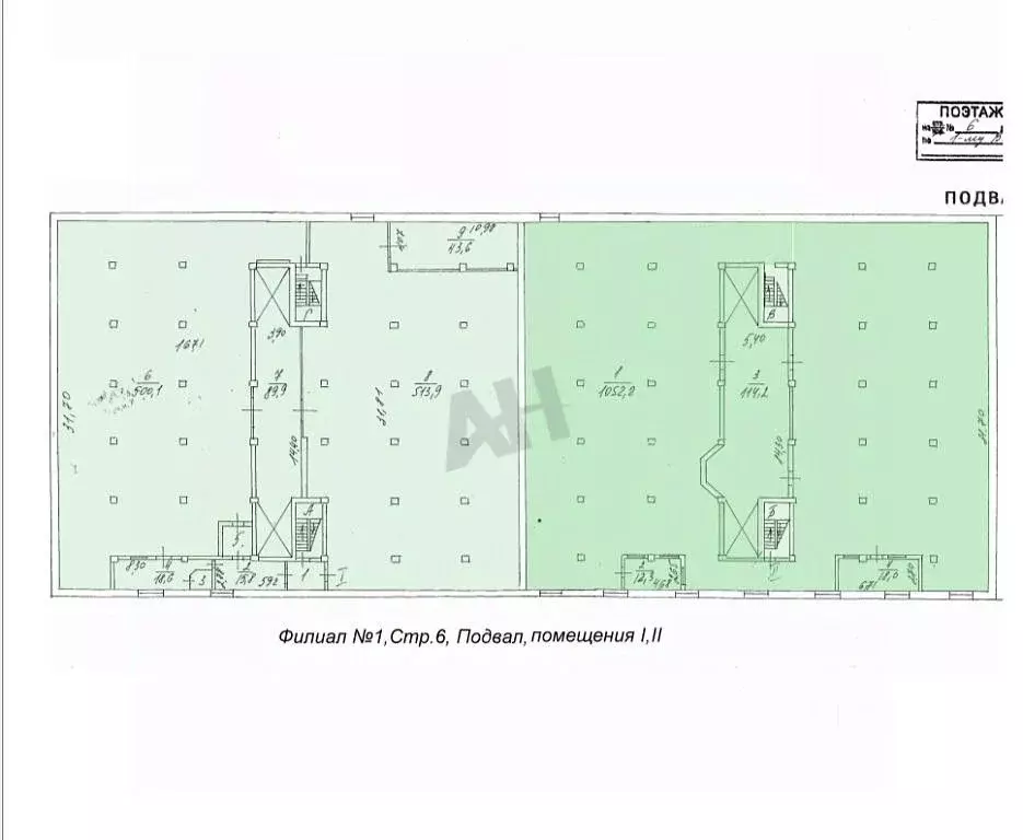
Информация об помещении

1
Этаж

Состояние и оснащение

Количество этажей
2
Развернуть
Агент
+7 (923) 070-33-56
Начать чат с агентом

Склад в Москва 1-й Грайвороновский проезд, 20С26 (1516 м)

БЕЗ КОМИССИИ Офисное здание. Сдаётся под тёплый склад или производство помещение свободной планировки с санузлом на первом этаже площадью 1516 кв.м с отдельным входом с улицы. Стандартная отделка. Вентиляция. Есть охрана.УСН. 1-й Грайвороновский проезд, 20с26, 17 минут пешком от метро Текстильщики. ЛОТ 242895

Читать полностью
    Позвонить Написать
    2 449 983 Р31 320 $ или 26 600
    Агент
    +7 (923) 070-33-56
    Начать чат с агентом
    Похожие предложения
    Склад в Москва 1-й Вязовский проезд, 1С4 (2396 м) - Фото 1
    Склад в Москва 1-й Вязовский проезд, 1С4 (2396 м) - Фото 2
    ЛотПредложение от Собственника Предлагаем в аренду теплые складские помещения на цокольном этаже. Удобное расположение в 6 мин пешком от м.Стахановская и м.Окская. Транспортная доступность с ТТК, МСД, Рязанский пр-т, Волгоградский пр-т.Располагается...
    • -1/1 эт.
    2 396 000 Р
    Агент
    +7 (986) Показать номер
    Посмотреть контакты
    Склад в Москва 2-й Амбулаторный проезд, 12АС3 (1375 м) - Фото 1
    Склад в Москва 2-й Амбулаторный проезд, 12АС3 (1375 м) - Фото 2
    ЛотПредложение от Собственника Предлагается в аренду отапливаемое складское помещение площадью 1375 м2. Складской комплекс. Помещение состоит из основной площади склада 1114 кв.м на 1 этаже и примыкающей к нему площади свободного назначение 261 кв.м...
    • 1/2 эт.
    2 475 000 Р
    Агент
    +7 (986) Показать номер
    Посмотреть контакты
    Склад в Московская область, Солнечногорск городской округ, д. Есипово ... - Фото 1
    Склад в Московская область, Солнечногорск городской округ, д. Есипово ... - Фото 2
    ID: w13556В производственно-складском комплексе А класса в аренду предлагаются изолированные помещения с индивидуальными входными группами. Местоположение: МО, г. Солнечногорск, д. Есипово, 32 км от МКАД по Ленинградскому шоссе.Рабочая высота - 8 м....
    • 1/1 эт.
    2 310 510 Р
    Агент
    +7 (915) Показать номер
    Посмотреть контакты
    Склад в Московская область, Солнечногорск городской округ, ... - Фото 1
    Склад в Московская область, Солнечногорск городской округ, ... - Фото 2
    Отапливаемый склад в аренду от собственника без комиссии. Класс B+. Объявление актуально. Охраняемая территория. 32 км от МКАД. Никаких скрытых платежей. Открыты к диалогу по условиям аренды. ID объекта 2884. Добавьте в избранное, чтобы не потерять ...
    • 1/1 эт.
    2 310 510 Р
    Агент
    +7 (982) Показать номер
    Посмотреть контакты
    Склад в Москва д. Большое Покровское,  (1492 м) - Фото 1
    Склад в Москва д. Большое Покровское,  (1492 м) - Фото 2
    Показ в удобное время. С АГЕНТАМИ РАБОТАЕМ И ПЛАТИМ. Современный складской комплекс находится на юго-западе Новой Москвы, в 16 км от МКАД по Киевскому шоссе. Объект работает круглосуточно. Большая парковка на территории, в том числе для больше-грузового...
    • 1/1 эт.
    2 486 667 Р
    Агент
    +7 (933) Показать номер
    Посмотреть контакты

    Не нашли подходящего объявления?

    Оставьте заявку, и наши риэлторы подберут склад в районе Москвы

    (0)