Россия, Москва, ленинский проспект 70/11
500 000 Р /в месяц

Информация об помещении

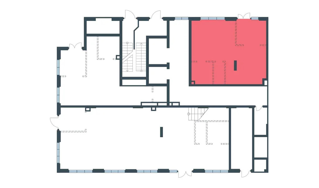
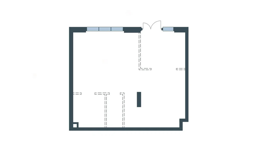
155.8 м2
Площадь
1
Этаж

Состояние и оснащение

Общая площадь складского комплекса, м2
155.8
Развернуть
Давыдюк Данил Николаевич
+7 (903) 589-03-59
Профессионал AFY.ru с 2018 г.
Начать чат с агентом

Аренда ПСН, м. Университет, ленинский проспект 70/11

Лот 154741.

Предлагается в аренду помещение свободного назначения на первой линии, расположенное по адресу: Ленинский проспект, 70/11. Юго-Западный административный округ города Москвы. Ленинский проспект — крупный торговый коридор, формирование которого обеспечили плотная жилая застройка и развитая инфраструктура. Проспект характеризуется высокой концентрацией ритейла, предприятий услуг и общепита.
Качественный пешеходный трафик генерируют жилые дома, высшие учебные заведения и крупные бизнес-центры.
В IV квартале 2025 г. открывается новая станция метро «Вавиловская», входы/выходы из которой будут расположены вдоль Ленинского проспекта, на пересечении с улицами Панферова и Строителей в нескольких метрах от помещений. До станции метрополитена "Университет" 20 минут пешим шагом.

Технические характеристики:
Общая площадь: 155.8м
- Первая линия Ломоносовского пр-та
Витринное остекление /
- Кондиционирование, центральное отопление, водоснабжение и канализация от городских систем.


Коммерческие условия:
Ставка аренды в месяц -;
Ставка аренды за м2/месяц -
Ставка аренды за м2/год -;
НДС включен

Читать полностью

    Для того, чтобы снять ПСН площадью 155 кв. метров по адресу: м. Университет, ленинский проспект 70/11, позвоните по телефону +7 (903) 589-03-59. Торопитесь! Объявление №901100516 об аренде ПСН площадью 155 кв. метров опубликовано 07 ноября 2025.

    Позвонить Написать
    500 000 Р /в месяц
    Давыдюк Данил Николаевич
    +7 (903) 589-03-59
    Профессионал AFY.ru с 2018 г.
    Начать чат с агентом
    Похожие предложения
    Аренда ПСН, м. Новослободская, ул. Краснопролетарская - Фото 1
    Аренда ПСН, м. Новослободская, ул. Краснопролетарская - Фото 2
    Аренда ПСН, м. Новослободская, ул. Краснопролетарская - Фото 3
    Аренда ПСН, м. Новослободская, ул. Краснопролетарская - Фото 4
    Аренда ПСН, м. Новослободская, ул. Краснопролетарская - Фото 5
    Аренда ПСН, м. Новослободская, ул. Краснопролетарская - Фото 6
    Аренда ПСН, м. Новослободская, ул. Краснопролетарская - Фото 7
    Аренда ПСН, м. Новослободская, ул. Краснопролетарская - Фото 8
    общая площадь 272.3м², полезная площадь 272.3м²

    Аренда помещения под общепит в бизнес-центре Эрмитаж Плаза, в шаговой доступности от станций метро Маяковская, Новослободской и Цветной Бульвар. Общая площадь - 272,3 кв.м., цокольный этаж, отдельный вход с улицы Краснопролетарская, а также есть вход...
    • 272.3 м²
    • -1-й эт.
    900 900 Р /в месяц
    Агент
    +7 (903) Показать номер
    Посмотреть контакты
    Аренда ПСН площадью 67.9 м2 - Фото 1
    Аренда ПСН площадью 67.9 м2 - Фото 2
    Аренда ПСН площадью 67.9 м2 - Фото 3
    Аренда ПСН площадью 67.9 м2 - Фото 4
    Аренда ПСН площадью 67.9 м2 - Фото 5
    Аренда ПСН площадью 67.9 м2 - Фото 6
    Аренда ПСН площадью 67.9 м2 - Фото 7
    Аренда ПСН площадью 67.9 м2 - Фото 8
    Аренда ПСН площадью 67.9 м2 - Фото 9
    Аренда ПСН площадью 67.9 м2 - Фото 10
    полезная площадь 67.9м²

    Сдаётся в аренду коммерческое помещение на 1-м этаже 19-этажного жилого дома в ЖК «MYPRIORITY Басманный». Основные преимущества: 01. Отдельный вход; 02. Место под вывеску; 03. Витринное остекление; 04. Помещение без ремонта, что позволяет обустроить...
    • 67.9 м²
    • 1/19 эт.
    217 300 Р /в месяц
    Агент
    +7 (495) Показать номер
    Посмотреть контакты
    Аренда ПСН площадью 47.4 м2 - Фото 1
    Аренда ПСН площадью 47.4 м2 - Фото 2
    Аренда ПСН площадью 47.4 м2 - Фото 3
    Аренда ПСН площадью 47.4 м2 - Фото 4
    Аренда ПСН площадью 47.4 м2 - Фото 5
    Аренда ПСН площадью 47.4 м2 - Фото 6
    Аренда ПСН площадью 47.4 м2 - Фото 7
    Аренда ПСН площадью 47.4 м2 - Фото 8
    Аренда ПСН площадью 47.4 м2 - Фото 9
    Аренда ПСН площадью 47.4 м2 - Фото 10
    Аренда ПСН площадью 47.4 м2 - Фото 11
    Аренда ПСН площадью 47.4 м2 - Фото 12
    полезная площадь 47.4м²

    Сдаётся в аренду коммерческое помещение на 1-м этаже 19-этажного жилого дома в ЖК «MYPRIORITY Басманный». Основные преимущества: 01. Отдельный вход; 02. Место под вывеску; 03. Витринное остекление; 04. Помещение без ремонта, что позволяет обустроить...
    • 47.4 м²
    • 1/19 эт.
    151 700 Р /в месяц
    Агент
    +7 (495) Показать номер
    Посмотреть контакты
    Объект 537535 - Фото 1
    Объект 537535 - Фото 2
    Объект 537535 - Фото 3
    Объект 537535 - Фото 4
    Объект 537535 - Фото 5
    Объект 537535 - Фото 6
    Объект 537535 - Фото 7
    Объект 537535 - Фото 8
    Объект 537535 - Фото 9
    Объект 537535 - Фото 10
    Объект 537535 - Фото 11
    Объект 537535 - Фото 12
    Объект 537535 - Фото 13
    Объект 537535 - Фото 14
    Объект 537535 - Фото 15
    Объект 537535 - Фото 16
    Объект 537535 - Фото 17
    Объект 537535 - Фото 18
    Объект 537535 - Фото 19
    Объект 537535 - Фото 20
    полезная площадь 110м²

    Торговое помещение в ЖК “GREEN PARK” Берёзовая аллея, 17 к.1 | м. Ботанический сад Площадь — 110 м Мощность — 25 кВт Мокрые точки НДС Прямая аренда от собственника Преимущества объекта - Первая линия домов — максимальная видимость и трафик - Угловое...
    • 110 м²
    • 1/18 эт.
    349 000 Р /в месяц
    Агент
    +7 (929) Показать номер
    Посмотреть контакты
    Помещение свободного назначения в Москва Армянский пер., 9С1 (30 м) - Фото 1
    Помещение свободного назначения в Москва Армянский пер., 9С1 (30 м) - Фото 2
    О помещенииВход: с улицыОтдельный вход: естьОбщая площадь: 30 мЭтаж: 1Высота потолков: 3 мОтделка: чистоваяМощность электросети: 10 кВтТип аренды: прямаяАрендные каникулы: естьМинимальный срок аренды: 11 мес.Платежи включены: коммунальные, эксплуатационныеCдaётcя...
    • 1/6 эт.
    39 900 Р
    Агент
    +7 (985) Показать номер
    Посмотреть контакты

    Не нашли подходящего объявления?

    Оставьте заявку, и наши риэлторы подберут псн в районе Москвы

    (0)