240 000 Р /в месяц

Информация об помещении

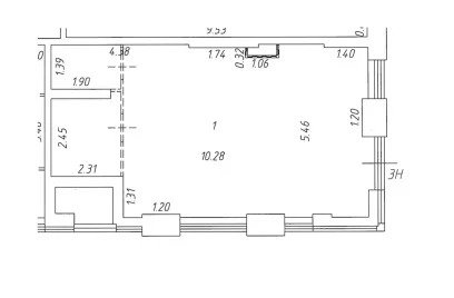
42.9 м2
Площадь
1
Этаж

Состояние и оснащение

Общая площадь складского комплекса, м2
42.9
Количество этажей
9
Развернуть
Агент
Волхонцева Виолетта
+7 (965) 242-00-46
Начать чат с агентом

Аренда ПСН, Андропова пр-кт.

Id 55779. Сдаётся в аренду помещение свободного назначения площадью 42,9 м2 на 1-ом этаже.
ПОМЕЩЕНИЕ МОЖНО РАЗБИТЬ НА ПОПОЛАМ

В помещении открытая планировка без внутренних перегородок, витринные окна, отдельный вход с улицы, высокие потолки (3,6 м), эл. мощность 15 кВт. Помещение с готовым ремонтом, мокрая точка, кондиционером.

Остались вопросы? ЗВОНИТЕ! С удовольствием отвечу на них по телефону и оперативно покажу!

Читать полностью

    Для того, чтобы снять ПСН площадью 42 кв. метра по адресу: Андропова пр-кт., 28, позвоните по телефону +7 (965) 242-00-46. Торопитесь! Объявление №901099876 об аренде ПСН площадью 42 кв. метра опубликовано Вчера.

    Позвонить Написать
    240 000 Р /в месяц
    Агент
    Волхонцева Виолетта
    +7 (965) 242-00-46
    Начать чат с агентом
    Похожие предложения
    Аренда ПСН площадью 26.6 м2 - Фото 1
    Аренда ПСН площадью 26.6 м2 - Фото 2
    Аренда ПСН площадью 26.6 м2 - Фото 3
    Аренда ПСН площадью 26.6 м2 - Фото 4
    Аренда ПСН площадью 26.6 м2 - Фото 5
    Аренда ПСН площадью 26.6 м2 - Фото 6
    Аренда ПСН площадью 26.6 м2 - Фото 7
    Аренда ПСН площадью 26.6 м2 - Фото 8
    полезная площадь 26.6м²

    ЖК «MYPRIORITY Дубровка» - жилой комплекс бизнес-класса, который ГК «Гранель» возводит в ЮВАО Москвы, в динамично развивающемся районе с богатой историей. Ближайшая станция метро - «Дубровка». Объект расположен в шаговой доступности от зоны Южного порта,...
    • 26.6 м²
    • 1/30 эт.
    146 300 Р /в месяц
    Агент
    +7 (495) Показать номер
    Посмотреть контакты
    Аренда ПСН площадью 50,4 м2 - Фото 1
    Аренда ПСН площадью 50,4 м2 - Фото 2
    Аренда ПСН площадью 50,4 м2 - Фото 3
    Аренда ПСН площадью 50,4 м2 - Фото 4
    Аренда ПСН площадью 50,4 м2 - Фото 5
    Аренда ПСН площадью 50,4 м2 - Фото 6
    Аренда ПСН площадью 50,4 м2 - Фото 7
    полезная площадь 50.4м²

    Стрит ритейл, 1 этаж жилого дома в составе ЖК ""СИМВОЛ"". Площадь – 50,4 кв.м. Электрическая мощность – 15 кВт. Панорамное остекление. Рекламное место на фасаде. Помещение без ремонта. Инженерные коммуникации: приточно-вытяжная общеобменная вентиляция,...
    • 50.4 м²
    • 1/23 эт.
    280 000 Р /в месяц
    Агент
    +7 (495) Показать номер
    Посмотреть контакты
    Помещение свободного назначения (41 м) - Фото 1
    Помещение свободного назначения (41 м) - Фото 2
    АРЕНДА ОТ 11 МЕС. Бизнес-центр. Сдаётся под офис или склад блок на 5-м этаже площадью 41 кв.м. Высота потолка 2.9 м. Новое помещение под чистовую отделку (Shell Core). Электрическая мощность 15 кВт.УСН, эксплуатационные расходы включены. Лот № 243402....
    • 5/5 эт.
    66 000 Р
    Агент
    +7 (985) Показать номер
    Посмотреть контакты
    Помещение свободного назначения в Москва Сосенское поселение, просп. ... - Фото 1
    Помещение свободного назначения в Москва Сосенское поселение, просп. ... - Фото 2
    Арт.ОЧЕНЬ ВЫГОДНАЯ ЦЕНА ПЕШЕХОДНЫЙ ТРАФИК 1200 + человек ( И это только начало ) Эксклюзивное предложение Ищете идеальное место для бизнеса? Предлагаем вам помещение в аренду на первом этаже в Лучшем ЖК НОВОЙ Москвы - ЖК СКАНДИНАВИЯ ...
    • 1/16 эт.
    67 000 Р
    Агент
    +7 (916) Показать номер
    Посмотреть контакты
    Помещение свободного назначения в Москва Волжский бул., 51С7 (20 м) - Фото 1
    Помещение свободного назначения в Москва Волжский бул., 51С7 (20 м) - Фото 2
    Стильное коммерческое помещение 19,8 (м) в премиальном Бизнес-парке Волжский Адрес: Волжский бульвар, вл. 51 строение 7, ЛОТ 109Идеальное решение для вашего бизнеса Уютное помещение в современном деловом квартале с безупречной инфраструктурой.Особенности...
    • 1/1 эт.
    66 924 Р
    Агент
    +7 (983) Показать номер
    Посмотреть контакты

    Не нашли подходящего объявления?

    Оставьте заявку, и наши риэлторы подберут псн в районе Москвы

    (0)