Россия, Москва, г. Мытищи, ул. Сили
217 600 Р /в месяц 2 690 $ или 2 300

Информация об помещении

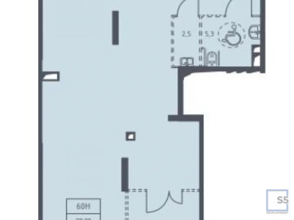
98.9 м2
Площадь
1
Этаж

Состояние и оснащение

Общая площадь складского комплекса, м2
98.9
Развернуть
S5Development
S5Development
+7 (903) 589-03-59

Аренда ПСН, м. ВДНХ, г. Мытищи

Лот 153372.

В аренду предлагается помещение свободного назначения(ПСН) 98,9 м2, ЖК «Мытищи Парк» по адресу: МО, городской округ Мытищи, г. Мытищи, ул. Силикатная, корпус 3. ЖК «Мытищи Парк» — это быстро развивающийся жилой комплекс, расположенный в 10 км. от МКАД, в 5 мин. на автомобиле до ж/д станции «Строитель» и в 20 мин. на автомобиле до станции м. Медведково. Первая линия, торговый коридор. Развитая инфраструктура.
Торговое окружение:
Рядом находится кафе "Ночь", Баня на Силикатной, столовая "Арена", пекарня "Гурман", Центр единоборств, рекламное агенство "Трансмедиа", зоомагазин "Идеал".

Технические характеристики: Помещение площадью 98,9 кв. м., 1 этаж. Отдельный вход. Свободная планировка. Большие витринные окна. Высота потолков - 4 м. Электрическая мощность: 25 кВт, стояк холодной и горячей воды с отводами, стояк канализации с установкой фасонных частей с поэтажными заглушками, радиаторы, противопожарная сигнализация. Центральные коммуникации. Рядом с помещением парковка.

Коммерческие условия:
Ставка аренды: в месяц.
Ставка за 1 кв. м. в месяц:.
Ставка за 1 кв. м. в год:.
Форма договора: Прямой долгосрочный договор.
Предоставляется возможность арендных каникул на время ремонта.
Обеспечительный платеж в размере 1 месяца аренды.
Коммунальные платежи оплачиваются отдельно, по счетам.

Читать полностью

    Для того, чтобы снять ПСН площадью 98 кв. метров по адресу: м. ВДНХ, г. Мытищи, ул. Сили, напишите автору объявления. Торопитесь! Объявление №901099578 об аренде ПСН площадью 98 кв. метров опубликовано Сегодня.

    Позвонить Написать
    217 600 Р /в месяц2 690 $ или 2 300
    S5Development
    S5Development
    +7 (903) 589-03-59
    Похожие предложения
    Аренда ПСН площадью 199 м2 - Фото 1
    Аренда ПСН площадью 199 м2 - Фото 2
    Аренда ПСН площадью 199 м2 - Фото 3
    Аренда ПСН площадью 199 м2 - Фото 4
    полезная площадь 199м²

    Помещение свободного назначения площадью 199 м2, в прямую аренду на любой срок с предоплатой за 1 месяц. Помещение располагается в 1-этажном здании м. Пятницкое шоссе, район города - Митино. Помещение находится на 1 этаже здания. Возможное назначение...
    • 199 м²
    • 1/1 эт.
    446 000 Р /в месяц
    Агент
    +7 (938) Показать номер
    Посмотреть контакты
    Аренда ПСН площадью 647.8 м2 - Фото 1
    Аренда ПСН площадью 647.8 м2 - Фото 2
    Аренда ПСН площадью 647.8 м2 - Фото 3
    Аренда ПСН площадью 647.8 м2 - Фото 4
    Аренда ПСН площадью 647.8 м2 - Фото 5
    Аренда ПСН площадью 647.8 м2 - Фото 6
    Аренда ПСН площадью 647.8 м2 - Фото 7
    Аренда ПСН площадью 647.8 м2 - Фото 8
    Аренда ПСН площадью 647.8 м2 - Фото 9
    Аренда ПСН площадью 647.8 м2 - Фото 10
    Аренда ПСН площадью 647.8 м2 - Фото 11
    Аренда ПСН площадью 647.8 м2 - Фото 12
    Аренда ПСН площадью 647.8 м2 - Фото 13
    полезная площадь 647.8м²

    Сдаётся в аренду коммерческое помещение площадью 647,8 кв. м на 1-м этаже 23-этажного жилого дома в ЖК HighWay. Основные преимущества: - Отдельный вход; - Место под вывеску; - Витринное остекление; - Помещение без ремонта, что позволяет обустроить...
    • 647.8 м²
    • 1/23 эт.
    1 425 200 Р /в месяц
    Агент
    +7 (495) Показать номер
    Посмотреть контакты
    Аренда ПСН площадью 294.9 м2 - Фото 1
    Аренда ПСН площадью 294.9 м2 - Фото 2
    Аренда ПСН площадью 294.9 м2 - Фото 3
    Аренда ПСН площадью 294.9 м2 - Фото 4
    Аренда ПСН площадью 294.9 м2 - Фото 5
    Аренда ПСН площадью 294.9 м2 - Фото 6
    Аренда ПСН площадью 294.9 м2 - Фото 7
    Аренда ПСН площадью 294.9 м2 - Фото 8
    Аренда ПСН площадью 294.9 м2 - Фото 9
    Аренда ПСН площадью 294.9 м2 - Фото 10
    Аренда ПСН площадью 294.9 м2 - Фото 11
    Аренда ПСН площадью 294.9 м2 - Фото 12
    Аренда ПСН площадью 294.9 м2 - Фото 13
    полезная площадь 294.9м²

    Сдаётся в аренду коммерческое помещение площадью 294,9 м2 на 1-м этаже 33-этажного жилого дома в ЖК Profit. Основные преимущества: отдельный вход; место под вывеску; витринное остекление; круглосуточный доступ; наземная парковка; помещение без...
    • 294.9 м²
    • 1/33 эт.
    648 800 Р /в месяц
    Агент
    +7 (495) Показать номер
    Посмотреть контакты
    Аренда ПСН, м. Строгино, Строгинский б-р. - Фото 1
    Аренда ПСН, м. Строгино, Строгинский б-р. - Фото 2
    Аренда ПСН, м. Строгино, Строгинский б-р. - Фото 3
    Аренда ПСН, м. Строгино, Строгинский б-р. - Фото 4
    Аренда ПСН, м. Строгино, Строгинский б-р. - Фото 5
    Аренда ПСН, м. Строгино, Строгинский б-р. - Фото 6
    Аренда ПСН, м. Строгино, Строгинский б-р. - Фото 7
    Аренда ПСН, м. Строгино, Строгинский б-р. - Фото 8
    Аренда ПСН, м. Строгино, Строгинский б-р. - Фото 9
    Аренда ПСН, м. Строгино, Строгинский б-р. - Фото 10
    общая площадь 361м², полезная площадь 361м²

    Лот 156845. Сдается в аренду помещение свободного назначения площадью 361 м2, расположенное на -1 этаже торгового центра, расположенного по адресу: Строгинский бульвар, д. 1. корп. 2 ТЦ расположен в густонаселенном районе Строгино, в пешей доступности...
    • 361 м²
    • -1-й эт.
    800 000 Р /в месяц
    Агентство
    S5Development
    +7 (903) Показать номер
    Посмотреть контакты
    Аренда ПСН, Балашиха - Фото 1
    Аренда ПСН, Балашиха - Фото 2
    Аренда ПСН, Балашиха - Фото 3
    Аренда ПСН, Балашиха - Фото 4
    Аренда ПСН, Балашиха - Фото 5
    Аренда ПСН, Балашиха - Фото 6
    Аренда ПСН, Балашиха - Фото 7
    Аренда ПСН, Балашиха - Фото 8
    Аренда ПСН, Балашиха - Фото 9
    Аренда ПСН, Балашиха - Фото 10
    Аренда ПСН, Балашиха - Фото 11
    Аренда ПСН, Балашиха - Фото 12
    Аренда ПСН, Балашиха - Фото 13
    Аренда ПСН, Балашиха - Фото 14
    Аренда ПСН, Балашиха - Фото 15
    Аренда ПСН, Балашиха - Фото 16
    Аренда ПСН, Балашиха - Фото 17
    общая площадь 77.1м², полезная площадь 77.1м²

    Лот 155954. Аренда торгового помещения в ЖК «Новоград Павлино». Адрес: г. Балашиха, мкр. Новое Павлино, Косинское шоссе, 12. Ближайшие станции метро: Некрасовка – 9 мин. транспортом, Ольгино – 7 мин. транспортом. ЖК «Новоград Павлино» – современный квартал...
    • 77.1 м²
    • 1-й эт.
    161 200 Р /в месяц
    Агентство
    S5Development
    +7 (903) Показать номер
    Посмотреть контакты

    Не нашли подходящего объявления?

    Оставьте заявку, и наши риэлторы подберут псн в районе Москвы

    (0)