391 700 Р /в месяц 5 030 $ или 4 260

Информация об помещении

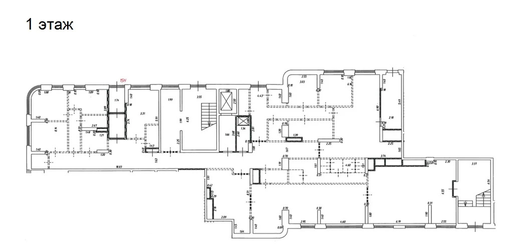
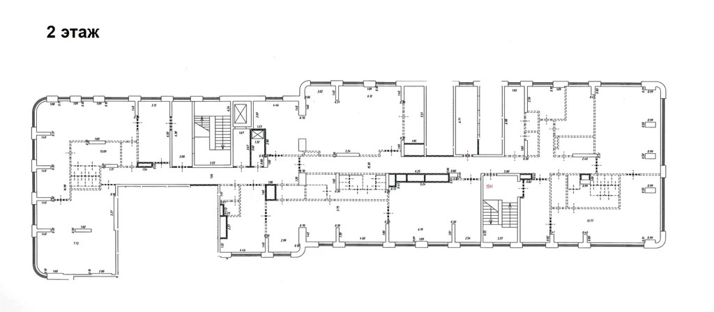
235 м2
Площадь
2
Этаж

Состояние и оснащение

Общая площадь складского комплекса, м2
235
Развернуть
Агент
Наталья
+7 (903) 170-18-68
Начать чат с агентом

Аренда ПСН, м. Калужская, Научный проезд

От собственника. Помещение свободного назначения с отдельным входом - расположено в БЦ «Научный ,17», класс А, в 15 минутах пешком от станции метро Калужская, в районе Черемушки, ЮЗАО.
Отдельный вход с улицы - лестница ведет сразу в помещение, которое расположено на 2-м этаже. Площадь помещения 235 м2. Большие витринные окна, высота потолков 3,7 метров. Планировка блока – открытая. 2 входа в помещение - с улицы (фасад здания БЦ) и из лобби бизнес-центра.
Внутренняя отделка – готово к работе и не требует вложений, на полу – керамогранит. Есть 2 санузла. Выделенная мощность 24 кВт, 3 фазы.
БЦ оборудован всей системой современной инженерии: охранная сигнализация, вентиляция и кондиционирование воздуха, автоматическая пожарная сигнализация и система оповещения, системами бесперебойного энергоснабжения, водоснабжения и водоотведения. Удобное расположение здания БЦ, хорошая транспортная доступность как личным транспортом, так и общественным. От метро Калужская - 10-15 минут пешком. Есть наземная парковка вокруг БЦ и подземный паркинг на 730 м/м.
Эксплуатационные платежи включены в стоимость. Коммунальные расходы оплачиваются отдельно по факту потребления, по счетчикам. УСН.
Это помещение подходит для аренды под танцевальный клуб, детский центр, медицинский центр, медицинскую клинику, стоматологию, учебный центр различного направления, ИЗО студию, офис ИТ-компании.
Договор аренды на 11 месяцев с пролонгацией.
Объект № 550980Номер объекта: 5/550980/310

Читать полностью

    Для того, чтобы снять ПСН площадью 235 кв. метров по адресу: ЮЗАО, Черёмушки, м. Калужская, Научный проезд, 17, позвоните по телефону +7 (903) 170-18-68. Торопитесь! Объявление №901097806 об аренде ПСН площадью 235 кв. метров опубликовано Сегодня.

    Позвонить Написать
    391 700 Р /в месяц5 030 $ или 4 260
    Агент
    Наталья
    +7 (903) 170-18-68
    Начать чат с агентом
    Похожие предложения
    Аренда ПСН, м. Калужская, Научный проезд - Фото 1
    Аренда ПСН, м. Калужская, Научный проезд - Фото 2
    Аренда ПСН, м. Калужская, Научный проезд - Фото 3
    Аренда ПСН, м. Калужская, Научный проезд - Фото 4
    Аренда ПСН, м. Калужская, Научный проезд - Фото 5
    Аренда ПСН, м. Калужская, Научный проезд - Фото 6
    Аренда ПСН, м. Калужская, Научный проезд - Фото 7
    Аренда ПСН, м. Калужская, Научный проезд - Фото 8
    Аренда ПСН, м. Калужская, Научный проезд - Фото 9
    Аренда ПСН, м. Калужская, Научный проезд - Фото 10
    Аренда ПСН, м. Калужская, Научный проезд - Фото 11
    Аренда ПСН, м. Калужская, Научный проезд - Фото 12
    Аренда ПСН, м. Калужская, Научный проезд - Фото 13
    Аренда ПСН, м. Калужская, Научный проезд - Фото 14
    Аренда ПСН, м. Калужская, Научный проезд - Фото 15
    общая площадь 290м², полезная площадь 290м²

    От собственника. Помещение свободного назначения с отдельным входом - расположено в БЦ «Научный ,17», класс А, в 15 минутах пешком от станции метро Калужская, в районе Черемушки, ЮЗАО. Отдельный вход с улицы - лестница ведет сразу в помещение, которое...
    • 290 м²
    • 2-й эт.
    483 300 Р /в месяц
    Агент
    +7 (903) Показать номер
    Посмотреть контакты
    Аренда ПСН, м. Лермонтовский проспект, ул. Привольная - Фото 1
    Аренда ПСН, м. Лермонтовский проспект, ул. Привольная - Фото 2
    Аренда ПСН, м. Лермонтовский проспект, ул. Привольная - Фото 3
    Аренда ПСН, м. Лермонтовский проспект, ул. Привольная - Фото 4
    Аренда ПСН, м. Лермонтовский проспект, ул. Привольная - Фото 5
    Аренда ПСН, м. Лермонтовский проспект, ул. Привольная - Фото 6
    Аренда ПСН, м. Лермонтовский проспект, ул. Привольная - Фото 7
    Аренда ПСН, м. Лермонтовский проспект, ул. Привольная - Фото 8
    Аренда ПСН, м. Лермонтовский проспект, ул. Привольная - Фото 9
    общая площадь 356м², полезная площадь 356м²

    м. Лермонтовский проспект, 10 минут пешком, 1 линия домов. 4 отдельных входа в торгово-офисный центр, витринное остекление с фасадной части, удобная транспортная доступность и подъезд к зданию. В аренду предлагается помещение на 3-м этаже площадью 356...
    • 356 м²
    • 3-й эт.
    593 300 Р /в месяц
    Агент
    +7 (903) Показать номер
    Посмотреть контакты
    Аренда ПСН, м. Петровско-Разумовская, Локомотивный проезд - Фото 1
    Аренда ПСН, м. Петровско-Разумовская, Локомотивный проезд - Фото 2
    Аренда ПСН, м. Петровско-Разумовская, Локомотивный проезд - Фото 3
    Аренда ПСН, м. Петровско-Разумовская, Локомотивный проезд - Фото 4
    Аренда ПСН, м. Петровско-Разумовская, Локомотивный проезд - Фото 5
    Аренда ПСН, м. Петровско-Разумовская, Локомотивный проезд - Фото 6
    Аренда ПСН, м. Петровско-Разумовская, Локомотивный проезд - Фото 7
    общая площадь 261м², полезная площадь 261м²

    Аренда помещения в ТРК «Парус». 150 метров от выхода из метро Петровско-Разумовская Площадь - 261 кв. м. 2-й этаж. Вход - около эскалатора и сан/узла. Планировка смешанная, возможны любые изменения под нужды арендатора. Потолок -3 м, электрические мощности...
    • 261 м²
    • 2-й эт.
    450 000 Р /в месяц
    Агент
    +7 (903) Показать номер
    Посмотреть контакты
    Аренда ПСН площадью 28.2 м2 - Фото 1
    Аренда ПСН площадью 28.2 м2 - Фото 2
    Аренда ПСН площадью 28.2 м2 - Фото 3
    Аренда ПСН площадью 28.2 м2 - Фото 4
    Аренда ПСН площадью 28.2 м2 - Фото 5
    Аренда ПСН площадью 28.2 м2 - Фото 6
    полезная площадь 28.2м²

    Мы - собственник коммерческой недвижимости ГК «ЭКООФИС»! Прямая аренда от собственника ГК "Экоофис"! Сдаем в аренду площадь свободного назначения 28.2 кв. м, в ТЦ "Мебель", 2 мин. м. Электрозаводская, вблизи ТТК и Садового кольца. Расположена на 1/3...
    • 28.2 м²
    • 1/3 эт.
    45 000 Р /в месяц
    Агент
    +7 (495) Показать номер
    Посмотреть контакты
    Аренда ПСН площадью 84.7 м2 - Фото 1
    Аренда ПСН площадью 84.7 м2 - Фото 2
    Аренда ПСН площадью 84.7 м2 - Фото 3
    Аренда ПСН площадью 84.7 м2 - Фото 4
    Аренда ПСН площадью 84.7 м2 - Фото 5
    Аренда ПСН площадью 84.7 м2 - Фото 6
    Аренда ПСН площадью 84.7 м2 - Фото 7
    Аренда ПСН площадью 84.7 м2 - Фото 8
    Аренда ПСН площадью 84.7 м2 - Фото 9
    Аренда ПСН площадью 84.7 м2 - Фото 10
    Аренда ПСН площадью 84.7 м2 - Фото 11
    Аренда ПСН площадью 84.7 м2 - Фото 12
    полезная площадь 84.7м²

    Сдаётся в аренду коммерческое помещение площадью 84,7 м на 1-м этаже 33-этажного жилого дома в ЖК «Тринити-2». Основные преимущества: отдельный вход; место под вывеску; витринное остекление; круглосуточный доступ; помещение без ремонта, что позволяет...
    • 84.7 м²
    • 1/34 эт.
    148 200 Р /в месяц
    Агент
    +7 (495) Показать номер
    Посмотреть контакты

    Не нашли подходящего объявления?

    Оставьте заявку, и наши риэлторы подберут псн в районе Москвы

    (0)