Россия, Москва, Крузенштерна улица, 7
м. Авиамоторная, 10 мин. пешком
Узнать последнюю цену

Реализация объекта недвижимости приостановлена

Информация об помещении

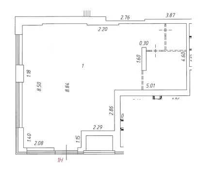
74.7 м2
Площадь
1
Этаж

Состояние и оснащение

Количество этажей
23
Развернуть

Аренда ПСН площадью 74.7 м2

Стрит ритейл, 1 этаж жилого дома в составе ЖК ""СИМВОЛ"".
Площадь – 74,7 кв.м.
Электрическая мощность – 15 кВт.
Панорамное остекление. Рекламное место на фасаде. Помещение без ремонта.
Инженерные коммуникации: приточно-вытяжная общеобменная вентиляция, смонтированы пожарная сигнализация, пожаротушение, дымоудаление.
В шаговой доступности метро Авиамоторная, Площадь Ильича, Римская, МДД-4 ст. Серп и Молот.
Коммерческие условия
м. в год, НДС не облагается). Коммунальные услуги и эксплуатационные расходы оплачиваются дополнительно. Долгосрочная аренда.

Читать полностью
    Узнать последнюю цену

    Реализация объекта недвижимости приостановлена

    Не нашли подходящего объявления?

    Оставьте заявку, и наши риэлторы подберут псн в районе Москвы

    (0)