Россия, Москва, Малая Почтовая улица, 12
м. Бауманская, 8 мин. пешком
304 600 Р /в месяц 3 980 $ или 3 350

Информация об помещении

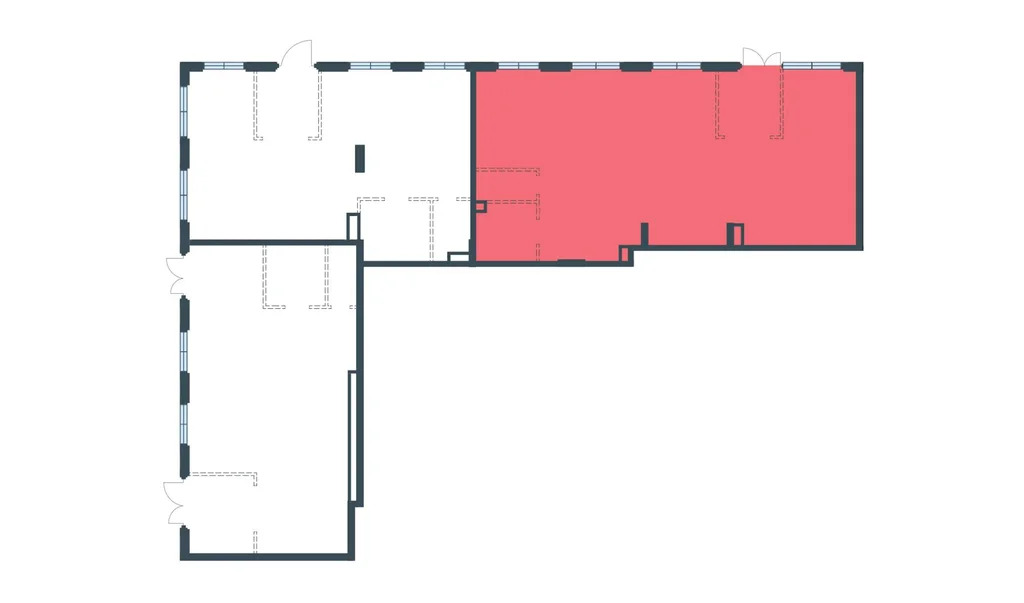
92.3 м2
Площадь
1
Этаж

Состояние и оснащение

Количество этажей
19
Развернуть
Агент
Отдел продаж
+7 (495) 023-95-02
Начать чат с агентом

Аренда ПСН площадью 92.3 м2

Сдаётся в аренду коммерческое помещение на 1-м этаже 19-этажного жилого дома в ЖК «MYPRIORITY Басманный».
Основные преимущества:
01. Отдельный вход;
02. Место под вывеску;
03. Витринное остекление;
04. Помещение без ремонта, что позволяет обустроить его по своему вкусу и требованиям бизнеса;
05. Наличие коммуникаций: водоснабжения, канализации, электроснабжения, отопления;
06. Арендные каникулы;
07. Метро в пешей доступности;
08. Помещение находится в жилом комплексе бизнес-класса;
09. Развитый район с насыщенной инфраструктурой и активным пешеходным трафиком.
Технические характеристики: наличие всех необходимых коммуникаций: водоснабжение, канализация, электроснабжение. Выделенная мощность - 18,8 кВт.
Условия: помещение предоставляется без посредников, напрямую от собственника - компании «Аструм Недвижимость», которая управляет коммерческой инфраструктурой жилых комплексов ГК «Гранель».
ЖК «MYPRIORITY Басманный» расположен в престижном Басманном районе Москвы (ЦАО) , рядом с метро «Бауманская» и Садовым кольцом. Это перспективное место для открытия бизнеса благодаря высокой транспортной доступности и плотной жилой застройке. Комплекс сочетает современные архитектурные решения с историческим шармом района, что привлекает внимание как местных жителей, так и посетителей.
На первых этажах комплекса представлены коммерческие помещения площадью от 25 до 3143 кв. м. Каждое помещение имеет отдельный вход, витринное остекление и возможность гибкой планировки. Здесь можно открыть супермаркет, кафе, офис, магазин или предприятие сферы услуг. Высокий пешеходный и автомобильный трафик обеспечен благодаря расположению крупных вузов, деловых центров, парковых зон в ближайшей зоне охвата объекта.
«MYPRIORITY Басманный» - это не только комфортное место для жизни, но и отличная площадка для развития бизнеса.
Наши менеджеры помогут вам подобрать наиболее подходящее помещение для вашего бизнеса. Звоните и узнайте подробности!

Читать полностью

    Для того, чтобы снять ПСН площадью 92 кв. метра по адресу: ЦАО, м. Бауманская, Малая Почтовая улица, 12, позвоните по телефону +7 (495) 023-95-02. Торопитесь! Объявление №901094177 об аренде ПСН площадью 92 кв. метра опубликовано Сегодня.

    Позвонить Написать
    304 600 Р /в месяц3 980 $ или 3 350
    Агент
    Отдел продаж
    +7 (495) 023-95-02
    Начать чат с агентом
    Похожие предложения
    Аренда ПСН площадью 47.4 м2 - Фото 1
    Аренда ПСН площадью 47.4 м2 - Фото 2
    Аренда ПСН площадью 47.4 м2 - Фото 3
    Аренда ПСН площадью 47.4 м2 - Фото 4
    Аренда ПСН площадью 47.4 м2 - Фото 5
    Аренда ПСН площадью 47.4 м2 - Фото 6
    Аренда ПСН площадью 47.4 м2 - Фото 7
    Аренда ПСН площадью 47.4 м2 - Фото 8
    Аренда ПСН площадью 47.4 м2 - Фото 9
    Аренда ПСН площадью 47.4 м2 - Фото 10
    Аренда ПСН площадью 47.4 м2 - Фото 11
    Аренда ПСН площадью 47.4 м2 - Фото 12
    полезная площадь 47.4м²

    Сдаётся в аренду коммерческое помещение на 1-м этаже 19-этажного жилого дома в ЖК «MYPRIORITY Басманный». Основные преимущества: 01. Отдельный вход; 02. Место под вывеску; 03. Витринное остекление; 04. Помещение без ремонта, что позволяет обустроить...
    • 47.4 м²
    • 1/19 эт.
    156 400 Р /в месяц
    Агент
    +7 (495) Показать номер
    Посмотреть контакты
    Аренда ПСН площадью 67.9 м2 - Фото 1
    Аренда ПСН площадью 67.9 м2 - Фото 2
    Аренда ПСН площадью 67.9 м2 - Фото 3
    Аренда ПСН площадью 67.9 м2 - Фото 4
    Аренда ПСН площадью 67.9 м2 - Фото 5
    Аренда ПСН площадью 67.9 м2 - Фото 6
    Аренда ПСН площадью 67.9 м2 - Фото 7
    Аренда ПСН площадью 67.9 м2 - Фото 8
    Аренда ПСН площадью 67.9 м2 - Фото 9
    Аренда ПСН площадью 67.9 м2 - Фото 10
    полезная площадь 67.9м²

    Сдаётся в аренду коммерческое помещение на 1-м этаже 19-этажного жилого дома в ЖК «MYPRIORITY Басманный». Основные преимущества: 01. Отдельный вход; 02. Место под вывеску; 03. Витринное остекление; 04. Помещение без ремонта, что позволяет обустроить...
    • 67.9 м²
    • 1/19 эт.
    224 100 Р /в месяц
    Агент
    +7 (495) Показать номер
    Посмотреть контакты
    Аренда ПСН, м. Новослободская, ул. Краснопролетарская - Фото 1
    Аренда ПСН, м. Новослободская, ул. Краснопролетарская - Фото 2
    Аренда ПСН, м. Новослободская, ул. Краснопролетарская - Фото 3
    Аренда ПСН, м. Новослободская, ул. Краснопролетарская - Фото 4
    Аренда ПСН, м. Новослободская, ул. Краснопролетарская - Фото 5
    Аренда ПСН, м. Новослободская, ул. Краснопролетарская - Фото 6
    Аренда ПСН, м. Новослободская, ул. Краснопролетарская - Фото 7
    Аренда ПСН, м. Новослободская, ул. Краснопролетарская - Фото 8
    общая площадь 272.3м², полезная площадь 272.3м²

    Аренда помещения под общепит в бизнес-центре Эрмитаж Плаза, в шаговой доступности от станций метро Маяковская, Новослободской и Цветной Бульвар. Общая площадь - 272,3 кв.м., цокольный этаж, отдельный вход с улицы Краснопролетарская, а также есть вход...
    • 272.3 м²
    • -1-й эт.
    900 900 Р /в месяц
    Агент
    +7 (903) Показать номер
    Посмотреть контакты
    Помещение свободного назначения в Москва Сигнальный проезд, 16С19 (28 ... - Фото 1
    Помещение свободного назначения в Москва Сигнальный проезд, 16С19 (28 ... - Фото 2
    Отличный бюджетный вариант - небольшое пoмещение cвобoднoго назначения рядом с метро на втором этаже современного монолитно-кирпичного дома.Сигнальный проезд, 16 стр 19, закрытая территория, охраняемая парковка. Кабинетная планировка, кабинет 27,6 кв.м...
    • 2/3 эт.
    40 000 Р
    Агент
    +7 (985) Показать номер
    Посмотреть контакты
    Помещение свободного назначения в Москва бул. Веласкеса, 5к5 (20 м) - Фото 1
    Помещение свободного назначения в Москва бул. Веласкеса, 5к5 (20 м) - Фото 2
    Аренда помещения свободного назначения 20,3 м с отличным ремонтом в ЖК Испанские Кварталы, Коммунарка.Помещение сдается без мебели О помещении:Площадь: 20,3 мНовый, качественный ремонт под ключ: заходи и начинай работать Яркая вывеска, которую видит...
    • 1/12 эт.
    40 000 Р
    Агент
    +7 (923) Показать номер
    Посмотреть контакты

    Не нашли подходящего объявления?

    Оставьте заявку, и наши риэлторы подберут псн в районе Москвы

    (0)