Россия, Москва, Красноказарменная 23
Узнать последнюю цену

Реализация объекта недвижимости приостановлена

Информация об помещении

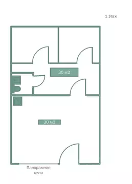
17.3 м2
Площадь
1
Этаж

Состояние и оснащение

Общая площадь складского комплекса, м2
17.3
Развернуть

Аренда ПСН, м. Авиамоторная, Красноказарменная 23

Лот 144795.

Помещения формата стрит-ритейл на первой линии Красноказарменной улицы, в 3 минутах ходьбы от станции метро и БКЛ «Авиамоторная». Густонаселенный жилой район Лефортово со сложившейся торговой инфраструктурой и учебными заведени-ями в окружении. Комфортная транспортная доступность – выезд на шоссе Энтузиастов и ТТК.

Технические характеристики:
Площадь -17,3м2, расположено на 1 этаже жилого 8-ми этажного дома. Высокий рекламный потенциал, отличная видимость для пешеходных и автомобильных потоков. Отдельные входные группы с фасада в каждое помещение, витринное остекление, высокие потолки. Электрическая мощность достаточная для любого вида деятельности. Центральные коммуникации. Высота потолка - 3,8м

Коммерческие условия:
Ставка аренды в месяц -
Ставка за м2/месяц - 13 583,
Ставка за м2/год - 163 005,

Читать полностью
    Узнать последнюю цену

    Реализация объекта недвижимости приостановлена

    Не нашли подходящего объявления?

    Оставьте заявку, и наши риэлторы подберут псн в районе Москвы

    (0)