Россия, Москва, Василия Ощепкова улица, 2
м. Новомосковская, 7 мин. пешком
150 400 Р /в месяц 1 890 $ или 1 630

Информация об помещении

143.2 м2
Площадь
1
Этаж

Состояние и оснащение

Количество этажей
15
Развернуть
Агент
Отдел продаж
+7 (495) 023-95-02
Начать чат с агентом

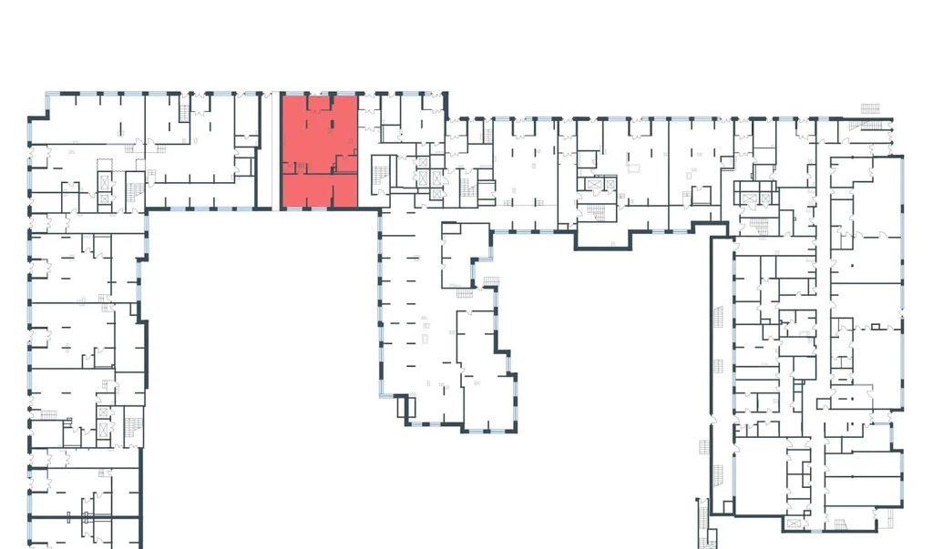
Аренда ПСН площадью 143.2 м2

Сдаётся в аренду коммерческое помещение площадью 143,2 м2 на 1-м этаже 15-этажного жилого дома в ЖК «Москвичка».
Основные преимущества:
отдельный вход;
место под вывеску;
витринное остекление;
круглосуточный доступ;
помещение без ремонта, что позволяет обустроить его по своему вкусу и требованиям бизнеса;
метро в пешей доступности - от 7 минут до м. Коммунарка;
помещение находится в жилом комплексе комфорт-класса;
развитый район с насыщенной инфраструктурой и активным пешеходным трафиком.
Технические характеристики: наличие всех необходимых коммуникаций - водоснабжение, канализация, электроснабжение.
Условия: помещение предоставляется без посредников, напрямую от собственника - компании «Аструм Недвижимость», которая управляет коммерческой инфраструктурой жилых комплексов ГК «Гранель».
ЖК «Москвичка» - это уютная локация, рассчитанная на проживание более человек, большинство из которых - молодые и активные люди в возрасте от 20 до 50 лет. Уже сейчас в комплексе успешно работают множество бизнесов и якорные арендаторы. Среди них: продуктовые магазины, кафе, салоны красоты и другие предприятия сферы услуг.
Расположение комплекса в 700 метрах от станции метро «Коммунарка» обеспечивает отличный транспортный доступ, что позволяет жителям микрорайона добираться до центра столицы быстро и удобно. Весь микрорайон активно развивается и расширяется, создавая отличные перспективы для бизнеса.
Наши менеджеры помогут вам подобрать наиболее подходящее помещение для вашего бизнеса. Звоните и узнайте подробности!

Читать полностью

    Для того, чтобы снять ПСН площадью 143 кв. метра по адресу: м. Новомосковская, Василия Ощепкова улица, 2, позвоните по телефону +7 (495) 023-95-02. Торопитесь! Объявление №901069225 об аренде ПСН площадью 143 кв. метра опубликовано Сегодня.

    Позвонить Написать
    150 400 Р /в месяц1 890 $ или 1 630
    Агент
    Отдел продаж
    +7 (495) 023-95-02
    Начать чат с агентом
    Похожие предложения
    Аренда ПСН площадью 118.8 м2 - Фото 1
    Аренда ПСН площадью 118.8 м2 - Фото 2
    Аренда ПСН площадью 118.8 м2 - Фото 3
    Аренда ПСН площадью 118.8 м2 - Фото 4
    Аренда ПСН площадью 118.8 м2 - Фото 5
    Аренда ПСН площадью 118.8 м2 - Фото 6
    Аренда ПСН площадью 118.8 м2 - Фото 7
    Аренда ПСН площадью 118.8 м2 - Фото 8
    Аренда ПСН площадью 118.8 м2 - Фото 9
    Аренда ПСН площадью 118.8 м2 - Фото 10
    Аренда ПСН площадью 118.8 м2 - Фото 11
    Аренда ПСН площадью 118.8 м2 - Фото 12
    Аренда ПСН площадью 118.8 м2 - Фото 13
    Аренда ПСН площадью 118.8 м2 - Фото 14
    Аренда ПСН площадью 118.8 м2 - Фото 15
    полезная площадь 118.8м²

    Сдаётся в аренду коммерческое помещение площадью 118,8 м2 на 1-м этаже 15-этажного жилого дома в ЖК «Москвичка». Основные преимущества: отдельный вход; место под вывеску; витринное остекление; круглосуточный доступ; помещение без ремонта, что позволяет...
    • 118.8 м²
    • 1/15 эт.
    136 600 Р /в месяц
    Агент
    +7 (495) Показать номер
    Посмотреть контакты
    Аренда ПСН площадью 891.6 м2 - Фото 1
    Аренда ПСН площадью 891.6 м2 - Фото 2
    Аренда ПСН площадью 891.6 м2 - Фото 3
    Аренда ПСН площадью 891.6 м2 - Фото 4
    Аренда ПСН площадью 891.6 м2 - Фото 5
    полезная площадь 891.6м²

    СОБСТВЕННИК предлагает в аренду помещение свободного назначения на территории бывшего завода Кристалл. Адрес: Самокатная улица, 4с1. 3 этаж, Площадь 891,6 кв.м. Высота потолков 8,00 м. Красивая охраняемая территория с собственной огромной парковкой. В...
    • 891.6 м²
    • 3/5 эт.
    891 600 Р /в месяц
    Агент
    +7 (938) Показать номер
    Посмотреть контакты
    Аренда ПСН площадью 22.8 м2 - Фото 1
    Аренда ПСН площадью 22.8 м2 - Фото 2
    Аренда ПСН площадью 22.8 м2 - Фото 3
    Аренда ПСН площадью 22.8 м2 - Фото 4
    полезная площадь 22.8м²

    Мы - собственник коммерческой недвижимости ГК «ЭКООФИС»! Прямая аренда от собственника ГК "Экоофис"! Сдаем в аренду площадь свободного назначения 22.8 кв. м. , в ТЦ "Мебель", 2 мин. м. Электрозаводская, вблизи ТТК и Садового кольца. Помещение расположено...
    • 22.8 м²
    • 1/3 эт.
    25 000 Р /в месяц
    Агент
    +7 (495) Показать номер
    Посмотреть контакты
    Аренда ПСН, м. Бибирево, ул. Плещеева - Фото 1
    Аренда ПСН, м. Бибирево, ул. Плещеева - Фото 2
    Аренда ПСН, м. Бибирево, ул. Плещеева - Фото 3
    Аренда ПСН, м. Бибирево, ул. Плещеева - Фото 4
    Аренда ПСН, м. Бибирево, ул. Плещеева - Фото 5
    Аренда ПСН, м. Бибирево, ул. Плещеева - Фото 6
    Аренда ПСН, м. Бибирево, ул. Плещеева - Фото 7
    Аренда ПСН, м. Бибирево, ул. Плещеева - Фото 8
    Аренда ПСН, м. Бибирево, ул. Плещеева - Фото 9
    Аренда ПСН, м. Бибирево, ул. Плещеева - Фото 10
    Аренда ПСН, м. Бибирево, ул. Плещеева - Фото 11
    Аренда ПСН, м. Бибирево, ул. Плещеева - Фото 12
    Аренда ПСН, м. Бибирево, ул. Плещеева - Фото 13
    Аренда ПСН, м. Бибирево, ул. Плещеева - Фото 14
    Аренда ПСН, м. Бибирево, ул. Плещеева - Фото 15
    Аренда ПСН, м. Бибирево, ул. Плещеева - Фото 16
    Аренда ПСН, м. Бибирево, ул. Плещеева - Фото 17
    Аренда ПСН, м. Бибирево, ул. Плещеева - Фото 18
    Аренда ПСН, м. Бибирево, ул. Плещеева - Фото 19
    Аренда ПСН, м. Бибирево, ул. Плещеева - Фото 20
    общая площадь 720м², полезная площадь 720м²

    Без комиссии! Вашему вниманию предлагается торговая площадь на втором этаже Торгового Дома DREZDEN , находящемся в густонаселенном жилом массиве под непродовольственные товары и услуги. 3 минут ходьбы от метро Бибирево. Первая линия. Высокий пешеходный...
    • 720 м²
    • 2-й эт.
    720 000 Р /в месяц
    PRO
    +7 (963) Показать номер
    Агентство
    Мариако
    Посмотреть контакты
    Аренда ПСН, м. Алтуфьево, ул. Новгородская - Фото 1
    Аренда ПСН, м. Алтуфьево, ул. Новгородская - Фото 2
    Аренда ПСН, м. Алтуфьево, ул. Новгородская - Фото 3
    Аренда ПСН, м. Алтуфьево, ул. Новгородская - Фото 4
    Аренда ПСН, м. Алтуфьево, ул. Новгородская - Фото 5
    Аренда ПСН, м. Алтуфьево, ул. Новгородская - Фото 6
    Аренда ПСН, м. Алтуфьево, ул. Новгородская - Фото 7
    Аренда ПСН, м. Алтуфьево, ул. Новгородская - Фото 8
    Аренда ПСН, м. Алтуфьево, ул. Новгородская - Фото 9
    общая площадь 2500м², полезная площадь 2500м²

    Представляем вашему вниманию помещение в крупном бизнес центре этаж под перепланировку. Предостовление аренднгых каникул на 5 лет. Современный ремонт и отделка здания. Планировку можно изменить под себя. В стоимость аренды включены коммунальные платежи....
    • 2 500 м²
    • 4-й эт.
    2 500 000 Р /в месяц
    PRO
    +7 (963) Показать номер
    Агентство
    Мариако
    Посмотреть контакты

    Не нашли подходящего объявления?

    Оставьте заявку, и наши риэлторы подберут псн в районе Москвы

    (0)