540 000 Р 7 210 $ или 6 150

Информация об помещении

1
Этаж

Состояние и оснащение

Количество этажей
2
Развернуть
Агент
+7 (938) 656-74-88
Начать чат с агентом

Помещение свободного назначения в Москва д. Кнутово, 8Б (600 м)

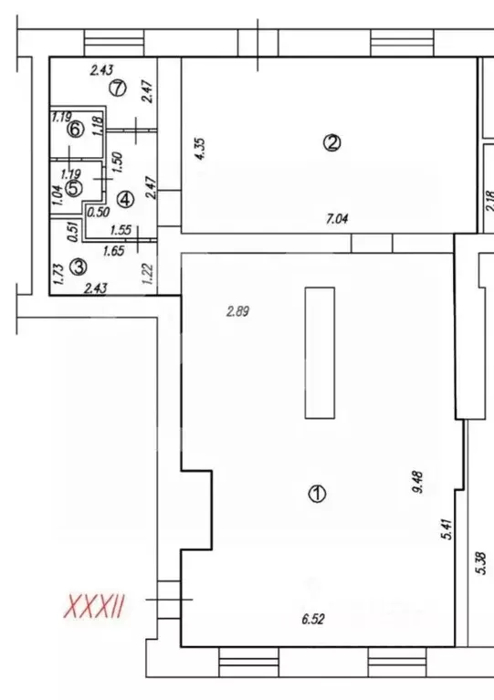
1139544. Предлагается складское помещение общей площадью 400 кв. м. в д. Кнутово. д 8Б стр 1. 1, 2 этаж 2 ОСЗ.Преимущества:7 км до Калужского шоссе, 8 км до Киевского шоссе, 18 км до МКАД, 26 км до ЦКАД.В 20 минутах езды от станции Филатов Луг, 10 минут пешком до автобусной остановки Школа.1 этаж: котельная, гараж, мини-офис и санузел, сейчас размещено производство диванов.2 этаж: санузел, кухня и 3 жилые комнаты.Выход на плоскую крышу.Бетонный пол.Огороженная территория.Ворота на электроприводе со въездом во внутренний двор.Парковка.Технические характеристики:Общая площадь: 600 кв. м.Под запрос есть возможность выделить необходимое количество квадратных метров из общего объема по ставке 900р/м2. Электрическая мощность: 80 кВт.Здание 1:Площадь: 400 кв. м. - Площадь 1 этажа: 300 кв. м.Площадь 2 этажа: 100 кв. м.Высота потолков на 1 этаже: 3 - 3,4 м, покатые.1 выход на улицу (выход на парковку на 7-10 машин), 2 выхода во двор (парковка на 23 машины).Здание 2:Площадь: 200 кв. м.Электрическая мощность: 80 кВт.

Читать полностью
    Позвонить Написать
    540 000 Р7 210 $ или 6 150
    Агент
    +7 (938) 656-74-88
    Начать чат с агентом
    Похожие предложения
    Помещение свободного назначения в Москва Ленинский просп., 72/2 (102 ... - Фото 1
    Помещение свободного назначения в Москва Ленинский просп., 72/2 (102 ... - Фото 2
    1147274. Предлагаем торговое помещение, площадью 101,7 кв. м., расположенное на первом этаже 9-этажного жилого дома.Преимущества объекта:-первая линия Ленинского проспекта;-менее 100 метров от станции метро Вавиловская; -густонаселённый жилой массив;-сложившееся...
    • 1/9 эт.
    550 000 Р
    Агент
    +7 (938) Показать номер
    Посмотреть контакты
    Помещение свободного назначения (176.2 м) - Фото 1
    Помещение свободного назначения (176.2 м) - Фото 2
    Аренда подвального торгового помещения street retail на Земляном Валу со входом с фасада первого этажа Общая площадь: 176,2 м2 (подвал). Вход в помещение располагается на 1 этаже с фасада. Есть возможность размещения вывески.Одна минута от выхода метро...
    • 9 этажей
    550 000 Р
    Агент
    +7 (985) Показать номер
    Посмотреть контакты
    Помещение свободного назначения (550 м) - Фото 1
    Помещение свободного назначения (550 м) - Фото 2
    Номер объекта: 537062. Аренда производственно-складского помещения, подходит под любой вид деятельности. Такие как: автосервис, склад, производство и многое другое. Подъем грузового транспорта на этаж.Основные характеристики:- Площадь: 550 м на 3 этаже-...
    • 3-й эт.
    550 000 Р
    Агент
    +7 (963) Показать номер
    Посмотреть контакты
    Помещение свободного назначения (195.5 м) - Фото 1
    Помещение свободного назначения (195.5 м) - Фото 2
    Дата освобождения - 15 апреля 2026 годаАренда площади третьего этажа 195,5 м2 особняка в Замоскворечье. Отдельно стоящее здание 956,5м2 на Озерковской набережной. Выход окон выходит на три стороны. Кабинетная планировка. Хороший ремонт. Прекрасные видовые...
    • 3/4 эт.
    537 625 Р
    Агент
    +7 (965) Показать номер
    Посмотреть контакты
    Помещение свободного назначения в Москва ул. Горбунова, 11К2 (350 м) - Фото 1
    Помещение свободного назначения в Москва ул. Горбунова, 11К2 (350 м) - Фото 2
    Номер объекта: 541089. Сдается в аренду помещение свободного назначения площадью 350 м2 (Дополнительная площадь обсуждается отдельно). Возможно установить перегородки.Отдельно стоящее здание. 3 этажа. Первая линия. Отдельный въезд для авто в помещение....
    • -1/3 эт.
    530 000 Р
    Агент
    +7 (916) Показать номер
    Посмотреть контакты

    Не нашли подходящего объявления?

    Оставьте заявку, и наши риэлторы подберут псн в районе Москвы

    (0)