30 000 Р 401 $ или 342

Состояние и оснащение

Количество этажей
5
Развернуть
Агент
+7 (966) 118-71-66
Начать чат с агентом

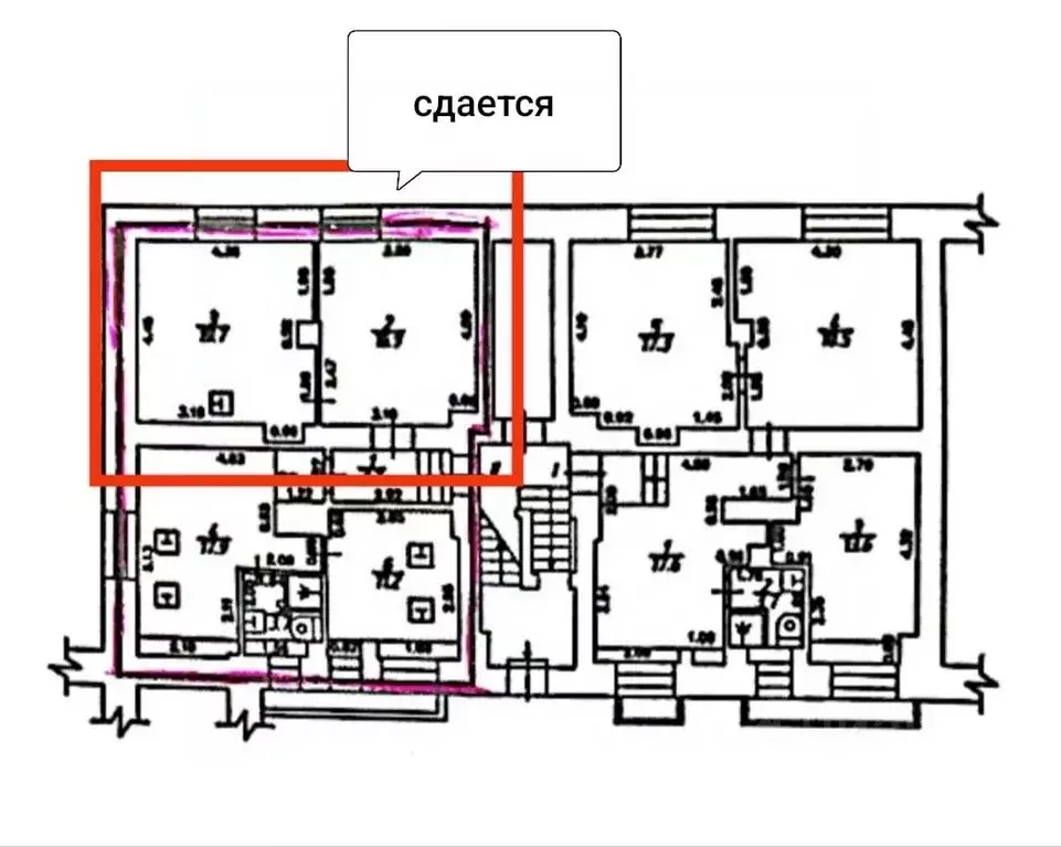
Помещение свободного назначения (14 м)

3 минуты от метро Спортивная. Предлагается в аренду помещение в цоколе жилого дома. Площадь 14 кв.м. Офисный ремонт. Вход через подъезд

Читать полностью
    Позвонить Написать
    30 000 Р401 $ или 342
    Агент
    +7 (966) 118-71-66
    Начать чат с агентом
    Похожие предложения
    Помещение свободного назначения в Москва Большая Почтовая ул., ... - Фото 1
    Помещение свободного назначения в Москва Большая Почтовая ул., ... - Фото 2
    Сдается на 3 месяца по столь привлекательной цене помещение свободного назначения на улице Большая Почтовая 18/20к17. По истечение 3 месяцев - полная стоимость (), либо расторжение договора.35 кв.м., 2 комнаты, с хорошим ремонтом, высота потолков 2,7...
    • -1/5 эт.
    30 000 Р
    Агент
    +7 (915) Показать номер
    Посмотреть контакты
    Аренда помещения площадью 140 м2 - Фото 1
    Аренда помещения площадью 140 м2 - Фото 2
    Аренда помещения площадью 140 м2 - Фото 3
    Аренда помещения площадью 140 м2 - Фото 4
    Аренда помещения площадью 140 м2 - Фото 5
    Аренда помещения площадью 140 м2 - Фото 6
    Аренда помещения площадью 140 м2 - Фото 7
    Аренда помещения площадью 140 м2 - Фото 8
    Аренда помещения площадью 140 м2 - Фото 9
    полезная площадь 140м²

    Сдаётся коммерческое помещение площадью 140 м2 от собственника. Два отдельных входа, рядом въезд в подземную парковку, напротив строится надземная парковка. Помещение находится в ЖК «Ютаново», где, благодаря высокому трафику и проходимости, есть все условия...
    • 140 м²
    • 1/1 эт.
    350 000 Р /в месяц
    Агент
    +7 (981) Показать номер
    Посмотреть контакты
    Помещение свободного назначения в Москва ул. Орджоникидзе, 5К2 (15 м) - Фото 1
    Помещение свободного назначения в Москва ул. Орджоникидзе, 5К2 (15 м) - Фото 2
    К вашим услугам — светлая комната. Идеальное решение для вашего дела: офис, кабинет, салон красоты или другое (формат использования обсудим индивидуально). Ключевые преимущества: Первая линия домов. Парковка стихийная (шлагбаума нет). Доступ 24/7. Шаговая...
    • 1/5 эт.
    31 000 Р
    Агент
    +7 (933) Показать номер
    Посмотреть контакты
    Помещение свободного назначения в Москва ул. Искры, 23С2 (20 м) - Фото 1
    Помещение свободного назначения в Москва ул. Искры, 23С2 (20 м) - Фото 2
    Лот 346820 Предложение от Собственника Предлагается помещение под офис площадью 20.00 м2. Помещение расположено 10 мин от м Свиблово. 3 этаж. Пропускная система. Планировка - коридорная. 10 телефонных линий. Есть лифт. В цену включено: затраты на электричество,...
    • 3/7 эт.
    30 834 Р
    Агент
    +7 (968) Показать номер
    Посмотреть контакты
    Помещение свободного назначения (12 м) - Фото 1
    Срочно Без комиссии. Прямая Аренда. Помещение свободного назначения 12,4 кв.м., расположенное по адресу г. Москва, Большая Семёновская улица дом 32, строение 13. Огороженная охраняемая территория. Доступ с 07.00 до 23.00. Без Окна. Офисная отделка. Готовы...
    • 1/3 эт.
    30 000 Р
    Агент
    +7 (936) Показать номер
    Посмотреть контакты

    Не нашли подходящего объявления?

    Оставьте заявку, и наши риэлторы подберут псн в районе Москвы

    (0)