650 000 Р 8 680 $ или 7 410

Информация об помещении

1
Этаж

Состояние и оснащение

Количество этажей
1
Развернуть
Агент
+7 (909) 947-72-75
Начать чат с агентом

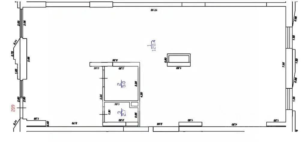
Помещение свободного назначения (395.2 м)

Номер объекта: 542335. Аренда помещения свободного назначения под склад, легкое производство, пищевое производство, даркстор, склад доставки и прочее. Имеется холодильная камера. Расположено на 1 этаже(цоколь). Ворота «нулевой уровень, выделенная зона разгрузки на огороженной территории. Два отдельных входа, первая линия, высокий трафик. Высота потолка -2,7м. Открытая планировка. Выполнен ремонт. Все центральные коммуникации. Эл. Мощность— 50квт. Приточно-вытяжная вентиляция. Бесплатная городская парковка. Прямая долгосрочная аренда.

Читать полностью
    Позвонить Написать
    650 000 Р8 680 $ или 7 410
    Агент
    +7 (909) 947-72-75
    Начать чат с агентом
    Похожие предложения
    Помещение свободного назначения (110 м) - Фото 1
    Помещение свободного назначения (110 м) - Фото 2
    Номер объекта: 542336. Помещение на трафике, 5 минут пешком от м Вавиловская (200м), активный пешеходный трафик, рядом остановка общественного транспорта. Клиентский поток с улицы обеспечен.Капитальное здание, административное, 110 кв мЕсть своя канализация,...
    • 1/1 эт.
    653 180 Р
    Агент
    +7 (909) Показать номер
    Посмотреть контакты
    Помещение свободного назначения в Москва Ленинградский просп., 71КГ ... - Фото 1
    Помещение свободного назначения в Москва Ленинградский просп., 71КГ ... - Фото 2
    1163390. Предлагаем торговое помещение под лицензируемый вид деятельности (медицина, фармакология, образовательные услуги), площадью 105.4 кв. м., расположенное на первом этаже и антресоли 8-этажного жилого дома.Преимущества объекта:-первая линия Ленинградского...
    • 1/8 эт.
    650 000 Р
    Агент
    +7 (938) Показать номер
    Посмотреть контакты
    Помещение свободного назначения в Москва бул. Яна Райниса, 2К1 (75 м) - Фото 1
    Помещение свободного назначения в Москва бул. Яна Райниса, 2К1 (75 м) - Фото 2
    1147303. Предлагаем торговое помещение, площадью 75,1 кв. м., расположенное на первом этаже 9-этажного жилого дома. Преимущества объекта:-первая линия домов бульвара Яна Райниса;-2 минуты пешком от станции метро Сходненская; -густонаселённый жилой массив;-сложившееся...
    • 1/9 эт.
    650 000 Р
    Агент
    +7 (938) Показать номер
    Посмотреть контакты
    Помещение свободного назначения в Москва Автомобильный проезд, 4 (128 ... - Фото 1
    Помещение свободного назначения в Москва Автомобильный проезд, 4 (128 ... - Фото 2
    1107520. Предлагаем помещение свободного назначения, площадью 128.1 кв. м., расположенное на первом этаже жилого дома в апарт-комплексе NICE LOFT .Преимущества объекта:-первая линия Автомобильного проезда;-ЖК состоит из 7 корпусов переменной этажности...
    • 1/21 эт.
    640 500 Р
    Агент
    +7 (938) Показать номер
    Посмотреть контакты
    Помещение свободного назначения в Москва Тихвинский пер., 11 (223 м) - Фото 1
    Помещение свободного назначения в Москва Тихвинский пер., 11 (223 м) - Фото 2
    ЛотПредложение от Собственника Предлагается помещение под офис площадью 222.80 м2. Помещение расположено 10 мин от м Менделеевская. 3 этаж. Система кондиционирования. Пропускная система. Планировка - кабинетная. 2 парковочных мест. Есть лифт. В цену...
    • 3/6 эт.
    649 982 Р
    Агент
    +7 (968) Показать номер
    Посмотреть контакты

    Не нашли подходящего объявления?

    Оставьте заявку, и наши риэлторы подберут псн в районе Москвы

    (0)