2 999 987 Р 39 450 $ или 33 470

Информация об помещении

1
Этаж

Состояние и оснащение

Количество этажей
5
Развернуть
Агент
+7 (986) 274-27-15
Начать чат с агентом

Помещение свободного назначения в Москва просп. Мира, 28 (732 м)

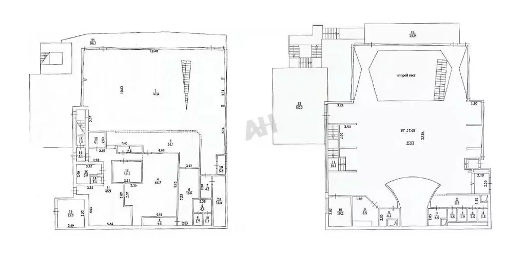
ЛотПредложение от Собственника Предлагаем в аренду помещение под ресторан 731,6 кв.м., с отд. входом и двухуровневой летней верандой со стороны Аптекарского огорода . Размещения вывески на первой линии, рекламные возможности. В окружении расположены различные: кафе, рестораны, банкетные залы, лаунж бары, кофейни-кондитерские, магазины, творческие пространства, офисы. Двухуровневое, 1 этаж с антресолью. Преимущественно открытая планировка. Высота потолков: от 3,5 до 7м. За выездом ресторана. Технологическая вентиляция для общепита. 170 кВт. Все инженерные коммуникации, газ. Прямая аренда. В цену включено: НДС 22 . В цену не включено: затраты на электричество, коммунальные расходы, уборка. Обеспечительный платеж 2 месяцa.Чтобы получить ПОДРОБНУЮ ПРЕЗЕНТАЦИЮ С ПЛАНИРОВКОЙ И ФОТОГРАФИЯМИ, звоните или отправьте свой email и номер телефона в сообщении на портале. Высылаем в течение 15 минут по запросу Конт. лицо: Александр Александрович, доб. 245, ЛОТ 1078624

Читать полностью
    Позвонить Написать
    2 999 987 Р39 450 $ или 33 470
    Агент
    +7 (986) 274-27-15
    Начать чат с агентом
    Похожие предложения
    Помещение свободного назначения (732 м) - Фото 1
    Помещение свободного назначения (732 м) - Фото 2
    Лот №1081649 Предложение от Собственника Напишите нам в Ватсап, чтобы получить ПОДРОБНУЮ ПРЕЗЕНТАЦИЮ С ПЛАНИРОВКОЙ И ФОТОГРАФИЯМИ Предлагаем в аренду помещение под ресторан 731,6 кв.м., с отд. входом и двухуровневой летней верандой со стороны Аптекарского...
    • 1/5 эт.
    2 999 987 Р
    Агент
    +7 (931) Показать номер
    Посмотреть контакты
    Помещение свободного назначения (732 м) - Фото 1
    Помещение свободного назначения (732 м) - Фото 2
    Лот №1081649 Предложение от Собственника Напишите нам в Ватсап, чтобы получить ПОДРОБНУЮ ПРЕЗЕНТАЦИЮ С ПЛАНИРОВКОЙ И ФОТОГРАФИЯМИ Предлагается в аренду помещение под кафе, ресторан, общепит площадью 731.60 м2. Помещение расположено у г . 1- этаж. Отдельный...
    • 1/5 эт.
    2 999 987 Р
    Агент
    +7 (931) Показать номер
    Посмотреть контакты
    Помещение свободного назначения в Москва просп. Мира, 28 (732 м) - Фото 1
    Помещение свободного назначения в Москва просп. Мира, 28 (732 м) - Фото 2
    ЛотПредложение от Собственника Предлагается в аренду помещение под кафе, ресторан, общепит площадью 731.60 м2. Помещение расположено 2 мин от м Проспект Мира. 1-2 этаж. Отдельный вход. Система кондиционирования. Есть круглосуточный доступ. Планировка...
    • 1/5 эт.
    2 999 987 Р
    Агент
    +7 (986) Показать номер
    Посмотреть контакты
    Лот №1080977 Предложение от Собственника Напишите нам в Ватсап, чтобы получить ПОДРОБНУЮ ПРЕЗЕНТАЦИЮ С ПЛАНИРОВКОЙ И ФОТОГРАФИЯМИ Предлагается в аренду офисный блок общей площадью 1742,1 м, расположенный на третьем этаже бизнес-центра класса В+ «РТС...
    • 3/6 эт.
    3 048 675 Р
    Агент
    +7 (931) Показать номер
    Посмотреть контакты
    Помещение свободного назначения в Москва Шелепихинская наб., 34к3зд7 ... - Фото 1
    Помещение свободного назначения в Москва Шелепихинская наб., 34к3зд7 ... - Фото 2
    1157864. Предлагаем помещение свободного назначения, площадью 2 000 кв. м, расположенное на -1 и -2 этажах 36-этажного жилого дома в престижном ЖК Сердце Столицы .Преимущества объекта:-первая линия Шелепихинского шоссе;-ЖК состоит из 10 корпусов переменной...
    • -1/36 эт.
    3 000 000 Р
    Агент
    +7 (938) Показать номер
    Посмотреть контакты

    Не нашли подходящего объявления?

    Оставьте заявку, и наши риэлторы подберут псн в районе Москвы

    (0)