240 000 Р 3 210 $ или 2 730

Информация об помещении

1
Этаж

Состояние и оснащение

Количество этажей
1
Развернуть
Агент
+7 (986) 323-94-58
Начать чат с агентом

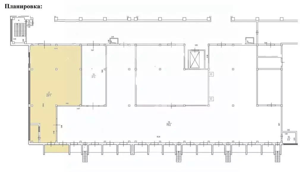
Помещение свободного назначения в Москва Таганская ул., 31/22 (135 м)

АРЕНДА ОТ СОБСТВЕННИКА Помешение свободного назначения .Планировка в два уровня 1 этаж ,цоколь .Общая площадь -135 кВ.м Витринные окна, высокие потолки 4 метра Идеально подойдет под офис продаж ; детский центр ,магазин , аптека , стамотология ,ателье , шоу-рум, кафе Дополонительно комунальные Условия цены обсуждаються после просмотра

Читать полностью
    Позвонить Написать
    240 000 Р3 210 $ или 2 730
    Агент
    +7 (986) 323-94-58
    Начать чат с агентом
    Похожие предложения
    Помещение свободного назначения в Москва Таганская пл., 86/1С1 (76 м) - Фото 1
    Помещение свободного назначения в Москва Таганская пл., 86/1С1 (76 м) - Фото 2
    Сдаётся в прямую долгосрочную аренду интересное помещение в непосредственной близости от метро Интенсивный трафикПомещение расположено на втором этаже в близости от лестницыОткрытая планировка Каникулы для косметического ремонта обсуждаютсяМощность 30...
    • 2/2 эт.
    250 000 Р
    Агент
    +7 (985) Показать номер
    Посмотреть контакты
    Помещение свободного назначения в Москва Сигнальный проезд, вл16с21 ... - Фото 1
    Помещение свободного назначения в Москва Сигнальный проезд, вл16с21 ... - Фото 2
    1151628. Предлагается складское помещение общей площадью 160 кв. м. в СВАО, р-н Отрадное. 1 этаж ОСЗ. Преимущества: Первая линия, пересечение Сигнального проезда и СВХ. 5 минут пешком от ст. Владыкино . Удобная транспортная доступность: выезд на Алтуфьевское...
    • 1/2 эт.
    240 000 Р
    Агент
    +7 (938) Показать номер
    Посмотреть контакты
    Помещение свободного назначения в Москва Щербаковская ул., 40 (107 м) - Фото 1
    Помещение свободного назначения в Москва Щербаковская ул., 40 (107 м) - Фото 2
    Помещение с витринными окнами и потолками 4,5 метра рядом с метро. Расположенный в ВАО Москвы жилой район характеризуется высокой плотностью населения.Первая линия, высокий трафик, отдельный вход с улицы и со двора для разгрузки. Парковка вдоль дороги...
    • 1/10 эт.
    245 000 Р
    Агент
    +7 (923) Показать номер
    Посмотреть контакты
    Помещение свободного назначения в Москва Митинская ул., 28к3 (80 м) - Фото 1
    Помещение свободного назначения в Москва Митинская ул., 28к3 (80 м) - Фото 2
    ПРЯМАЯ АРЕНДА от собственника.Сдается помещение свободного назначения общей площадью 80 кв. м. в 5-и минутах ходьбы от м. Митино на 1 этаже ЖК LIFE-Митинская ECOPARK по адресу: Митинская, д. 28 к3. Первая линия. Отдельный вход с улицы. Хорошо просматривается...
    • 1/23 эт.
    230 000 Р
    Агент
    +7 (994) Показать номер
    Посмотреть контакты
    Помещение свободного назначения в Москва, Москва, Щербинка Южный кв-л, ... - Фото 1
    Помещение свободного назначения в Москва, Москва, Щербинка Южный кв-л, ... - Фото 2
    Сдается помещение свободного назначения с ремонтом.1 этаж жилого дома, отдельный вход,удобный подъезд, парковка во дворе.Большие рекламные возможности.Подойдет под магазин, пвз, склад, офис, фитнес , салон красотыПодходит под ПВЗ Яндекс Маркет, по запросу...
    • 1/17 эт.
    250 000 Р
    Агент
    +7 (916) Показать номер
    Посмотреть контакты

    Не нашли подходящего объявления?

    Оставьте заявку, и наши риэлторы подберут псн в районе Москвы

    (0)