1 750 000 Р 23 260 $ или 19 720

Информация об помещении

1
Этаж

Состояние и оснащение

Количество этажей
21
Развернуть
Агент
+7 (906) 770-61-78
Начать чат с агентом

Помещение свободного назначения (250 м)

ID 62989 Предлагаю в аренду ПСН площадью 250 м2, расположенное на первом этаже жилого дома входящего в состав ЖК премиум-класса Lucky. Помещение угловое, с двумя отдельными входами, зальной планировки , с витринными окнами, высокими потолками. Все коммуникации в наличии, электрическая мощность 50 кВт. Квартал премиум-класса Lucky расположен в Пресненском районе г. Москвы, на пересечении улицы Костикова и 2-й Звенигородской, в 200 м от станции «Улица 1905 года . Застройщик компания Vesper. Номер в базе: J62989

Читать полностью
    Позвонить Написать
    1 750 000 Р23 260 $ или 19 720
    Агент
    +7 (906) 770-61-78
    Начать чат с агентом
    Похожие предложения
    Помещение свободного назначения в Москва Звенигородское ш., 18/20к1 ... - Фото 1
    Помещение свободного назначения в Москва Звенигородское ш., 18/20к1 ... - Фото 2
    ID: 575485Аренда помещения Street Retail на Звенигородском шоссе, ЦАО, МоскваПредлагается в аренду помещение свободного назначения (ПСН) 551,5 м, расположенное в бизнес-центре у метро Улица 1905 года (23 минуты пешком). Идеально подходит под ресторан...
    • 1/5 эт.
    1 746 417 Р
    Агент
    +7 (980) Показать номер
    Посмотреть контакты
    Помещение свободного назначения в Москва Полковая ул., 3С4 (830 м) - Фото 1
    Помещение свободного назначения в Москва Полковая ул., 3С4 (830 м) - Фото 2
    1163121. Предлагаем в аренду офисное помещение площадью 830 кв. м, расположенное в бизнес-парке Шереметьевский Преимущества объекта: - Здание класса В- Шаговая доступность от станции метро Марьина Роща (9 минуты пешком)- Этаж: 4- Помещение предлагается...
    • 4/4 эт.
    1 799 000 Р
    Агент
    +7 (938) Показать номер
    Посмотреть контакты
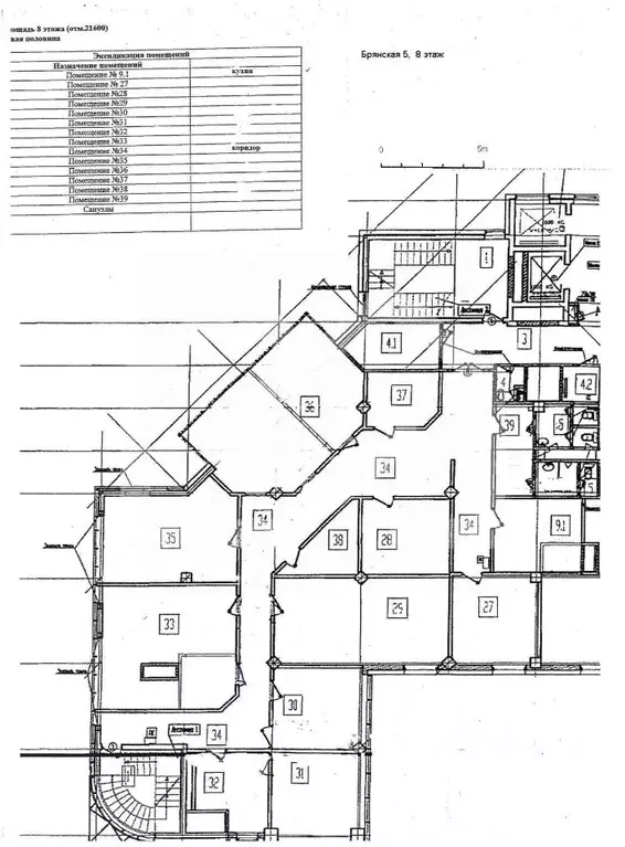
    Помещение свободного назначения в Москва Брянская ул., 5 (400 м) - Фото 1
    Помещение свободного назначения в Москва Брянская ул., 5 (400 м) - Фото 2
    1133219. Предлагаем в аренду офисное помещение площадью 400 кв. м, расположенное в бизнес-центре Европа Билдинг Преимущества объекта: - Бизнес-центр класса А- Шаговая доступность от станции метро Киевская (3 минуты пешком)- Этаж: 8- Помещение предлагается...
    • 8/14 эт.
    1 800 000 Р
    Агент
    +7 (938) Показать номер
    Посмотреть контакты
    Помещение свободного назначения в Москва ул. Гиляровского, 65С1 (988 ... - Фото 1
    Помещение свободного назначения в Москва ул. Гиляровского, 65С1 (988 ... - Фото 2
    1109416. Предлагаем в аренду офисное помещение площадью 988 кв. м, расположенное в здании по адресу Гиляровского, д 65 стр 1.Преимущества объекта: - Здание класса В+ в стиле модерн, с уникальными фасадами со старинными витражами- Шаговая доступность от...
    • 3/5 эт.
    1 702 500 Р
    Агент
    +7 (938) Показать номер
    Посмотреть контакты
    Помещение свободного назначения в Москва Шлюзовая наб., 8С1 (538 м) - Фото 1
    Помещение свободного назначения в Москва Шлюзовая наб., 8С1 (538 м) - Фото 2
    1112944. Предлагаем в аренду офисное помещение площадью 538,3 кв. м, расположенное в бизнес-центре Кошелев Преимущества объекта: - Здание класса В- Шаговая доступность от станции метро Павелецкая (8 минут пешком)- Этаж: 3- Помещение предлагается с отделкой-...
    • 3/7 эт.
    1 704 600 Р
    Агент
    +7 (938) Показать номер
    Посмотреть контакты

    Не нашли подходящего объявления?

    Оставьте заявку, и наши риэлторы подберут псн в районе Москвы

    (0)