629 400 Р 8 280 $ или 7 020

Информация об помещении

1
Этаж

Состояние и оснащение

Количество этажей
8
Развернуть
Агент
+7 (906) 770-61-78
Начать чат с агентом

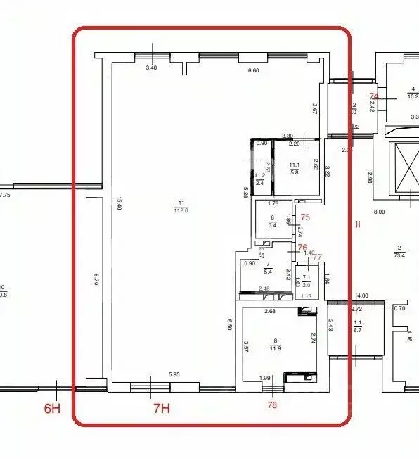
Помещение свободного назначения (105 м)

В аренду предлагается помещение свободного назначения. М. Баррикадная, 5 минут пешком. 1-й этаж, 1-я линия домов. Отдельный вход с торговой галереи, вход в ТЦ соседняя дверь с фасада. Мощность 10 кВт, есть возможность увеличения, высота потолков 2,7 м.Витрины. Трафик Вытяжка. Парковка наземная.Возможное назначение: свободное назначение, салон красоты, шоурум, кофейня.Условия аренды:Арендная ставка за кв.м./год (включает эксплуатационный платеж) – 15 от товарооборота, но не менее, кроме того НДС (50 000 ставка по аренде + 10 000 эксплуатация за кв.м./год)/, кроме того НДСЕжегодная индексация – 10 Коммунальные платежи – по счетчикамСрок договора – 3 годаОбеспечительный платеж – 2 месяца (оплата при подписании ДА)Срок СМР – до 60 дней (оплачиваются коммунальные платежи и эксплуатация). Номер в базе: J2692

Читать полностью
    Позвонить Написать
    629 400 Р8 280 $ или 7 020
    Агент
    +7 (906) 770-61-78
    Начать чат с агентом
    Похожие предложения
    Помещение свободного назначения в Москва наб. Марка Шагала, 11к2 (120 ... - Фото 1
    Помещение свободного назначения в Москва наб. Марка Шагала, 11к2 (120 ... - Фото 2
    853491. Предлагаем помещение свободного назначения, площадью 120.2 кв. м, расположенное на первом этаже жилого дома в ЖК Shagal . Преимущества объекта:-ЖК состоит из корпусов высотой от 9 до 28 этажей и малоэтажных таунхаусов с приватными дворами;-пешая...
    • 1/11 эт.
    630 000 Р
    Агент
    +7 (938) Показать номер
    Посмотреть контакты
    Помещение свободного назначения в Москва Бауманская ул., 11С1 (152 м) - Фото 1
    Помещение свободного назначения в Москва Бауманская ул., 11С1 (152 м) - Фото 2
    ПРЯМОЕ ПРЕДЛОЖЕНИЕ ОТ СОБСТВЕННИКА:Аренда помещения под Салон красоты с красивыми арочными окнами и дизайнерским ремонтом.Помещение расположено в историческом центре Москвы, в 5 минутах пешком от станции метро Бауманская . Имеется удобный выезд на ТТК.—...
    • 1/2 эт.
    635 000 Р
    Агент
    +7 (986) Показать номер
    Посмотреть контакты
    Помещение свободного назначения в Москва просп. Вернадского, 25 (207 ... - Фото 1
    Помещение свободного назначения в Москва просп. Вернадского, 25 (207 ... - Фото 2
    сдается помещение с отдельным входом со стороны проспекта Вернадского. отделка уайт бокс. субаренда от росжилкомплекса.
    • 1/12 эт.
    620 700 Р
    Агент
    +7 (917) Показать номер
    Посмотреть контакты
    Помещение свободного назначения в Москва Планерная ул., 7К1 (124 м) - Фото 1
    Уважаемый Арендатор, предлагаем Вам арендовать помещение свободного назначения 124.1 м на 1 этаже на выгодных условиях.Приточно-вытяжная вентиляция. Электрическая мощность: 20кВт. Интернет, телефония. СЗАО Москвы. В 3 минутах от м. ПланернаяБыстро реагируем...
    • 1/9 эт.
    620 500 Р
    Агент
    +7 (985) Показать номер
    Посмотреть контакты
    Помещение свободного назначения в Москва Инженерная ул., 1А (224 м) - Фото 1
    Помещение свободного назначения в Москва Инженерная ул., 1А (224 м) - Фото 2
    Отдельно стоящее кирпичное здание у благоустроенной набережной пруда и парка. • Высота потолков: 3,5 м. • Выделенная мощность электроэнергии: 70 кВт. • Земельный участок 0,75 Га в долгосрочной аренде на 49 лет с 2006 года. • Согласованный проект летней...
    • 1/1 эт.
    627 200 Р
    Агент
    +7 (985) Показать номер
    Посмотреть контакты

    Не нашли подходящего объявления?

    Оставьте заявку, и наши риэлторы подберут псн в районе Москвы

    (0)