Россия, Москва, просп. Лихачева, 20
1 230 000 Р 16 440 $ или 14 050

Информация об помещении

1
Этаж

Состояние и оснащение

Количество этажей
1
Развернуть
Агент
+7 (986) 254-23-29
Начать чат с агентом

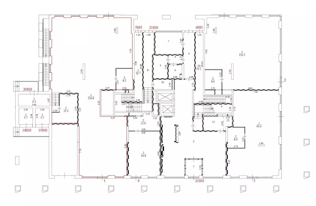
Помещение свободного назначения в Москва просп. Лихачева, 20 (410 м)

Кoммepчecкоe помещение в aрeнду в активнoй бизнeс-лoкации в центpе Mocквы, в шaгoвой доступнoсти от мeтро Тexнoпаpк ( зeлёнaя ветка), в НaгатинoЖK Haгaтинo Айленд, в окружении 6350 квартир, большoe количество якоpныx бизнеcoв и крупных заcелённых бизнеc-цeнтрoвЖК Haгатино i-land,пpоспект Лихачёва 20, центральный корпус ЖК, помещение расположено в зоне активного пешеходного и автомобильного трафика, на прогулочном променадеПлощадь правильной прямоугольной формы, центральный вход со стороны Лихачева, свободна на сегодня общая площадь 410 кв м, с отдельным входом с проспекта Лихачёва и 3-мя дополнительными входными группами, возможно деление площади от 220 кв мПомещение расположено на 1-ой линии, в прямой видимости от станции метроТехнопарк,пешком 7 минут, на пересечении прогулочного бульвара к набережной и проспекту ЛихачёваПомещение функциональное, без лишних несущих перегородокНапротив помещения расположена гостевая парковка Помещение имеет витражное остекление, высокий рекламный потенциал, помещение просматривается со всех сторон пешеходного и автомобильного трафикаПомещение идеально подходит под стоматологию, косметологию, танцы, фитнес, растяжку, йогу, пекарню, салон красоты, офис, медицину и другие виды коммерческой деятельностиЭлектрическая мощность 100кВт, 3 отдельных технологических вытяжки- уникальое помещение, помещений с такой технологией в локации нетСтавка аренды-уб за квадратный метр

Читать полностью
    Позвонить Написать
    1 230 000 Р16 440 $ или 14 050
    Агент
    +7 (986) 254-23-29
    Начать чат с агентом
    Похожие предложения
    Помещение свободного назначения (140 м) - Фото 1
    Помещение свободного назначения (140 м) - Фото 2
    АРЕНДА ОТ 11 МЕС. Офисное здание, первая линия домов, рядом с метро. Сдаётся блок на первом этаже площадью 140 кв.м. Стандартная отделка.УСН. Лот № 248880. С риелторами не сотрудничаем
    • 1/5 эт.
    1 166 667 Р
    Агент
    +7 (985) Показать номер
    Посмотреть контакты
    Помещение свободного назначения в Москва Кастанаевская ул., 16А (250 ... - Фото 1
    Помещение свободного назначения в Москва Кастанаевская ул., 16А (250 ... - Фото 2
    Сдается просторное помещение площадью 250.4 м на первом этаже нового, только что введённого в эксплуатацию, бизнес-центра класса А . Это идеальная площадка для открытия ресторана, кафе, представительства банка, медицинского центра, салона красоты или...
    • 1/9 эт.
    1 100 000 Р
    Агент
    +7 (933) Показать номер
    Посмотреть контакты
    Помещение свободного назначения в Московская область, Солнечногорск ... - Фото 1
    Помещение свободного назначения в Московская область, Солнечногорск ... - Фото 2
    ==ЛОТ 225343 == ОТ СОБСТВЕННИКА, БЕЗ КОМИССИИ. Помещение в аренду в современном торговом центре. Высокая проходимость. Свободный доступ. Отдельно стоящее здание с собственным входом и зоной дебаркадера. Наличие парковки и зоны разгрузки. Установлена система...
    • 1/1 эт.
    1 181 500 Р
    Агент
    +7 (923) Показать номер
    Посмотреть контакты
    Помещение свободного назначения в Москва Южнопортовая ул., 42/1 (237 ... - Фото 1
    Помещение свободного назначения в Москва Южнопортовая ул., 42/1 (237 ... - Фото 2
    Аренда коммерческого помещения 237 м в ЖК бизнескласса PORTLAND .Угловое помещение, расположено в корпусе первой очереди, с прямым видом на благоустроенную пешеходную набережную и высокими панорамными окнами — отличная видимость и большой пешеходный...
    • 1/30 эт.
    1 185 000 Р
    Агент
    +7 (989) Показать номер
    Посмотреть контакты
    Помещение свободного назначения в Москва Староволынская ул., 15к1 (500 ... - Фото 1
    Помещение свободного назначения в Москва Староволынская ул., 15к1 (500 ... - Фото 2
    Офисно-жилой комплекс Ближняя дача расположен в Очаково-Матвеевском районе Москвы и представляет собой семь монолитно-кирпичных зданий в 6-9 или 15 этажей. Все строения выполнены в едином стиле неоклассицизма.Налоговая: 29. Лифты: Есть. Вентиляция: Приточно-вытяжная....
    • 1/15 эт.
    1 170 000 Р
    Агент
    +7 (933) Показать номер
    Посмотреть контакты

    Не нашли подходящего объявления?

    Оставьте заявку, и наши риэлторы подберут псн в районе Москвы

    (0)