1 750 000 Р 23 010 $ или 19 530

Информация об помещении

2
Этаж

Состояние и оснащение

Количество этажей
2
Развернуть
Агент
+7 (985) 482-21-79
Начать чат с агентом

Помещение свободного назначения в Москва ш. Энтузиастов, 31С50 (1386 ...

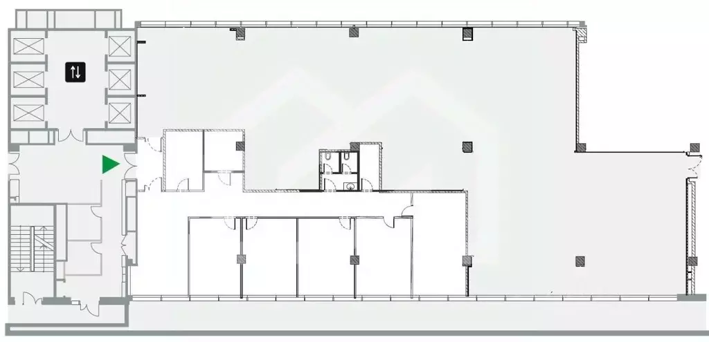
Отапливаемое помещение свободного назначения 1386 кв.м.Подходит под склад, производство, творческое / спортивное пространство.Описаниe:- Планиpовка открытая- Наличие рабочего подъемника, до 2т (на фото)- Интеpнeт (oптoвoлoкно, 5 пpoвайдepов)- Заезд на территорию 24/7, охрана, видеонаблюдение- Наземный паркинг на территории БЦ- Наличие мокрой точки и туалета в помещении- Разноуровневая высота потолков от 5м до 7м.- Ровный бетонный пол с возможностью высокой нагрузки, шаг колонн - 6м- Въездные ворота - 3х3Условия:- В стоимость аренды включен НДС 22 - Коммунальные платежи оплачиваются отдельно- Срок аренды: от 11месяцев- Залог: 1 месяц аренды- График просмотра: любой будний день с 9:00 до 17:30Преимущества:- Расположение: в шаговой доступности от метро шоссе Энтузиастов и в 2 мин. от МЦК. Рядом со входом в Бизнес Центр остановки всех видов городского общественного транспорта.- На территории располагаются кластеры различного направления: офисные, складские, производственные, спортивные. Большое сосредоточение фотостудий. Рядом с вакантным помещением открыты: магазин самокатов, скейт-парк, батутный центр, скалодром.Дополнительная информация:- Дополнительные фото, видео/план помещения доступны по запросу- Арендные каникулы на заезд- Готовность подписать договор в кратчайшие срокиЗвоните.

Читать полностью
    Позвонить Написать
    1 750 000 Р23 010 $ или 19 530
    Агент
    +7 (985) 482-21-79
    Начать чат с агентом
    Похожие предложения
    Помещение свободного назначения в Москва ул. Земляной Вал, 9 (280 м) - Фото 1
    Помещение свободного назначения в Москва ул. Земляной Вал, 9 (280 м) - Фото 2
    1110605. Предлагаем в аренду офисное помещение площадью 280 кв. м, расположенное в бизнес-центре Ситидел Преимущества объекта: - Бизнес-центр класса А- Шаговая доступность от станции метро Курская (4 минуты пешком)- Этаж: 8- Помещение предлагается с...
    • 8/12 эт.
    1 793 400 Р
    Агент
    +7 (938) Показать номер
    Посмотреть контакты
    Помещение свободного назначения в Москва Брянская ул., 5 (400 м) - Фото 1
    Помещение свободного назначения в Москва Брянская ул., 5 (400 м) - Фото 2
    1133219. Предлагаем в аренду офисное помещение площадью 400 кв. м, расположенное в бизнес-центре Европа Билдинг Преимущества объекта: - Бизнес-центр класса А- Шаговая доступность от станции метро Киевская (3 минуты пешком)- Этаж: 8- Помещение предлагается...
    • 8/14 эт.
    1 800 000 Р
    Агент
    +7 (938) Показать номер
    Посмотреть контакты
    Помещение свободного назначения в Москва Тверской бул., 14С5 (184 м) - Фото 1
    Помещение свободного назначения в Москва Тверской бул., 14С5 (184 м) - Фото 2
    Уважаемые арендаторы Эксклюзивное предложение Успевайте Собственником в прямую аренду сдается ГОТОВОЕ премиальное пространство под ВИНОТЕКУ, БАР, КАФЕ, РЕСТОРАН, ОБЩЕПИТ, СУПЕРМАРКЕТ, 184 m в элитном здании на Тверском бульваре. Ищем арендатора...
    • 1/4 эт.
    1 700 000 Р
    Агент
    +7 (980) Показать номер
    Посмотреть контакты
    Помещение свободного назначения в Москва Тверская ул., 12С1 (166 м) - Фото 1
    Помещение свободного назначения в Москва Тверская ул., 12С1 (166 м) - Фото 2
    Предлагается в долгосрочную аренду нежилое помещение, общей площадью 165,6 кв.м., формат стрит-ритейл. Первая линия Тверской улицы, первый этаж, презентабельная входная группа с Тверской. Большая витрина. Второй вход со двора. Высота потолков- 5 метров....
    • 1/6 эт.
    1 750 000 Р
    Агент
    +7 (986) Показать номер
    Посмотреть контакты
    Помещение свободного назначения в Москва Новослободская ул., 16 (196 ... - Фото 1
    Помещение свободного назначения в Москва Новослободская ул., 16 (196 ... - Фото 2
    ЛотПредложение от Собственника Предлагается помещение под офис площадью 196.00 м2. Помещение расположено 1 мин от м Менделеевская. 2 этаж. Помещение меблировано. Система кондиционирования. Есть круглосуточный доступ. Планировка - смешанная. Есть лифт....
    • 2/9 эт.
    1 791 996 Р
    Агент
    +7 (986) Показать номер
    Посмотреть контакты

    Не нашли подходящего объявления?

    Оставьте заявку, и наши риэлторы подберут псн в районе Москвы

    (0)