2 293 198 Р 30 080 $ или 25 730

Информация об помещении

1
Этаж

Состояние и оснащение

Количество этажей
5
Развернуть
Агент
+7 (938) 656-74-88
Начать чат с агентом

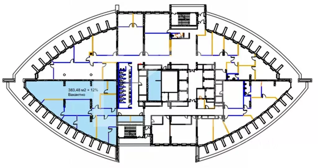
Помещение свободного назначения в Москва Варшавское ш., 9С1Б (744 м)

855412. Предлагаем в аренду офисное помещение площадью 743,74 кв. м, расположенное в бизнес-центре Даниловская Мануфактура Преимущества объекта: - Бизнес-центр класса В+- Шаговая доступность от станции метро Тульская (10 минут пешком)- Этаж: 1- Помещение предлагается с отделкой в стиле лофт - Планировка смешанная- Помещение готово к въезду- Наземный паркинг - Высокие потолки от 3 м. Эксплуатационные платежи включены в ставку, коммунальные платежи оплачиваются дополнительно. Оперативно организуем для Вас показ и ответим на все вопросы. Свяжитесь с нами для получения дополнительной информации

Читать полностью
    Позвонить Написать
    2 293 198 Р30 080 $ или 25 730
    Агент
    +7 (938) 656-74-88
    Начать чат с агентом
    Похожие предложения
    Помещение свободного назначения в Москва Нижегородская ул., 25 (229 м) - Фото 1
    ВАЖНО: БЕЗ КОММИССИ ДЛЯ АРЕНДАТОРОВ, ПРЯМАЯ АРЕНДА ОТ СОБСТВЕННИКАЖилое здание B класса Нижегородскаяасположено по адресу Москва, ЦАО, район Таганский, Нижегородская ул., дом 25, в пешей доступности от метро Римская (16 мин).Характеристики здания: 2 этажа,...
    • 1/2 эт.
    2 310 000 Р
    Агент
    +7 (916) Показать номер
    Посмотреть контакты
    Помещение свободного назначения в Москва Ленинградский просп., 31АС1 ... - Фото 1
    Помещение свободного назначения в Москва Ленинградский просп., 31АС1 ... - Фото 2
    1081717. Предлагаем в аренду офисное помещение площадью 429,5 кв. м, расположенное в многофункциональном комплексе Монарх Преимущества объекта: - Бизнес-центр класса В+- Шаговая доступность от станции метро Динамо (9 минут пешком)- Этаж: 36- Помещение...
    • 36/38 эт.
    2 270 624 Р
    Агент
    +7 (938) Показать номер
    Посмотреть контакты
    Помещение свободного назначения в Москва Подкопаевский пер., 4 (328 м) - Фото 1
    Помещение свободного назначения в Москва Подкопаевский пер., 4 (328 м) - Фото 2
    1155912. Предлагаем в аренду офисное помещение площадью 328 кв. м, расположенное в бизнес-центре Ивановская горка Преимущества объекта:- Бизнес-центр класса А- Шаговая доступность от станции метро Китай-город (6 минут пешком)- Этаж: 2- Помещение предлагается...
    • 2/4 эт.
    2 323 333 Р
    Агент
    +7 (938) Показать номер
    Посмотреть контакты
    Помещение свободного назначения в Москва д. Евсеево, ул. Евсеевская, ... - Фото 1
    Помещение свободного назначения в Москва д. Евсеево, ул. Евсеевская, ... - Фото 2
    Аренда готовых помещений в промпарке Кувекино от девелопера Помещения состоят из промышленно-складских блоков и офисовОфисная часть с готовой отделкой, двумя санузлами и отдельным входом с улицы.Технические характеристики помещения:- Электроснабжение...
    • 1/1 эт.
    2 382 142 Р
    Агент
    +7 (986) Показать номер
    Посмотреть контакты
    1127524. Предлагается новый теплый сухой склад премиум класса А общей площадью 1 350 кв. м.в Технопарке Индиго.Преимущества:Автобусная остановка в 10 м, маршрут от м. Филатов Луг. В шаговой доступности станция метро Корнилово.Склад спроектирован голландскими...
    • 1/1 эт.
    2 395 462 Р
    Агент
    +7 (938) Показать номер
    Посмотреть контакты

    Не нашли подходящего объявления?

    Оставьте заявку, и наши риэлторы подберут псн в районе Москвы

    (0)