4 796 247 Р 63 060 $ или 53 510

Информация об помещении

1
Этаж

Состояние и оснащение

Количество этажей
4
Развернуть
Агент
+7 (938) 656-74-88
Начать чат с агентом

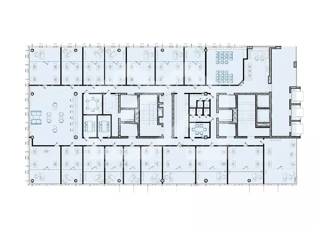
Помещение свободного назначения в Москва Варшавское ш., 9С1Б (1310 м)

1126434. Предлагаем в аренду офисное помещение площадью 1310,45 кв. м, расположенное в лофт-квартале Даниловская Мануфактура Преимущества объекта: - Здание класса В+- Шаговая доступность от станции метро Тульская (10 минут пешком)- Этаж: 1-4- Помещение предлагается с отделкой в стиле Лофт- Планировка открытая- Помещение свободно с апреля 2026 года- Высота потолков 3,9 мЭксплуатационные платежи включены в ставку, коммунальные платежи оплачиваются дополнительно. Оперативно организуем для Вас показ и ответим на все вопросы. Свяжитесь с нами для получения дополнительной информации

Читать полностью
    Позвонить Написать
    4 796 247 Р63 060 $ или 53 510
    Агент
    +7 (938) 656-74-88
    Начать чат с агентом
    Похожие предложения
    Помещение свободного назначения в Москва Садовническая ул., 9А (400 м) - Фото 1
    Помещение свободного назначения в Москва Садовническая ул., 9А (400 м) - Фото 2
    1106211. Предлагаем в аренду сервисный офис площадью 400 кв. м, наабочих мест, расположенный в бизнес-центре Новый Балчуг Преимущества объекта: - Бизнес-центр класса А- Шаговая доступность от станций метро Новокузнецкая и Третьяковская (10 минут пешком)-...
    • 3/6 эт.
    4 819 000 Р
    Агент
    +7 (938) Показать номер
    Посмотреть контакты
    Помещение свободного назначения в Москва Киевское шоссе, 22-й км, 6с1 ... - Фото 1
    Помещение свободного назначения в Москва Киевское шоссе, 22-й км, 6с1 ... - Фото 2
    1156713. Предлагаем в аренду офисное помещение площадью 1228 кв. м, расположенное в бизнес-центре Comcity (Комсити) Преимущества объекта: - Бизнес-центр класса А- Шаговая доступность от станции метро Румянцево (7 минут пешком)- Этаж: 2- Помещение предлагается...
    • 2/7 эт.
    4 744 174 Р
    Агент
    +7 (938) Показать номер
    Посмотреть контакты
    Помещение свободного назначения в Москва Ленинский просп., 15А (827 м) - Фото 1
    Помещение свободного назначения в Москва Ленинский просп., 15А (827 м) - Фото 2
    1144189. Предлагаем в аренду офисное помещение площадью 827,2 кв. м, расположенное в бизнес-центре Central Park Tower Преимущества объекта: - Бизнес-центр класса А- Шаговая доступность от станции метро Шаболовская (6 минут пешком)- Этаж: 4- Помещение...
    • 4/22 эт.
    4 793 624 Р
    Агент
    +7 (938) Показать номер
    Посмотреть контакты
    Помещение свободного назначения в Москва наб. Пресненская, 10блокВ ... - Фото 1
    Помещение свободного назначения в Москва наб. Пресненская, 10блокВ ... - Фото 2
    1144548. Предлагаем в аренду офисное помещение площадью 576 кв. м, расположенное в бизнес-центре Башня на Набережной , блок В.Преимущества объекта:Бизнес-центр класса А- Шаговая доступность от станции метро Деловой Центр (4 минуты пешком)- Этаж: 7- Помещение...
    • 7/27 эт.
    4 860 480 Р
    Агент
    +7 (938) Показать номер
    Посмотреть контакты
    Помещение свободного назначения в Москва ул. Большая Ордынка, 44С4 ... - Фото 1
    Помещение свободного назначения в Москва ул. Большая Ордынка, 44С4 ... - Фото 2
    1121443. Предлагаем в аренду офисное помещение площадью 1254,5 кв. м, расположенное в бизнес-центре На Ордынке Преимущества объекта: - Здание класса А- Шаговая доступность от станции метро Полянка (6 минут пешком)- Этаж: 3- Помещение предлагается с отделкой-...
    • 3/6 эт.
    4 757 273 Р
    Агент
    +7 (938) Показать номер
    Посмотреть контакты

    Не нашли подходящего объявления?

    Оставьте заявку, и наши риэлторы подберут псн в районе Москвы

    (0)