13 589 199 Р 180 600 $ или 153 200

Информация об помещении

30
Этаж

Состояние и оснащение

Количество этажей
33
Развернуть
Агент
+7 (986) 274-27-15
Начать чат с агентом

Помещение свободного назначения в Москва Ленинградский просп., 36С13 ...

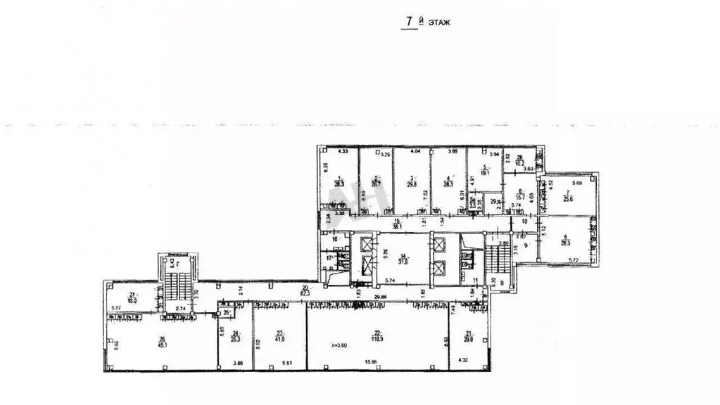
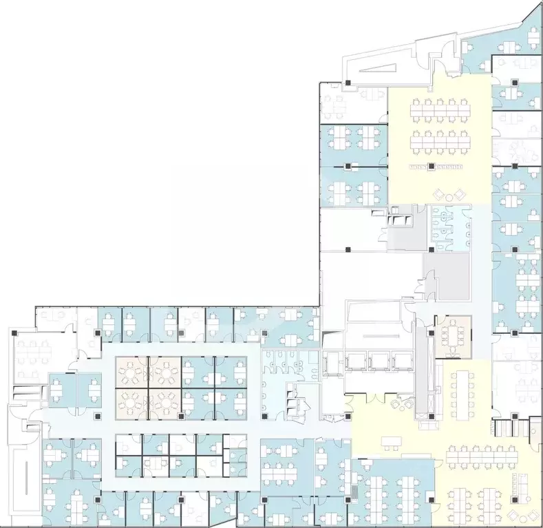
Лот 817872 Предлагается помещение под офис площадью 2384.07 м2. Помещение расположено 5 мин от м Петровский Парк. 30 этаж. Система кондиционирования. Пропускная система. Есть круглосуточный доступ. Планировка - открытая. Есть лифт. В цену включено: НДС 22 . В цену не включено: коммунальные расходы. Обеспечительный платеж 2 месяцa.Чтобы получить ПОДРОБНУЮ ПРЕЗЕНТАЦИЮ С ПЛАНИРОВКОЙ И ФОТОГРАФИЯМИ, звоните или отправьте свой email и номер телефона в сообщении на портале. Высылаем в течение 15 минут по запросу Конт. лицо: Елена Леонидовна, доб. 205, ЛОТ 817872

Читать полностью
    Позвонить Написать
    13 589 199 Р180 600 $ или 153 200
    Агент
    +7 (986) 274-27-15
    Начать чат с агентом
    Похожие предложения
    Помещение свободного назначения в Москва Ленинградский просп., 36С13 ... - Фото 1
    Помещение свободного назначения в Москва Ленинградский просп., 36С13 ... - Фото 2
    Лот 817865 Предлагается помещение под офис площадью 2379.78 м2. Помещение расположено 5 мин от м Петровский Парк. 29 этаж. Система кондиционирования. Пропускная система. Есть круглосуточный доступ. Планировка - открытая. Есть лифт. В цену включено: НДС...
    • 29/33 эт.
    13 564 746 Р
    Агент
    +7 (986) Показать номер
    Посмотреть контакты
    Помещение свободного назначения в Московская область, Солнечногорск ... - Фото 1
    Помещение свободного назначения в Московская область, Солнечногорск ... - Фото 2
    Помещение свободного назначения в аренду от собственника без комиссии. Класс A. Объявление актуально. Охраняемая территория. 30 км от МКАД. Никаких скрытых платежей. Открыты к диалогу по условиям аренды. ID объекта 509. Добавьте в избранное, чтобы не...
    • 1/1 эт.
    13 041 963 Р
    Агент
    +7 (982) Показать номер
    Посмотреть контакты
    Помещение свободного назначения в Москва Городская ул., 8 (8500 м) - Фото 1
    Помещение свободного назначения в Москва Городская ул., 8 (8500 м) - Фото 2
    ЛотПредложение от Собственника Сдается целиком здание 8500 м2 в 6 мин от м.Тульская, м.Шаболовская. Административное 8-этажное здание советского типа (ранее располагался Мосэнергострой), аккуратное, с гармоничной внутренней обстановкой. Коридорно-кабинетная...
    • 1/8 эт.
    14 699 334 Р
    Агент
    +7 (986) Показать номер
    Посмотреть контакты
    Помещение свободного назначения в Москва Лесная ул., 7 (1573 м) - Фото 1
    Помещение свободного назначения в Москва Лесная ул., 7 (1573 м) - Фото 2
    1162803. Предлагаем в аренду офисное помещение площадью 1573 кв. м, расположенное в бизнес-центре Белые Сады Преимущества объекта: - Бизнес-центр класса А- Шаговая доступность от станции метро Белорусская (2 минуты пешком)- Этаж: 8- Помещение предлагается...
    • 11/16 эт.
    14 472 911 Р
    Агент
    +7 (938) Показать номер
    Посмотреть контакты
    Помещение свободного назначения в Москва Летниковская ул., 2С1 (1730 ... - Фото 1
    Помещение свободного назначения в Москва Летниковская ул., 2С1 (1730 ... - Фото 2
    980365. Предлагаем в аренду сервисный офис площадью 1730 кв. м, расположенный в бизнес-центре Вивальди Плаза Преимущества объекта: - Бизнес-центр класса А- Шаговая доступность от станции метро Павелецкая (3 минуты пешком)- Этаж: 4- Помещение предлагается...
    • 4/13 эт.
    14 640 000 Р
    Агент
    +7 (938) Показать номер
    Посмотреть контакты

    Не нашли подходящего объявления?

    Оставьте заявку, и наши риэлторы подберут псн в районе Москвы

    (0)