Россия, Москва, просп. Лихачева, 8
11 887 350 Р 152 700 $ или 130 800

Информация об помещении

6
Этаж

Состояние и оснащение

Количество этажей
15
Развернуть
Агент
+7 (986) 274-27-15
Начать чат с агентом

Помещение свободного назначения в Москва просп. Лихачева, 8 (2451 м)

ЛотПредложение от Собственника Предлагается помещение под офис площадью 2451.00 м2. Помещение расположено 13 мин от м Автозаводская. 6 этаж. Планировка - смешанная. Есть лифт. Есть парковка. В цену включено: НДС 22 . В цену не включено: затраты на электричество. Обеспечительный платеж 1 месяц.Чтобы получить ПОДРОБНУЮ ПРЕЗЕНТАЦИЮ С ПЛАНИРОВКОЙ И ФОТОГРАФИЯМИ, звоните или отправьте свой email и номер телефона в сообщении на портале. Высылаем в течение 15 минут по запросу Конт. лицо: Ада , доб. 264, ЛОТ 1008825

Читать полностью
    Позвонить Написать
    11 887 350 Р152 700 $ или 130 800
    Агент
    +7 (986) 274-27-15
    Начать чат с агентом
    Похожие предложения
    Помещение свободного назначения в Москва д. Терехово, ул. Терехово-2, ... - Фото 1
    Помещение свободного назначения в Москва д. Терехово, ул. Терехово-2, ... - Фото 2
    1136499. Предлагается складской комплекс класса А общей площадью 11 350 кв. м. в Новой Москве, д. Терехово, Троицкого округа. 1 этаж ОСЗ.Преимущества:Строительство по техническому заданию заказчика.Удобная развязка: расположение на ЦКАД, 30 км до МКАД...
    • 1/1 эт.
    12 314 750 Р
    Агент
    +7 (938) Показать номер
    Посмотреть контакты
    Помещение свободного назначения в Москва 1-й Красногвардейский проезд, ... - Фото 1
    Помещение свободного назначения в Москва 1-й Красногвардейский проезд, ... - Фото 2
    1136895. Предлагаем в аренду офисное помещение площадью 1 334 кв. м, расположенное в бизнес-центре (NEVA TOWERS (НЕВА ТАУЭРС)).Преимущества объекта: - Бизнес-центр класса А- Шаговая доступность от станции метро Москва-Сити (4 минуты пешком)- Этаж: 2-...
    • 2/69 эт.
    12 884 217 Р
    Агент
    +7 (938) Показать номер
    Посмотреть контакты
    Помещение свободного назначения в Москва Ленинградский просп., 37Ак4 ... - Фото 1
    Помещение свободного назначения в Москва Ленинградский просп., 37Ак4 ... - Фото 2
    1106234. Предлагаем в аренду сервисный офис площадью 908 кв. м, наабочих мест, расположенный в бизнес-центре Аркус 3 Преимущества объекта: - Бизнес-центр класса А- Шаговая доступность от станции метро ЦСКА и Динамо(10-12 минут пешком)- Этаж: 2- Помещение...
    • 2/15 эт.
    11 712 000 Р
    Агент
    +7 (938) Показать номер
    Посмотреть контакты
    Помещение свободного назначения в Москва Крылатская ул., 17к3 (1873 м) - Фото 1
    Помещение свободного назначения в Москва Крылатская ул., 17к3 (1873 м) - Фото 2
    919473. Предлагаем в аренду офисное помещение площадью 1 873 кв. м, расположенное в бизнес-центре Крылатские Холмы Преимущества объекта:- Бизнес-центр класса А- Бесплатные автобусы-шаттлы от метро Крылатское- Этаж: 4- Помещение предлагается с качественной...
    • 4/6 эт.
    11 806 143 Р
    Агент
    +7 (938) Показать номер
    Посмотреть контакты
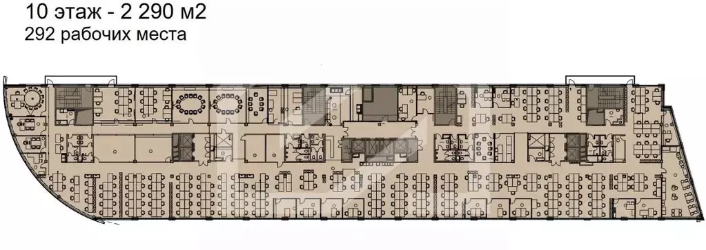
    Помещение свободного назначения в Москва ул. Правды, 26 (2290 м) - Фото 1
    Помещение свободного назначения в Москва ул. Правды, 26 (2290 м) - Фото 2
    671932. Предлагаем в аренду офисное помещение площадью 2290 кв. м, расположенное в бизнес-центре Северное Сияние Преимущества объекта: - Бизнес-центр класса В+- Шаговая доступность от станции метро Савеловская (8 минут пешком)- Этаж: 10- Помещение предлагается...
    • 10/15 эт.
    11 175 200 Р
    Агент
    +7 (938) Показать номер
    Посмотреть контакты

    Не нашли подходящего объявления?

    Оставьте заявку, и наши риэлторы подберут псн в районе Москвы

    (0)