Россия, Москва, ул. Маршала Прошлякова, 14к2
1 500 000 Р 19 050 $ или 16 480

Информация об помещении

2
Этаж

Состояние и оснащение

Количество этажей
6
Развернуть
Агент
+7 (916) 032-01-79
Начать чат с агентом

Помещение свободного назначения в Москва ул. Маршала Прошлякова, 14к2 ...

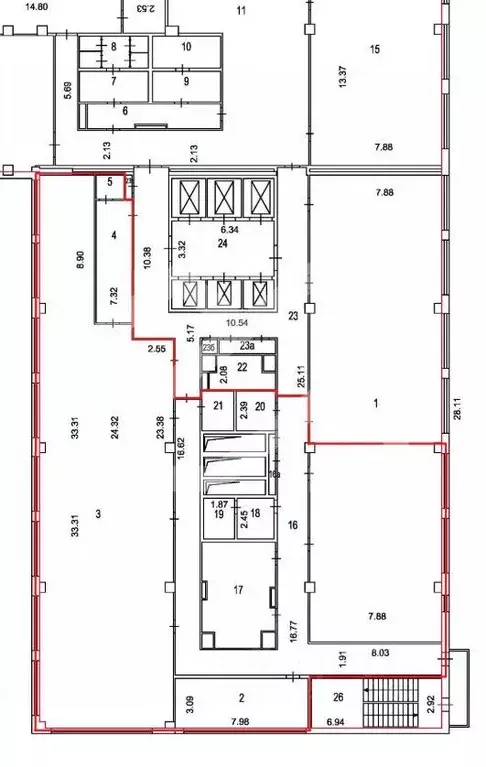
Предлагается в аренду просторное помещение площадью 1250 кв.м. на втором этаже по адресу: улица Маршала Прошлякова, 14к2.Идеально подходит для размещения автосалона или любого другого вида деятельности, требующего значительной площади и мощного электроснабжения.Ключевые преимущества:Общая площадь: 1250 кв.м.Электроснабжение: 50 кВт света, что обеспечивает бесперебойную работу любого оборудования.Универсальность: Помещение сдается под свободное назначение, что позволяет реализовать самые смелые бизнес-идеи. Особо отмечается возможность организации автосалона.Круглосуточный доступ: Обеспечен беспрепятственный доступ к парковкам.Безопасность: Территория оборудована системой охраны и шлагбаумом.Готовая инфраструктура: В помещении уже имеется 5 офисных кабинетов.Возможность расширения: При необходимости есть возможность увеличения площади до 500 кв.м. за счет дополнительного офисного помещения.Гибкость планировки: Любые планировочные решения возможны, что позволяет адаптировать пространство под ваши нужды.Удобное расположение:В непосредственной близости от метро Строгино .Рядом расположены ГАИ, автомойка, детейлинг-центр и другая инфраструктура, связанная с автомобильным бизнесом.Привлекательная цена:/кв.м.Это отличное предложение для тех, кто ищет просторное, функциональное и удобно расположенное помещение для развития своего бизнеса.По всем вопросам обращайтесь по указанному номеру телефона.

Читать полностью
    Позвонить Написать
    1 500 000 Р19 050 $ или 16 480
    Агент
    +7 (916) 032-01-79
    Начать чат с агентом
    Похожие предложения
    Помещение свободного назначения в Москва ул. Кулакова, 20к1 (479 м) - Фото 1
    Помещение свободного назначения в Москва ул. Кулакова, 20к1 (479 м) - Фото 2
    1095323. Предлагаем в аренду офисное помещение площадью 479,4 кв. м, расположенное в бизнес-центре Орбита-2 Преимущества объекта: - Бизнес-центр класса В+- Шаговая доступность от станции метро Строгино (10 минут пешком)- Этаж: 2- Помещение предлагается...
    • 2/15 эт.
    1 401 245 Р
    Агент
    +7 (938) Показать номер
    Посмотреть контакты
    Помещение свободного назначения в Москва Таллинская ул., 26 (740 м) - Фото 1
    Помещение свободного назначения в Москва Таллинская ул., 26 (740 м) - Фото 2
    ЛотПредложение от Собственника В аренду предлагаются просторные коммерческие помещения, расположенные в густонаселенном жилом районе в непосредственной близости от станции метро Строгино . Локация является сформированной и обладает высоким пешеходным...
    • 2/2 эт.
    1 517 000 Р
    Агент
    +7 (986) Показать номер
    Посмотреть контакты
    Помещение свободного назначения в Москва ул. Кулакова, 20к1 (479 м) - Фото 1
    Помещение свободного назначения в Москва ул. Кулакова, 20к1 (479 м) - Фото 2
    1095323. Предлагаем в аренду офисное помещение площадью 479,4 кв. м, расположенное в бизнес-центре Орбита-2 Преимущества объекта: - Бизнес-центр класса В+- Шаговая доступность от станции метро Строгино (10 минут пешком)- Этаж: 2- Помещение предлагается...
    • 2/15 эт.
    1 401 245 Р
    Агент
    +7 (938) Показать номер
    Посмотреть контакты
    Помещение свободного назначения в Москва просп. Мира, 12С1 (430 м) - Фото 1
    Помещение свободного назначения в Москва просп. Мира, 12С1 (430 м) - Фото 2
    БЕЗ КОМИССИИ Особняк. Сдаётся блок с санузлом на 3-м этаже площадью 430 кв.м с отдельным входом с улицы. Отделка в стиле лофт. Вентиляция.НДС включен. Проспект Мира, 12с1, 3 минуты пешком от метро Сухаревская. ЛОТ 247024
    • 3/3 эт.
    1 505 000 Р
    Агент
    +7 (992) Показать номер
    Посмотреть контакты
    Помещение свободного назначения в Москва Лесная ул., 9 (211 м) - Фото 1
    Помещение свободного назначения в Москва Лесная ул., 9 (211 м) - Фото 2
    ==ЛОТ 224474 == ОТ СОБСТВЕННИКА, БЕЗ КОМИССИИ. Помещение с отдельным входом на 1 этаже Бизнес-центра Белые Сады . В 3-х минутах от метро Белорусская. Ранее в помещении располагалось кафе Naomi. Выполнен ремонт, установлена приточно-вытяжная вентиляция...
    • 1/16 эт.
    1 500 000 Р
    Агент
    +7 (923) Показать номер
    Посмотреть контакты

    Не нашли подходящего объявления?

    Оставьте заявку, и наши риэлторы подберут псн в районе Москвы

    (0)