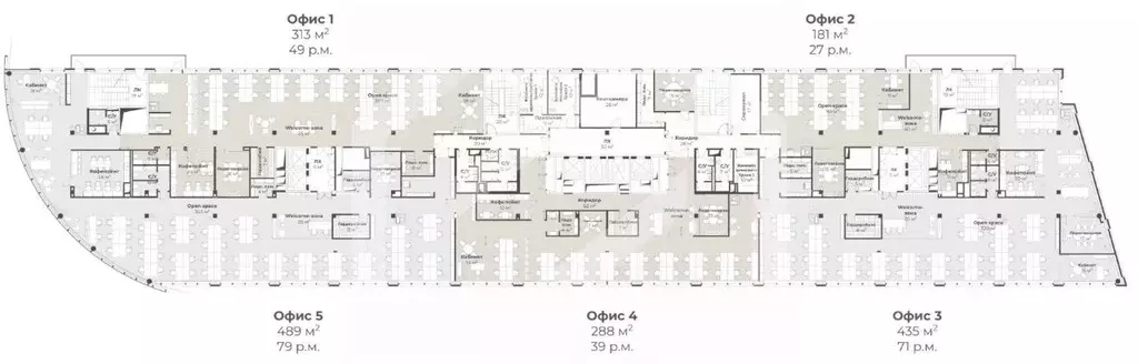
1133488. Предлагаем в аренду сервисный офис площадью 2000 кв. м, (наабочих мест) расположенный в бизнес-центре Северное Сияние Преимущества объекта: - Бизнес-центр класса В+- Шаговая доступность от станции метро Савеловская (5 минут пешком)- Этаж: 8- Помещение предлагается с отделкой и мебелью- Планировка смешанная- Помещение свободно с в июле 2026 г.- Высота потолков: 3.5 м.- Панорамное остеклениеЭксплуатационные и коммунальные платежи, клининг включены в ставку.Оперативно организуем для Вас показ и ответим на все вопросы. Свяжитесь с нами для получения дополнительной информации
Оставьте заявку, и наши риэлторы подберут псн в районе Москвы