4 798 750 Р 60 190 $ или 52 050

Информация об помещении

6
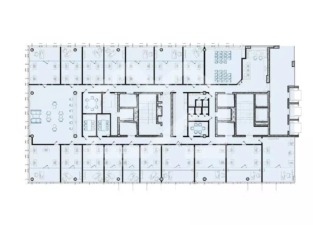
Этаж

Состояние и оснащение

Количество этажей
6
Развернуть
Агент
+7 (986) 274-27-15
Начать чат с агентом

Помещение свободного назначения в Москва Ленинградский просп., 47С2 ...

ЛотПредложение от Собственника Предлагается помещение под офис площадью 1047.00 м2. Помещение расположено 2 мин от м Аэропорт. 6 этаж. Система кондиционирования. Пропускная система. Есть круглосуточный доступ. Планировка - смешанная. Есть лифт. Есть парковка. В цену включено: НДС 22 . В цену не включено: коммунальные расходы. Обеспечительный платеж 1 месяц.Чтобы получить ПОДРОБНУЮ ПРЕЗЕНТАЦИЮ С ПЛАНИРОВКОЙ И ФОТОГРАФИЯМИ, звоните или отправьте свой email и номер телефона в сообщении на портале. Высылаем в течение 15 минут по запросу Конт. лицо: Яна Германовна, доб. 203, ЛОТ 1054797

Читать полностью
    Позвонить Написать
    4 798 750 Р60 190 $ или 52 050
    Агент
    +7 (986) 274-27-15
    Начать чат с агентом
    Похожие предложения
    Помещение свободного назначения в Москва Киевское шоссе, 22-й км, 6с1 ... - Фото 1
    Помещение свободного назначения в Москва Киевское шоссе, 22-й км, 6с1 ... - Фото 2
    1156713. Предлагаем в аренду офисное помещение площадью 1228 кв. м, расположенное в бизнес-центре Comcity (Комсити) Преимущества объекта: - Бизнес-центр класса А- Шаговая доступность от станции метро Румянцево (7 минут пешком)- Этаж: 2- Помещение предлагается...
    • 2/7 эт.
    4 744 174 Р
    Агент
    +7 (938) Показать номер
    Посмотреть контакты
    Помещение свободного назначения в Москва наб. Пресненская, 10блокВ ... - Фото 1
    Помещение свободного назначения в Москва наб. Пресненская, 10блокВ ... - Фото 2
    1144548. Предлагаем в аренду офисное помещение площадью 576 кв. м, расположенное в бизнес-центре Башня на Набережной , блок В.Преимущества объекта:Бизнес-центр класса А- Шаговая доступность от станции метро Деловой Центр (4 минуты пешком)- Этаж: 7- Помещение...
    • 7/27 эт.
    4 860 480 Р
    Агент
    +7 (938) Показать номер
    Посмотреть контакты
    Помещение свободного назначения в Москва Ленинский просп., 15А (827 м) - Фото 1
    Помещение свободного назначения в Москва Ленинский просп., 15А (827 м) - Фото 2
    1144189. Предлагаем в аренду офисное помещение площадью 827,2 кв. м, расположенное в бизнес-центре Central Park Tower Преимущества объекта: - Бизнес-центр класса А- Шаговая доступность от станции метро Шаболовская (6 минут пешком)- Этаж: 4- Помещение...
    • 4/22 эт.
    4 793 624 Р
    Агент
    +7 (938) Показать номер
    Посмотреть контакты
    Помещение свободного назначения в Москва ул. Большая Ордынка, 44С4 ... - Фото 1
    Помещение свободного назначения в Москва ул. Большая Ордынка, 44С4 ... - Фото 2
    1121443. Предлагаем в аренду офисное помещение площадью 1254,5 кв. м, расположенное в бизнес-центре На Ордынке Преимущества объекта: - Здание класса А- Шаговая доступность от станции метро Полянка (6 минут пешком)- Этаж: 3- Помещение предлагается с отделкой-...
    • 3/6 эт.
    4 757 273 Р
    Агент
    +7 (938) Показать номер
    Посмотреть контакты
    Помещение свободного назначения в Москва 2-я Хуторская ул., 38АС9 ... - Фото 1
    Помещение свободного назначения в Москва 2-я Хуторская ул., 38АС9 ... - Фото 2
    1115606. Предлагаем в аренду офисное помещение площадью 2 040,4 кв. м, расположенное в бизнес-центре Мирлэнд Преимущества объекта: - Бизнес-центр класса В+- Шаговая доступность от станции метро Дмитровская (12 минут пешком)- Этаж: 1- Помещение предлагается...
    • 1/5 эт.
    4 760 933 Р
    Агент
    +7 (938) Показать номер
    Посмотреть контакты

    Не нашли подходящего объявления?

    Оставьте заявку, и наши риэлторы подберут псн в районе Москвы

    (0)